Flugziel Zukunft: La Cité in Toulouse von Taillandier Architectes Associés
Foto: Roland Halbe
Toulouse ist heutzutage vor allem als Hauptsitz des Airbus-Konzerns bekannt. Doch schon 1917-18 errichtete der Luftfahrtpionier Pierre Georges Latécoère im Südosten der Stadt, an der Bahnlinie nach Sète, eine Flugzeugfabrik – und jenseits der Gleise ein Flugfeld, dessen Start- und Landebahn bis heute in Teilen erhalten ist.
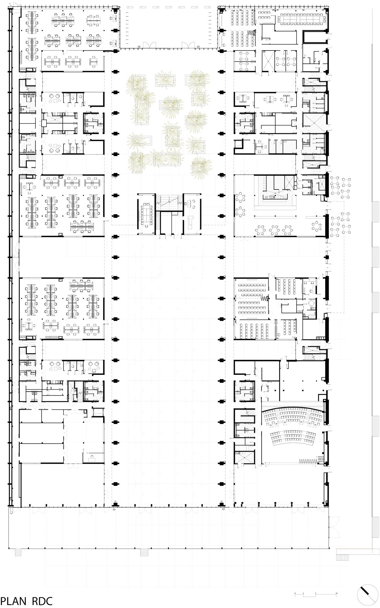
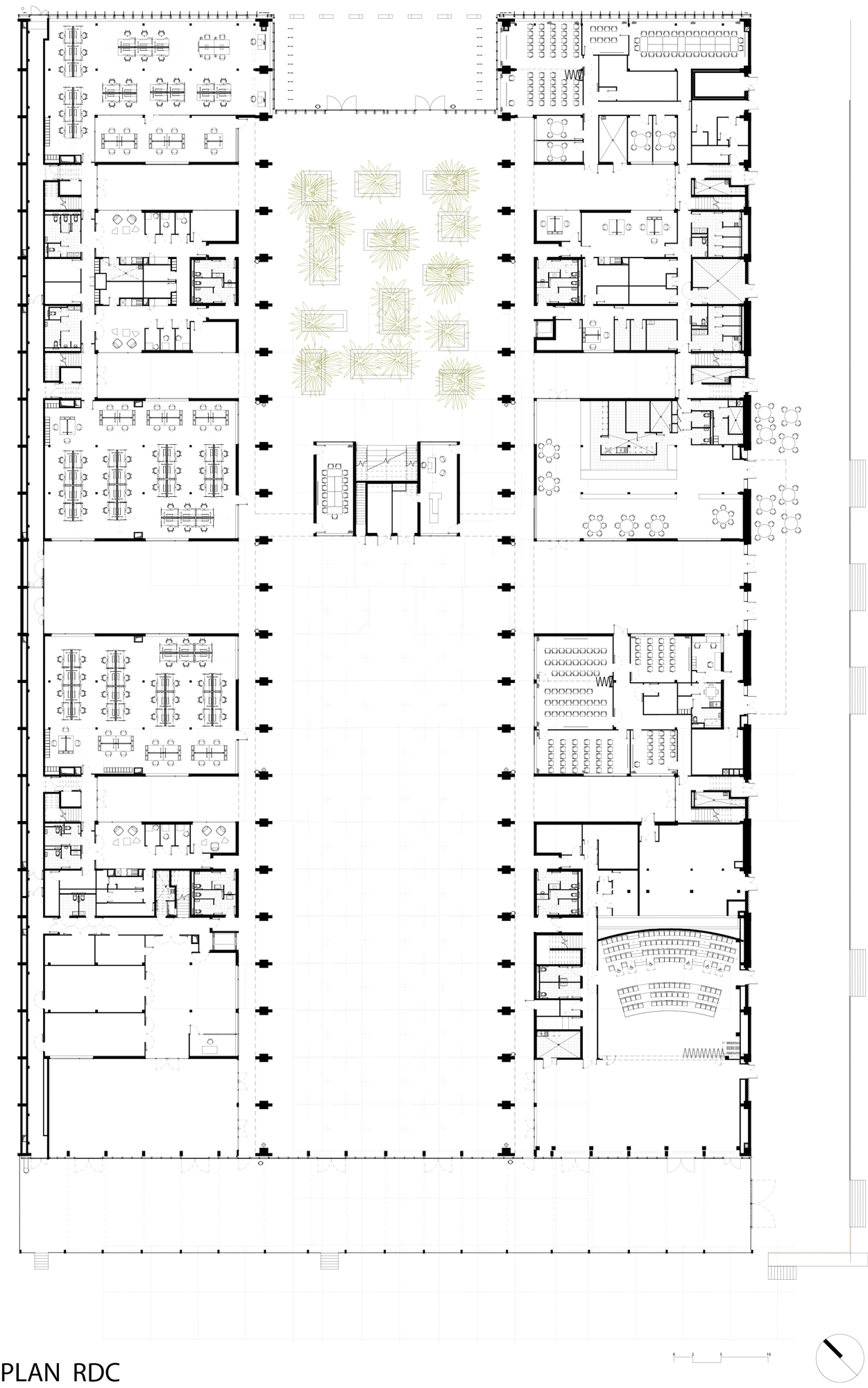
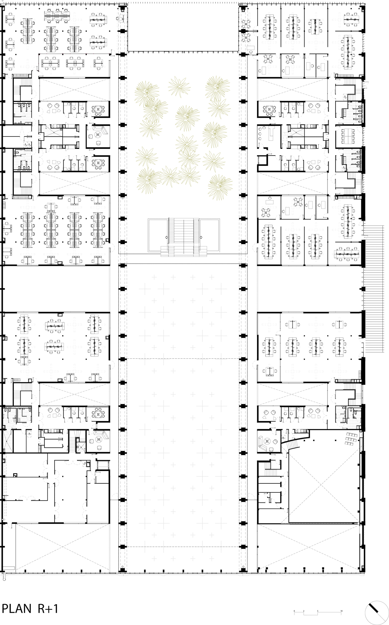
Die 120 m lange, aus drei je 26 m breiten Schiffen bestehende Halle wurde später mehrfach umgenutzt: Nach 1944 zog hier der Flugzeughersteller Louis Bréguet mit seinem Unternehmen ein, später Air France und schließlich das Logistikunternehmen UTL. Nun hat die Region Okzitanien das Gebäude und das südöstlich angrenzende Grundstück erworben, um hier eine der ersten Anlaufstellen für die regionale Wirtschaftsförderung zu etablieren. Die von Taillandier Architectes Associés umgebauten Hallen beherbergen im Erdgeschoss ein Restaurant, einen Vortragssaal für 200 Personen sowie Besprechungsräume. In den neu errichteten Obergeschossen der Seitenflügel sind Coworking-Büros und ein Fab Lab untergebracht.
Von den bestehenden Hallen erhielten die Architekten vor allem die Tragstruktur aus Ziegelpfeilern, die sie von ihrem Farbanstrich befreiten, stählernen Fachwerkbindern über dem Mittelschiff sowie Bogenbindern aus weiß gestrichenem Stahlbeton über den Seitenschiffen. Der Dachaufbau aus Holz, Schall- und Wärmedämmung sowie Dachziegeln ist ebenso neu wie die Glasfassaden und die dem Original nachempfundenen Dachlaternen, die Tageslicht ins Haus bringen. An der straßenseitigen Stirnfassade im Nordosten haben die Architekten die ursprüngliche, bogenförmige Fassadengliederung mit einem Brisesoleil ausbreiten, in sich verdrehten Metalllamellen nachempfunden. Auf der gegenüberliegenden Seite, an der Bahnlinie, halten horizontale Lamellen die Sonne aus den Innenräumen frei. Die vorgelagerte Laderampe der Fabrik dient jetzt als Freiterrasse für das Café. Von ihrer ehemaligen Überdachung sind nur die weiß gestrichenen Träger übrig geblieben.
Die neuen Einbauten in den Hallen wurden in Holzskelettbauweise erstellt und basieren auf einem 5x5-m-Raster. In Gebäudequerrichtung nehmen sie fast die ganze Breite der Seitenschiffe ein. In Längsrichtung der Hallen sind sie kammartig in je 15 m breite Abschnitte gegliedert, zwischen denen sich die Nebenräume und die Treppen ins Obergeschoss befinden.
Weitere Informationen:
Denkmalschutzberatung: Pierre-Yves Caillault
Akustikplanung: Sigma
TGA-Planung: SETES

























