Forschung zum Quadrat: Kaan Architecten gestalten ISMO
Foto: Fernando Guerra
Auf dem Campus der Université Paris-Saclay entstehen seit Jahren zahlreiche Bildungs-, Forschungs-, Wohn- und Bürobauten. Das ISMO fügt sich am Rande des weitläufigen Campusgeländes in die Reihe der Forschungseinrichtungen ein. Kaan Architecten konzipieren das Gebäude als rechteckigen Block mit zwei Innenhöfen. Bereits von außen lässt sich die Dualität zwischen Labor- und Lehrflächen im Inneren ablesen. Während die Nordseite eine glatte Glasvorhangfassade kleidet, zeigen sich die übrigen Ansichten in einem Raster aus Betonelementen. Stützen und Unterzüge bilden quadratische Rahmen für großflächige, raumhohe Fenster. Diese sind ganze 80 cm nach hinten versetzt.
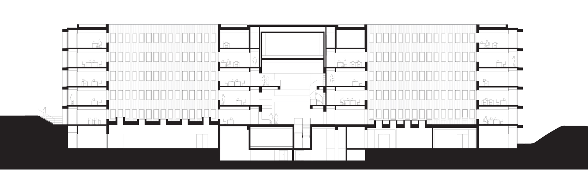
Das ISMO wird von der Südseite her betreten. Von einem weiten, in Betonfliesen gepflasterten Vorplatz aus markiert eine optische Abweichung die sonst so regelmäßige Fassade: Hinter Glasquadraten, die zu Rechtecken im Quer- und Hochformat zusammengelegt sind, verbirgt sich ein großes, lichtdurchflutetes Atrium, das sich über sämtliche Geschosse erstreckt und mit einem Oberlicht abschließt. Eine Bücherwand zur Linken sorgt für einen Farbakzent in der sonst ganz in Weiß gehaltenen Empfangshalle. Über eine breite Treppe gelangt man ins Untergeschoss und im weiteren Verlauf zu Laboren und Parkgarage. Nach oben hin prägen das Atrium eine Wendeltreppe, kleine, in den Raum ragende Balkone und die schräge Untersicht des Auditoriums im dritten und vierten Stock.
Die Obergeschosse des Forschungsbaus gliedern sich in zwei Trakte. Entlang der Nordseite befinden sich die Labore, die zum großen Teil vor Tageslichteinfall geschützt sind. Im Südteil herrscht Ruhe und Platz für konzentriertes Arbeiten. Hinter den Fassaden angeordnete Korridore erschließen die einzelnen Büros. Nach innen hin orientieren sich die Einheiten jeweils zu einem der beiden in Holz gekleideten Patios.
Kaan Architecten gestalten – in Zusammenarbeit mit FRES architectes – das ISMO rund um den »Urban-trifft-Rural-Gedanken«. Die 170 Mitarbeiter sollen ihren Arbeitsplatz wie einen Spaziergang durch den Wald wahrnehmen. Diesem Leitgedanken folgend arrangieren die Architekten auf den insgesamt 10.000 Quadratmetern die unterschiedlichen Ansätze von Forschung, Innovation und Ausbildung nebeneinander, fassen sie über eine einheitliche architektonische Sprache zusammen und lassen den Bau gleichzeitig mit der umgebenden Natur verschmelzen.
Weitere Informationen:
Brutto-Grundfläche: 10.000 Quadratmeter
Baukosten: 20.000.000 €
Projektteam: Christophe Banderier, Marc Coma, Aksel Coruh, Sebastian van Damme, Paolo Faleschini, Renata Gilio, Walter Hoogerwerf, Jan Teunis ten Kate, Marco Lanna, Ismael Planelles Naya, Ana Rivero Esteban, Joeri Spijkers, Koen van Tienen, Pauline Trochu

























