Research Square: Kaan Architecten Design ISMO
Foto: Fernando Guerra
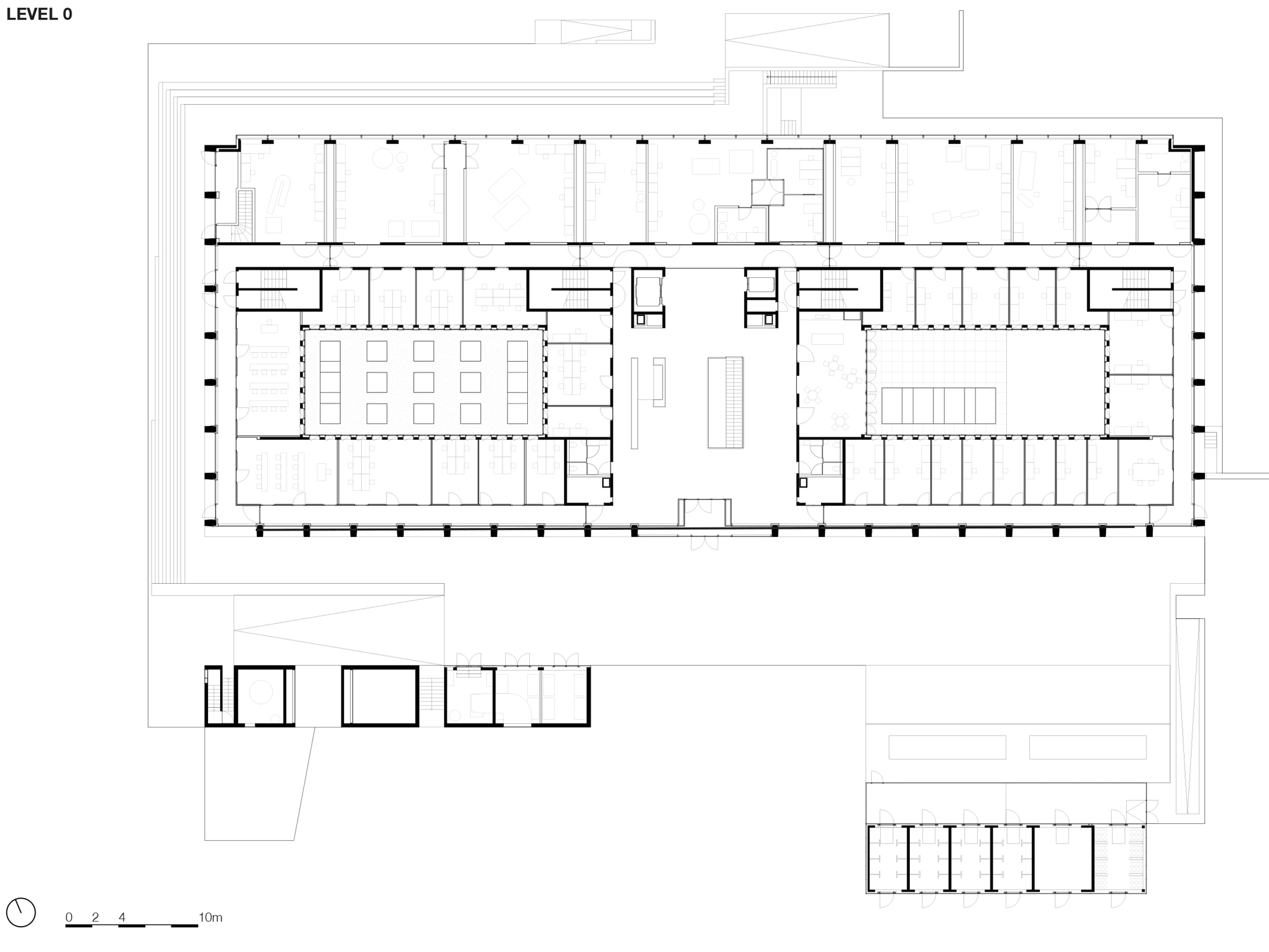
For years, many buildings devoted to education, research, living and offices have appeared on the campus of Université Paris-Saclay. Located at the edge of the extensive university grounds, the ISMO represents an addition to the research institutes. Kaan Architecten have conceived the building as a rectangular block with two inner courtyards. The interior duality between laboratory and teaching spaces can be seen even from outside. While the north side is clad with a smooth curtain façade of glass, the remaining views feature a grid of concrete elements. Supports and beams form square frames for large-format, room-high windows. These are set back 80 cm.
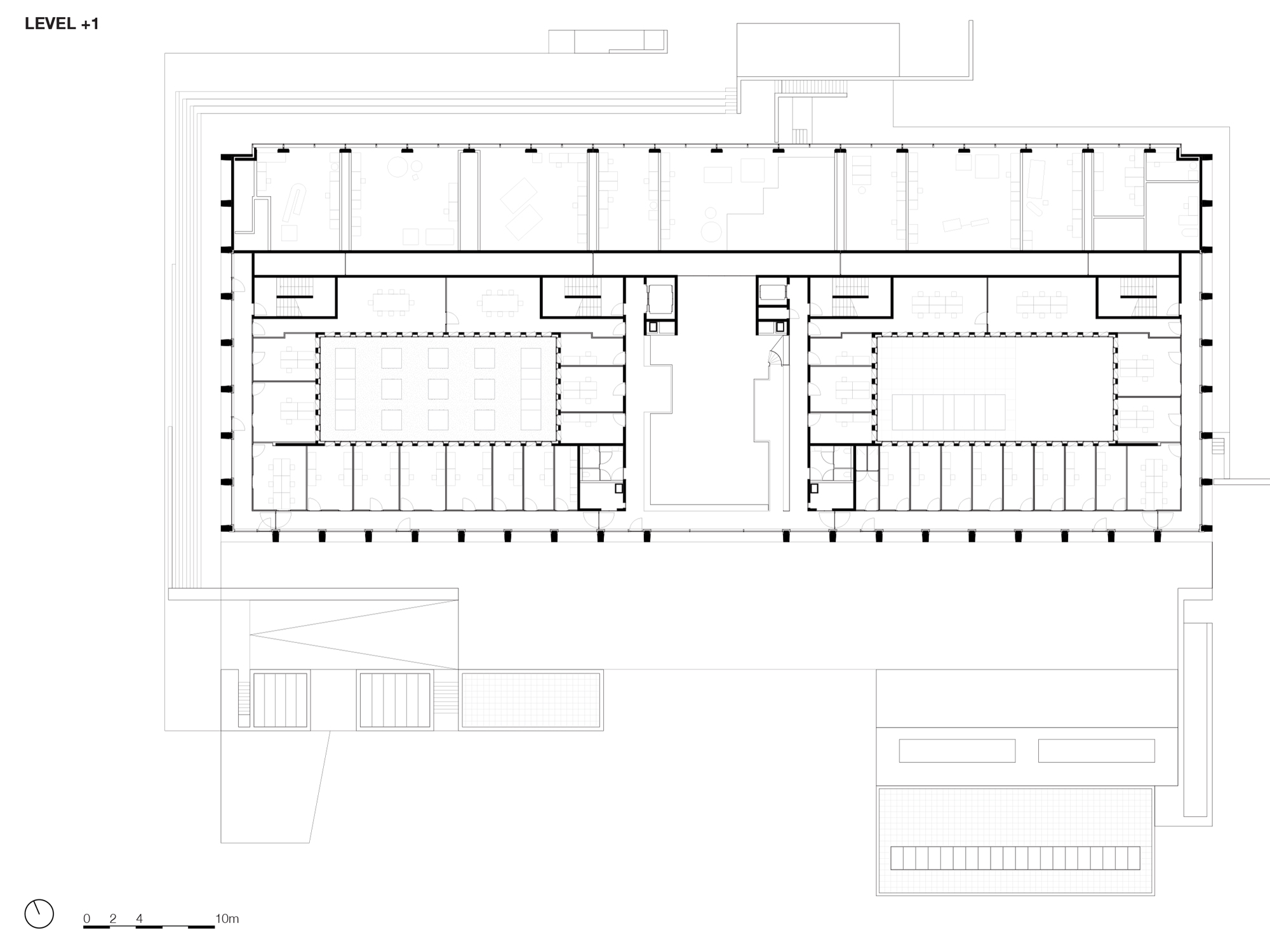
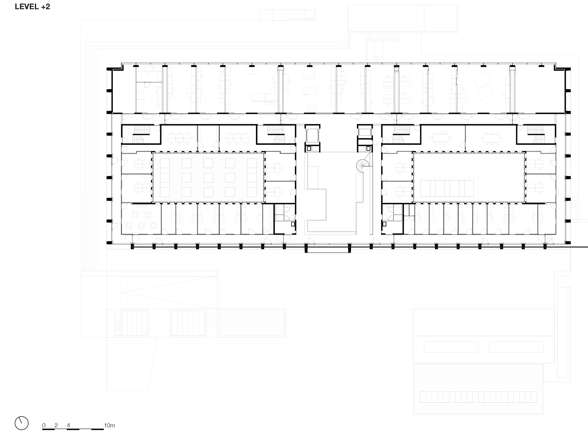
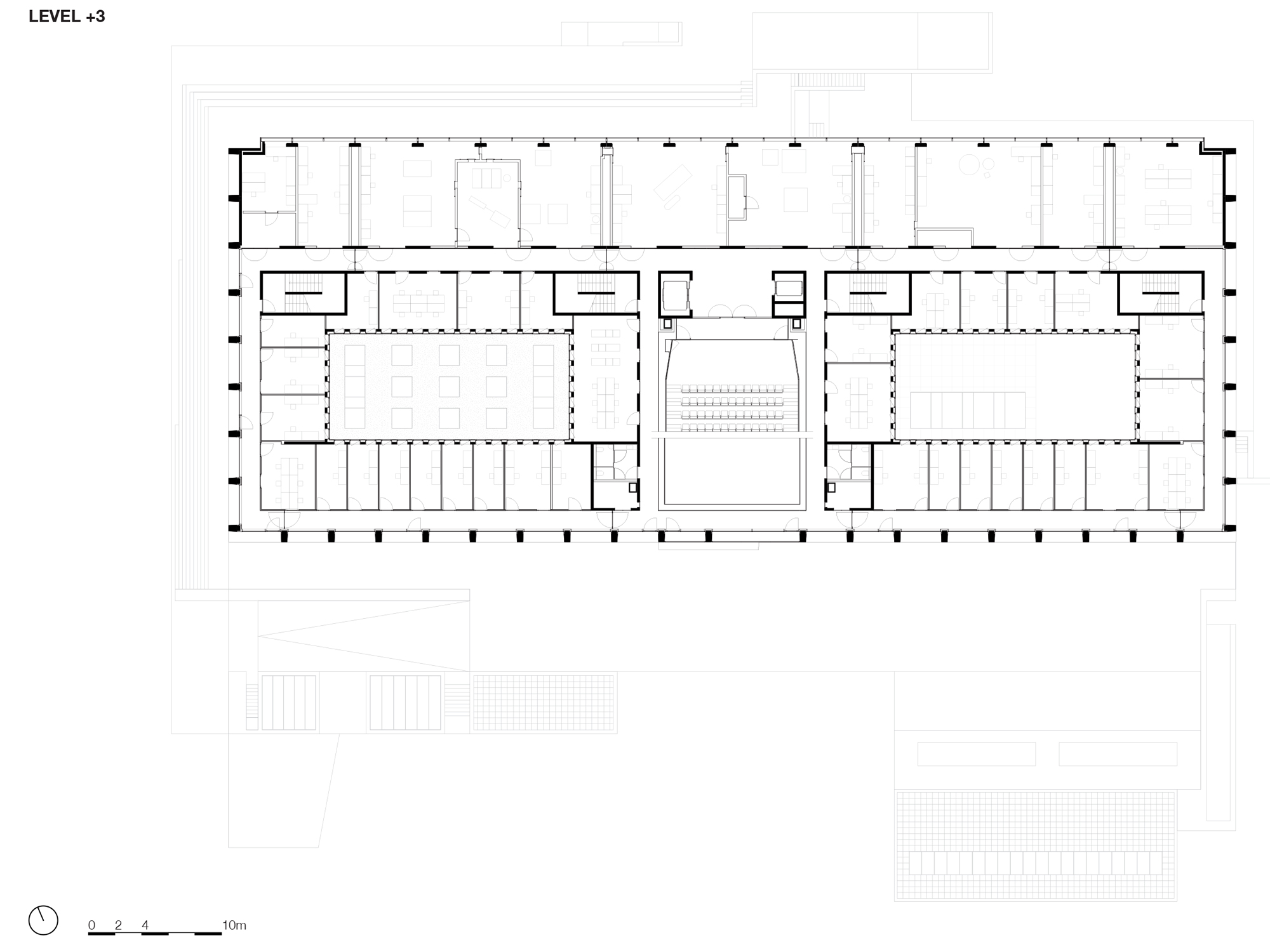
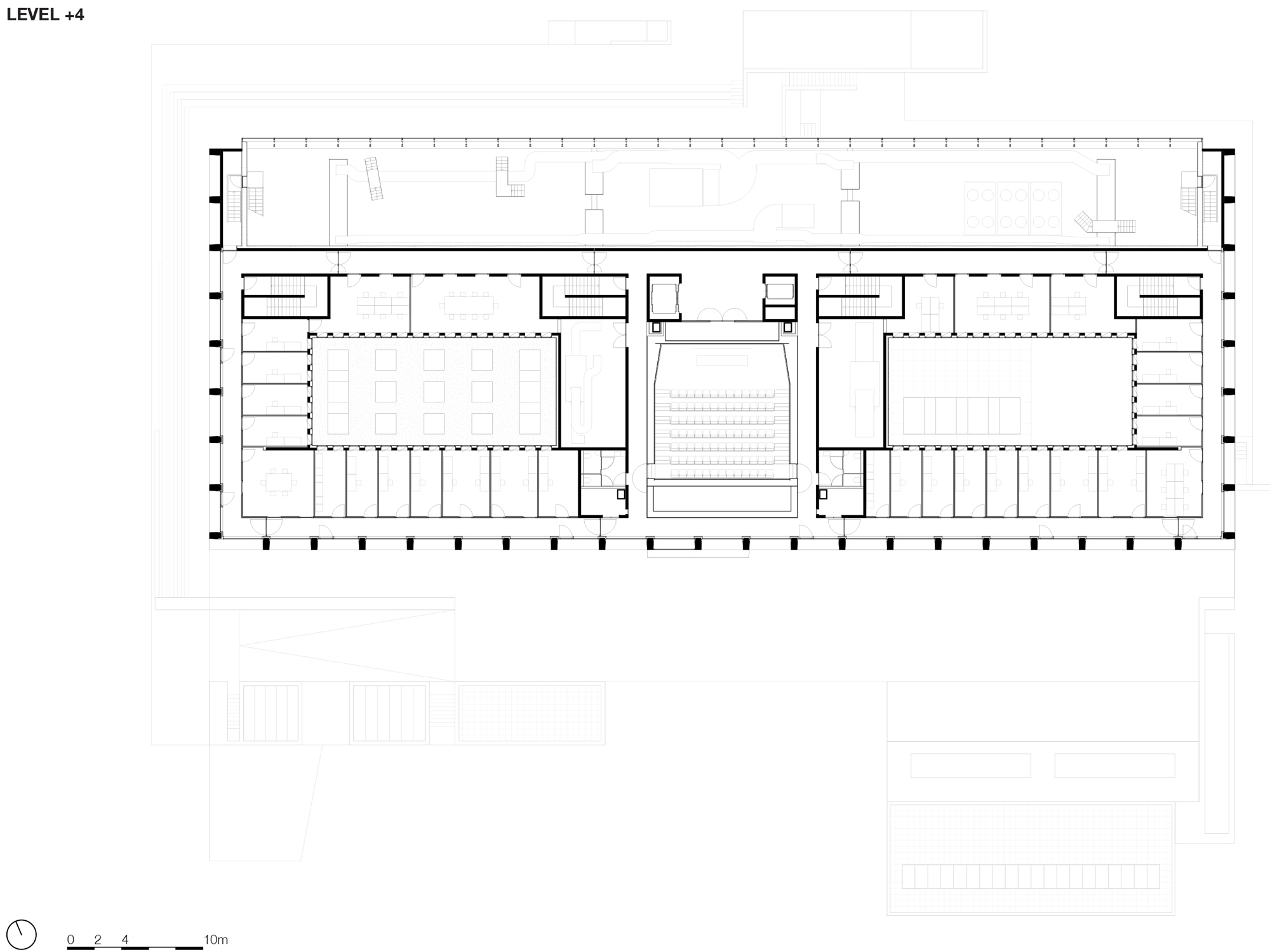
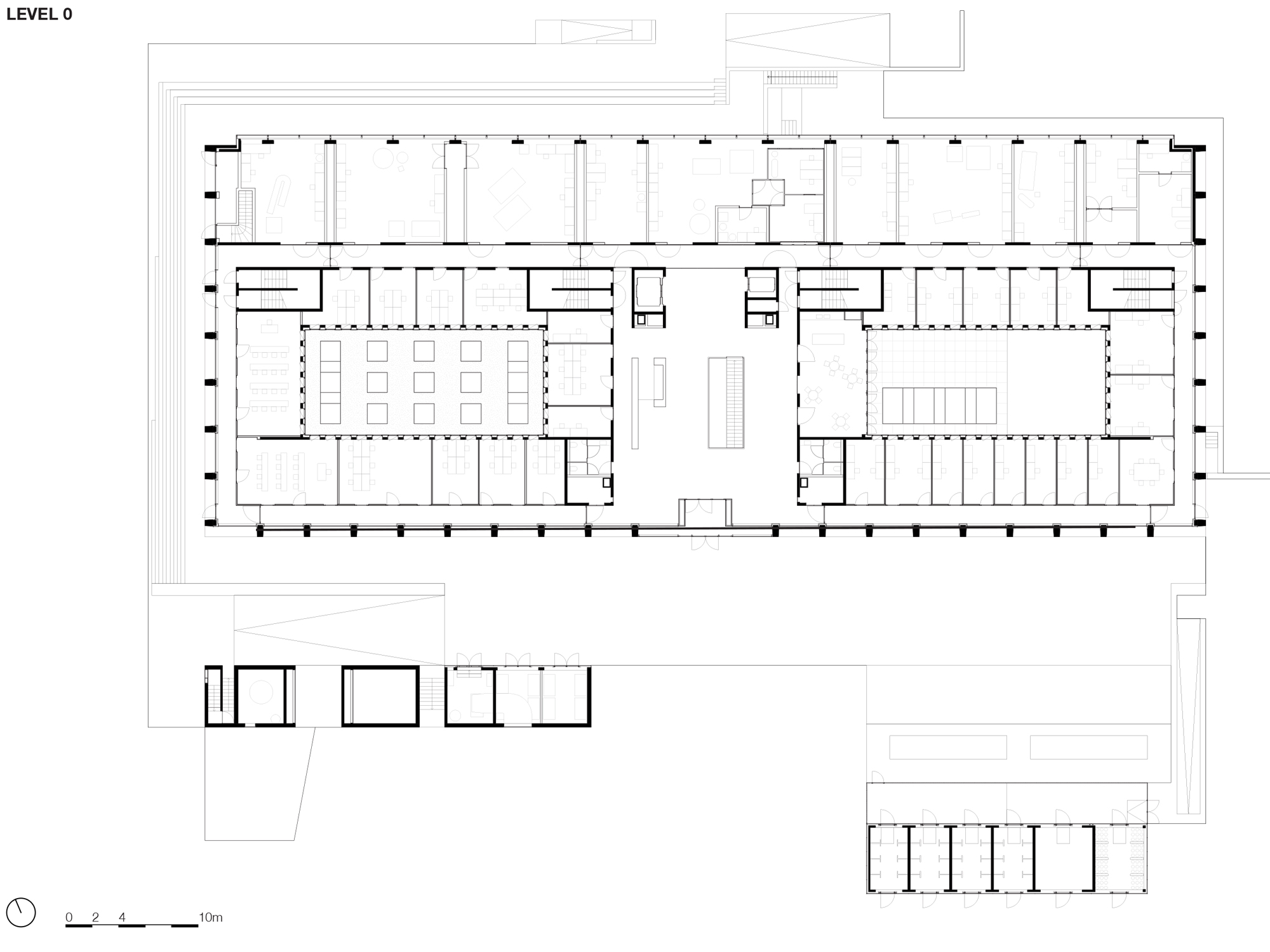
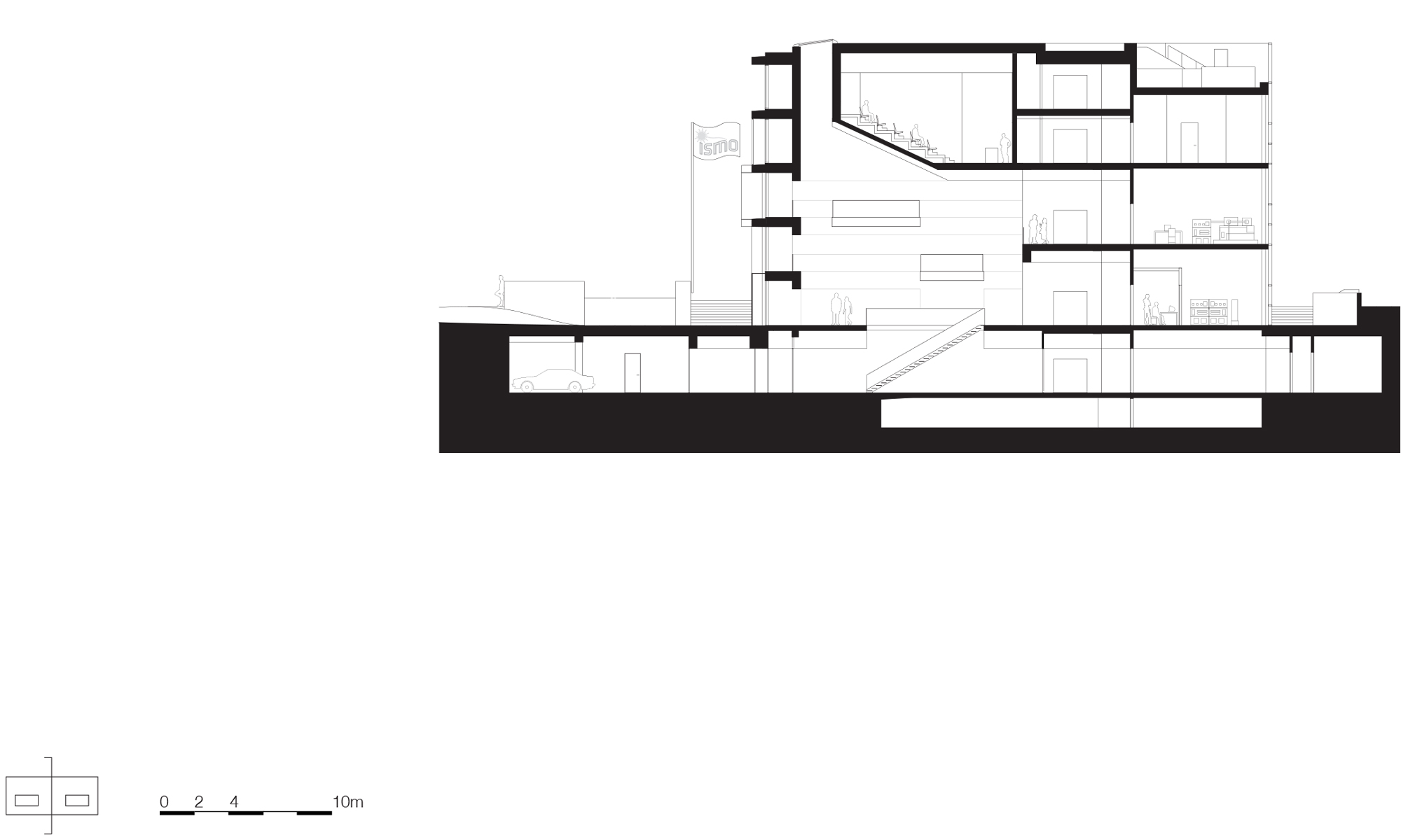
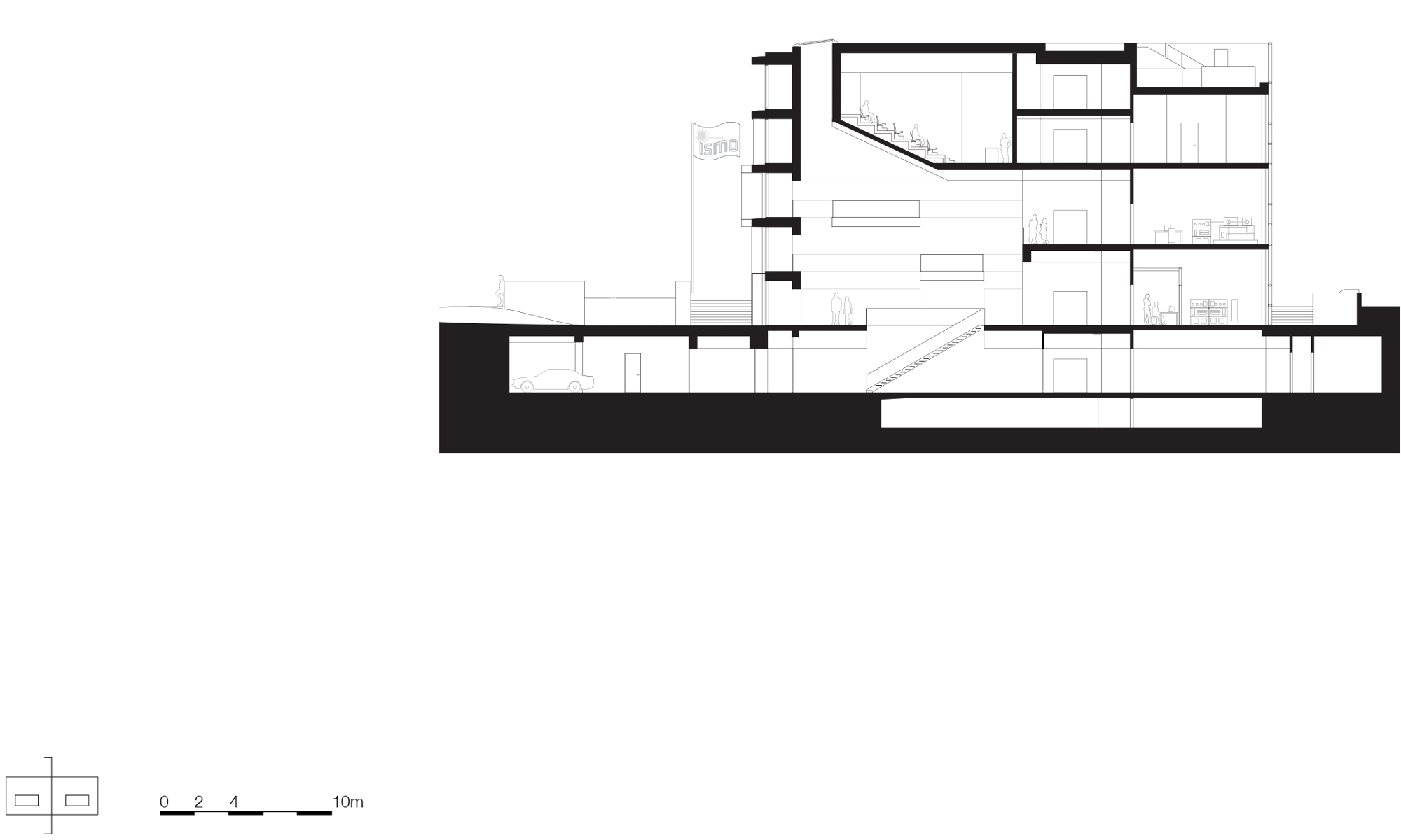
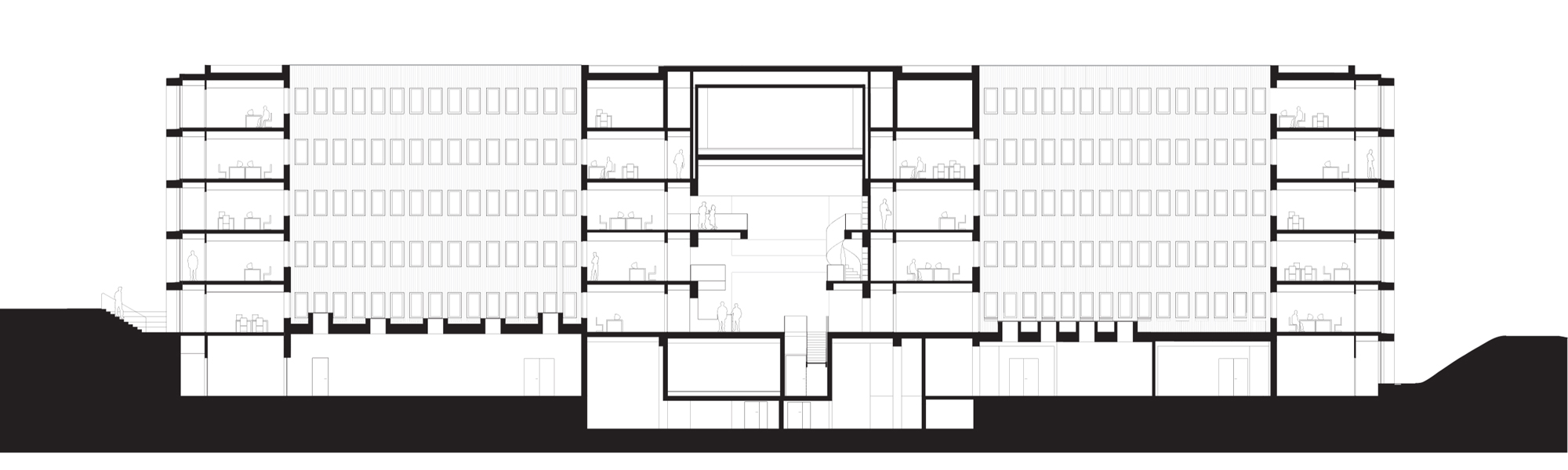
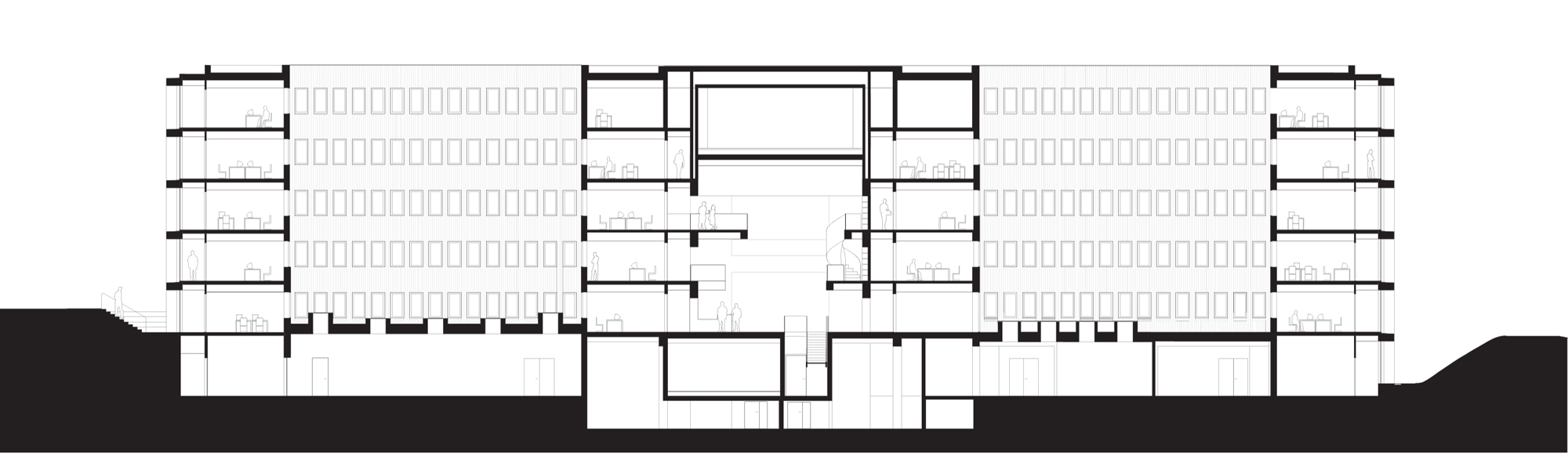
The ISMO is accessed from the south side. From a broad forecourt paved with concrete tiles, a visual deviation marks the otherwise regular façade: behind the glass cubes set together as rectangles arranged horizontally and vertically, a large, light-flooded atrium extends over all the storeys and is topped off with a skylight. To the left, a wall of books adds a colour accent to the lobby, which is otherwise all in white. Visitors take a wide stairway to the lower level, then continue to the laboratories and parkade. Upstairs, the atrium is characterized by a spiral staircase, small balconies that jut into the space and the sloping underside of the auditorium on the third and fourth upper levels.
The upper levels of the research building are divided into two wings. The laboratories are along the north side, where they are largely protected from daylight. The southern area offers tranquillity and space for focussed work. Corridors arranged behind the façades provide access to individual offices. Towards the inside of the building, the two wings each face one of two wood-clad patios.
Kaan Architecten designed – with the local architect FRES architectes – the ISMO around the “urban meets rural” idea. The 170 employees will experience their working space like a walk through the forest. According to this guiding principle, the architects have arranged the building’s 10,000 square metres, devoted to the different approaches of research, innovation and education, side by side and brought them together via a unifying architectural language. At the same time, the structure melds with its surrounding natural environment.
Further Information:
Gross floor space: 10.000 Quadratmeter
Building cost: 20.000.000 €
Project team: Christophe Banderier, Marc Coma, Aksel Coruh, Sebastian van Damme, Paolo Faleschini, Renata Gilio, Walter Hoogerwerf, Jan Teunis ten Kate, Marco Lanna, Ismael Planelles Naya, Ana Rivero Esteban, Joeri Spijkers, Koen van Tienen, Pauline Trochu

























