Garantiert zollfrei: Spreestudios in Berlin
Foto: Filip Kujawski
„Zur Alten Flußbadeanstalt“ lautet die verheißungsvolle Adresse der Spreestudios in Berlin, die Thomas Baecker und Bettina Kraus in den ehemaligen Garagen- und Hallengebäuden des DDR-Zolls geschaffen haben. Heute erinnert zwar nichts mehr daran, doch zwischen den 20er- und 40er-Jahren existierte auf dem heute teils überwucherten, von Lagerschuppen und ausrangierten Öltanks umgebenen Ufergrundstück tatsächlich Berlins größtes Freibad. Sein Wasser wurde mit der Abwärme des nahe gelegenen Heizkraftwerks Klingenberg beheizt.
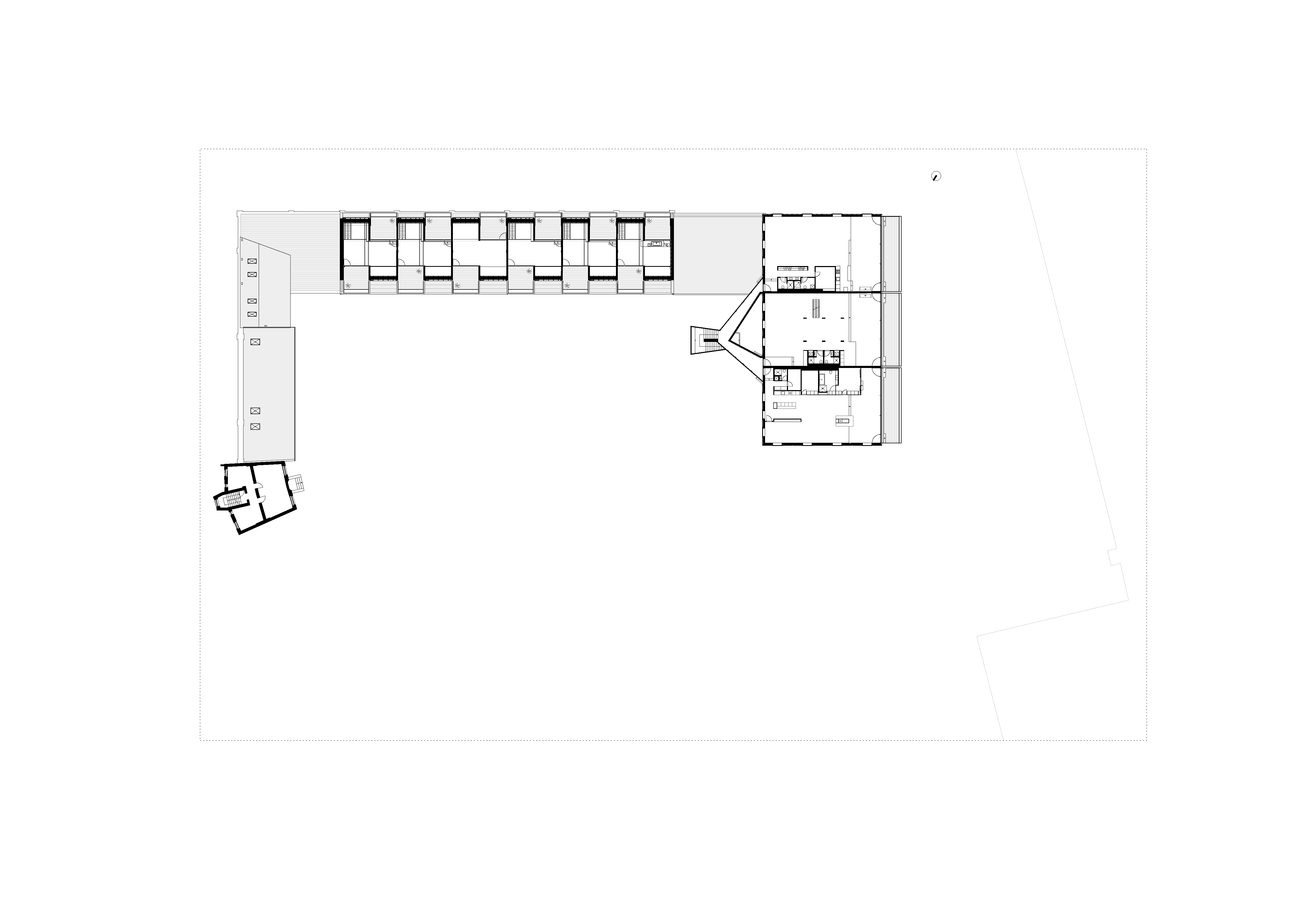
Bei der jetzigen Umnutzung bekamen es die Architekten eher mit Relikten aus der DDR-Zeit zu tun: einem langgestreckten Garagenbau und einer quer dazu stehenden Halle mit flachem Satteldach an der Spree. Beide erhielten unterschiedliche Aufstockungen, deren gemeinsames Merkmal eine diffus schimmernde Außenhülle aus edelstahlkaschierten Bitumenbahnen ist. Die Bestandsstruktur im Erdgeschoss ist hingegen durch einen einheitlichen anthrazitfarbenen Verputz gekennzeichnet.
Bewegte Dachformen für mehr Tageslicht
Im Garagentrakt erweitern zwölf alternierend geneigte Pultdächer das einfach gemauerte Erdgeschoss um zwei neue, eingehängte Zwischenebenen und großzügige Außenterrassen. Die Aufstockung lagert auf einem umlaufenden Ringanker, der dem ursprünglichen Verlauf des Pultdachs folgt. Um den Anforderungen der EnEV zu genügen, fügten die Architekten hinter den bestehenden Garagentoren neue Glasfronten ein und ließen die Außenwände nachträglich dämmen.
Im benachbarten Hallenbau aus den 70er-Jahren verdoppelt das neu aufgesetzte Obergeschoss das bestehende Raumvolumen. Die drei Gewerbeeinheiten dort sind von außen über eine freigestellte Treppenskulptur im Hof erreichbar. Das flache Satteldach blieb in diesem Fall erhalten und bildet die Unterseite der neuen Geschossdecke. Auf dem Bestandsdach liegt ein Stahlträgerrost auf, das darüber aufgehende Obergeschoss wurde in Holzbauweise erstellt. Sein Fußboden ist Richtung Fluss nach unten abgetreppt, um die Räume zu dieser Seite hin zu öffnen.
Auch in der oberen Etage des Hallenbaus variierten die Architekten das Spiel mit unterschiedlichen Dachneigungen, das sie bereits beim Garagentrakt praktizierten. Die Dachflächen sind hier abwechselnd einwärts und auswärts geneigt, was auch der Belichtung der relativ tiefen Innnenräume zugute kommt.
Weitere Informationen:
Haustechnik: Janowski & Co Beratende Ingenieure
Brandschutz: Ingenieur- und Sachverständigenbüro Hahn
Vermessungsingenieur: Knut Seibt




















