Guaranteed duty-free: Spreestudios in Berlin
Foto: Filip Kujawski
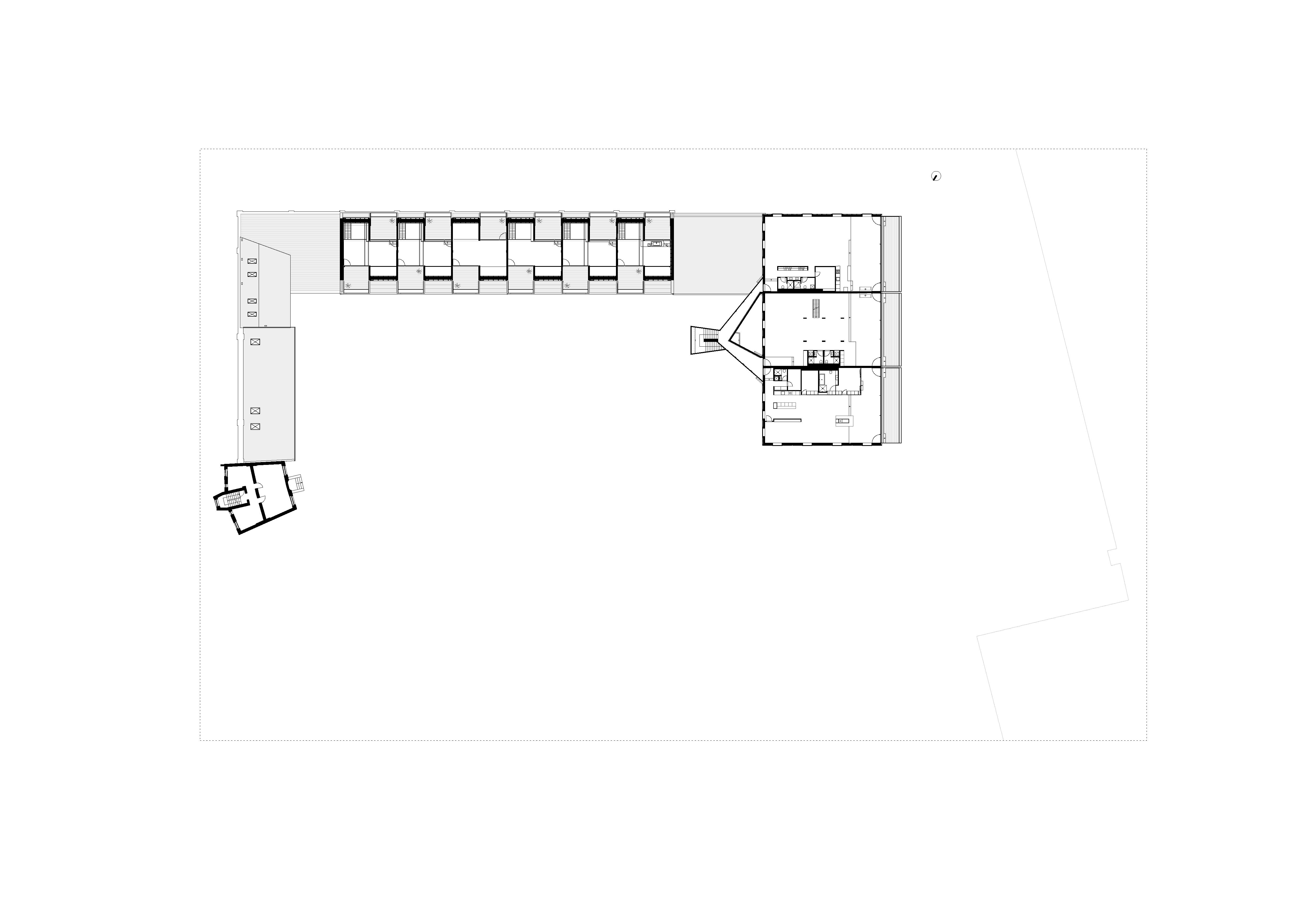
“At the Old River Swimming Baths“ is the promising address of the Spreestudios in Berlin created by Thomas Baecker and Bettina Kraus at a former garage and a hall building once in use by the East German customs authority. Today nothing at the riverside site, now partially overgrown and surrounded by storage sheds and discarded oil tanks, recalls that between the 1920s and 1940s it was the location of Berlin’s largest outdoor swimming pool, featuring water warmed with waste heat from the nearby Klingenberg thermal power station.
In the current conversion measures, the architects found themselves more confronted with relics of East German times in the form of a long-strung-out garage building and crosswise to it a hall building close to the river and topped by a low-pitch roof. Both buildings have been given vertical extensions with a diffusely shimmering skin of stainless steel-faced bitumen sheeting in common. The existing ground floor structures, on the other hand, are uniformly rendered in an anthracite hue.
Varied roof planes for more daylight
The garage building with its ground floor in single brickwork walls has gained two suspended intermediate levels, twelve single-pitch roofs slanting in alternating directions, and generously-sized outdoor terraces. The vertical extension is borne by a circumferential peripheral tie beam that traces the outline of the original single-pitch roof. In order to meet the requirements of the German Energy-Saving Ordinance, the architects inserted new glass fronts behind the existing garage doors and had the outer walls retrofitted with insulation.
The floor added to the neighbouring hall building from the 1970s doubles the existing spatial volume in size, and contains three commercial units that can be reached from the yard via a free-standing staircase sculpture. The low-pitch roof has been retained in this case and forms the underside of the new floor slab; a steel joist structure rests on the existing roof. The upper storey is constructed in wood and features a floor stepped down towards the river to open up the rooms on this side of the building.
At the level of the uppermost storey the architects have made use of differing roof planes as in the case of the garage building, but this time have alternated the angles of the roofs inwards and outwards, which is conducive to providing the relatively deep interior with natural light.
Further information:
HVRCA: Janowski & Co Beratende Ingenieure
Fire protection: Ingenieur- und Sachverständigenbüro Hahn
Land surveyor: Knut Seibt




















