Gelebte Inklusion: Schulerweiterung in Darmstadt-Eberstadt
Foto: Zooey Braun / www.zooeybraun.de
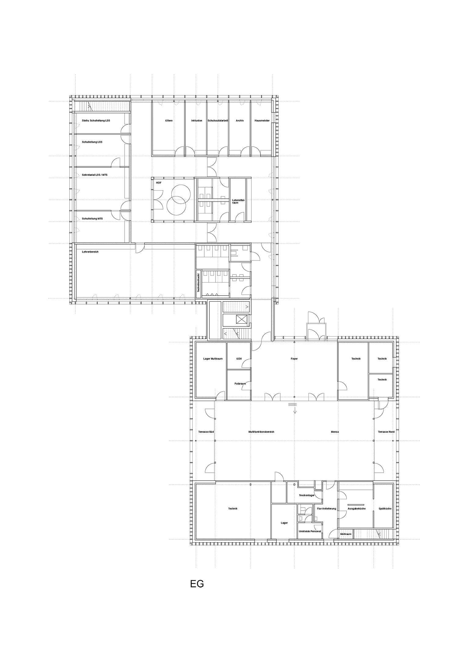
Schon bisher hatten sich die Ludwig-Schwamb-Grundschule und die Mühltal-Förderschule in Darmstadt-Eberstadt die Verwaltungsräume, die Turnhalle und den Schulhof geteilt. Mit dem Erweiterungsbau von Walter Huber Architekten aus Stuttgart rücken sie nun noch enger zusammen. Die beiden quadratischen, zweigeschossigen Pavillons bilden das neue Zentrum des gemeinsamen Schulbetriebs mit Verwaltungsbüros, Lehrerzimmer und Mensa im Erdgeschoss sowie Klassenzimmern und Räumen für die Ganztagsbetreuung im Obergeschoss. Auch die Eberstädter Bürger sollen künftig häufiger hier zu Gast sein, denn die Mensa ist so ausgelegt, dass sie nach Schulschluss für öffentliche Veranstaltungen genutzt werden kann. Während sich die Grundrisse der beiden Pavillons im Erdgeschoss stark unterscheiden, folgen die Obergeschosse einem sehr ähnlichen Grundrissprinzip. Die Klassenzimmer und Betreuungsräume umgeben ringförmig einen offenen Lernbereich, der Tageslicht durch ein großes Dachoberlicht erhält.
Darmstadt verfolgt bei öffentlichen Bauvorhaben schon länger ambitionierte Nachhaltigkeitsziele. Passend dazu wurde der Erweiterungsbau in Holzbauweise errichtet. Die tragenden Wände bestehen aus Brettsperrholz, die Decken sind Rippendecken aus Brettsperrholz und Brettschichtholzträgern mit abgehängter Echtholz-Akustikdecke. Einige Deckenträger bestehen der höheren Tragwirkung wegen aus Buchen-Furnierschichtholz und lediglich in die Decke über der stützenfreien Mensa mussten die Architekten einige Stahlträger einfügen.
Außen gliedern kräftige, vertikale Douglasien-Brettschichtholzlamellen die Fassaden und bilden ein kompositorisches Gegengewicht zu den horizontalen Fensterbändern. Sie sind fest verglast; frische Luft erhalten die Schüler stattdessen durch manuell zu öffnende Lüftungsflügel hinter einer gelben Lamellenverkleidung. Nachdem das Haus im Architektenwettbewerb 2015 noch als Passivhaus geplant war, ist sein Primärenergiebedarf nunmehr 38% geringer, als die EnEV 2014 erlaubt. Die CO2-Bilanz verbessert sich durch den Holzbau deutlich: Nach Berechnungen des Planungsteams sind in den 800 m3 Bauholz insgesamt 704 Tonnen CO2 gebunden. Das entspricht dem Jahresausstoß von 470 Autos in Deutschland.
Weitere Informationen:
Bauphysik: GN Bauphysik, Stuttgart
HLS-Planung: IWP Ingenieurbüro für Systemplanung GmbH, Stuttgart
Bauunternehmen: Bauunternehmung Streib, Mannheim (Rohbau) und Müllerblaustein Holzbauwerke, Blaustein (Holzbau)






















