Active Inclusion: School Expansion in Darmstadt-Eberstadt
Foto: Zooey Braun / www.zooeybraun.de
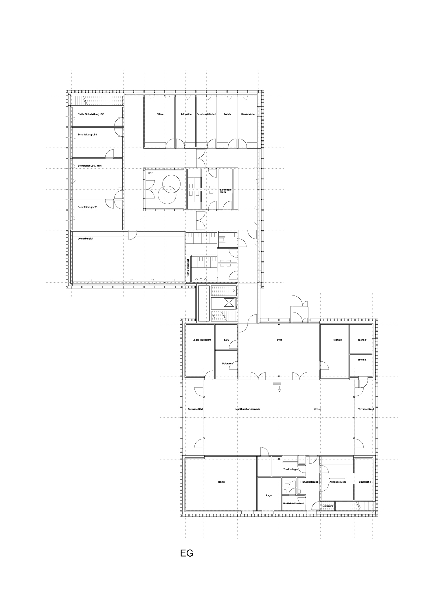
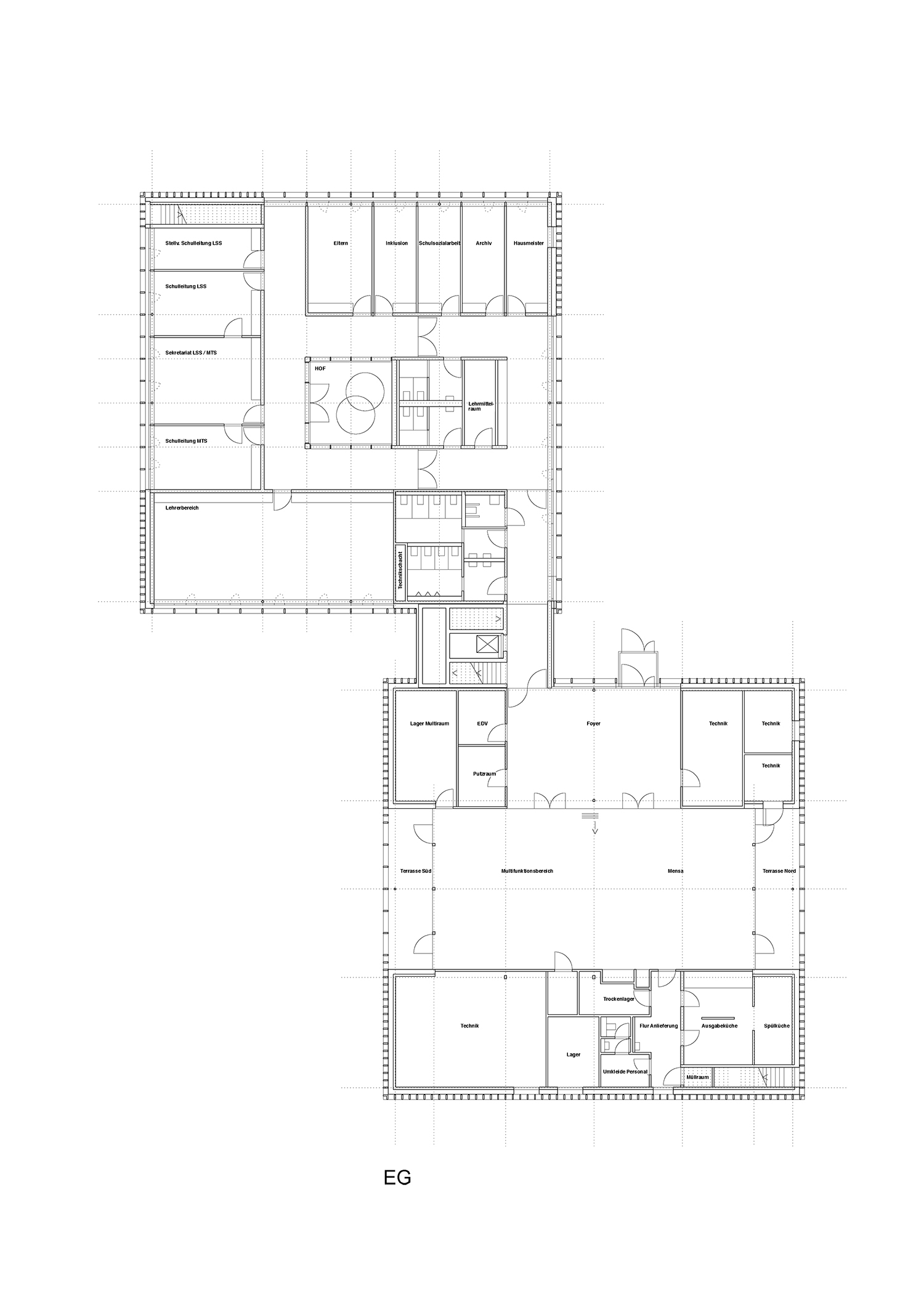
Before this, Ludwig Schwamb Primary School and the Mühltal Förderschule in Darmstadt-Eberstadt already shared their administration rooms, gym and schoolyard. With the addition by Walter Huber Architekten of Stuttgart, they will now come even closer. The two square, two-storey pavilions form the new centre of communal school activity with administration offices, teachers’ rooms and a cafeteria on the ground floor, as well as classrooms and rooms for all-day childcare on the upper level. The citizens of Eberstadt will also visit the school more often, for the cafeteria is designed to be used for public events after school hours. While the floor plans of the two pavilions are quite distinct on the ground floor, the upper levels are designed along similar principles. The classrooms and childcare rooms create a ring around an open teaching area that allows daylight to enter via a large skylight.
When it comes to public building projects, Darmstadt has been pursuing ambitious sustainability goals for quite some time. In keeping with these aims, the addition is a wooden construction. The load-bearing walls consist of laminated timber; the ceilings are made of glulam ribs with joists of the same material, as well as a suspended acoustic ceiling in genuine wood. Because of their greater load-bearing effect, some of the ceiling joists are of beechwood laminated veneer timber. The architects had to add a few steel beams only to the ceiling above the cafeteria, which has no support columns.
The exterior façades are divided by mighty, vertical slats of Douglas-fir glulam, where they form a compositional counterpoint to the horizontal bands of windows. They feature solid glazing: the pupils get fresh air from manually operated ventilation flaps located behind yellow slat cladding. After the building had been planned as a passive-energy structure for the architecture competition in 2015, its primary energy requirements have turned out be 38 % lower than the figures stipulated by the 2014 energy-saving regulations. Building with wood has significantly improved the carbon dioxide balance: according to the planners’ calculations, 800 m3 of building wood have trapped 704 tonnes of CO2. This corresponds to the annual emissions from 470 cars in Germany.
Further information:
Buildings physics: GN Bauphysik, Stuttgart
HLS-planning: IWP Ingenieurbüro für Systemplanung GmbH, Stuttgart
Contracting business: Bauunternehmung Streib, Mannheim (Building shell) and Müllerblaustein Holzbauwerke, Blaustein (Timberwork)






















