Fifty Shades of Red
Gemeinschaftszentrum bei Sydney von Manuelle Gautrand Architecture
Das neue Gemeinschaftszentrum befindet sich in prominenter Lage am Parramatta Square, dem Hauptplatz der gleichnamigen Stadt. © Sara Vita
Wie eine Welle aus Rottönen wächst die Gebäudehülle in Richtung Himmel. Selbstbewusst markiert das neue, multifunktionale Gemeinschaftszentrum in Parramatta das Zentrum der ostaustralischen Gemeinde.


Mit einem offenen Erdgeschoss lädt das Bauwerk zu einem Besuch ein. © Sara Vita
Westlich von Sydney befindet sich Parramatta. Im Herzen der geschäftigen Innenstadt, am Parramatta Square, gestalteten Manuelle Gautrand Architecture das Phive Civic Center. Der Entwurf möchte die Gegend revitalisieren und in einen gemeinschaftsorientierten Ort transformieren.
Durchdachte Form
Die Planungsrichtlinien gaben vor, den zentralen Platz und die Promenade nicht zu stark zu verschatten. Diese Vorgabe nutzen die Planenden als Ausgangspunkt. Den Verlauf der Sonne analysierend, skulpturierten sie die nach Nordosten hin ansteigende Form des Gebäudes. Der Clou dabei ist: Die Form des Gebäudes wirkt wie ein Kamin. Warme, verbrauchte Luft steigt nach oben und wird aus dem Gebäude geleitet. Dieser Kniff ersetzt in großem Maße eine Klimaanlage.


Die Gebäudehülle besteht aus zahlreichen Elementen in verschiedenen Rottönen und ist Dach und Fassade zugleich. © Sara Vita
Gebäudehülle aus gefalteten Paneelen
Die charakteristische Gebäudehülle besteht aus zahlreichen gefalteten Paneelen, die mit Fenstern ausgestattet sind. Diese belichten und verschatten das Innere zugleich: Die Farben der Elemente changieren aufsteigend von dunklen zu hellen Rottönen und schaffen einen fließenden Übergang zum Himmel.


Die Geschosse springen terrassenartig zurück und bieten verschiedene Ausblicke auf den Parramatta Square. © Nils Koening
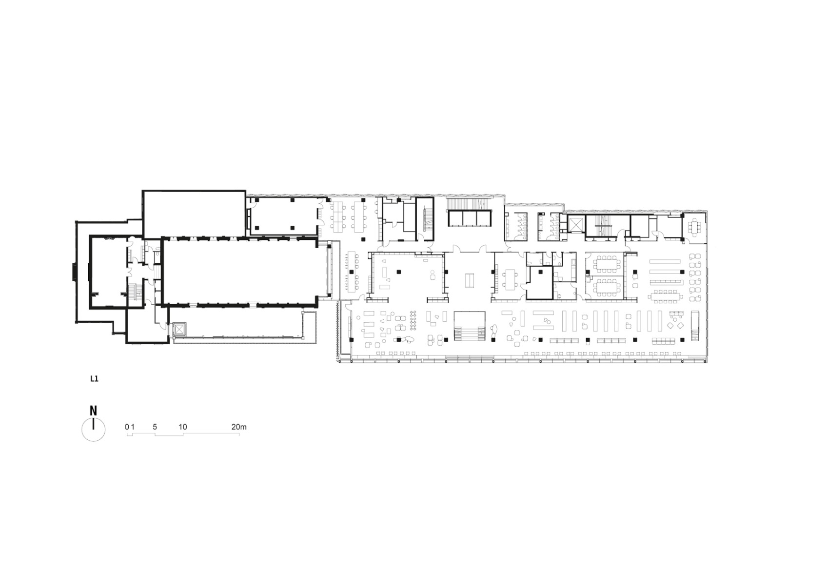
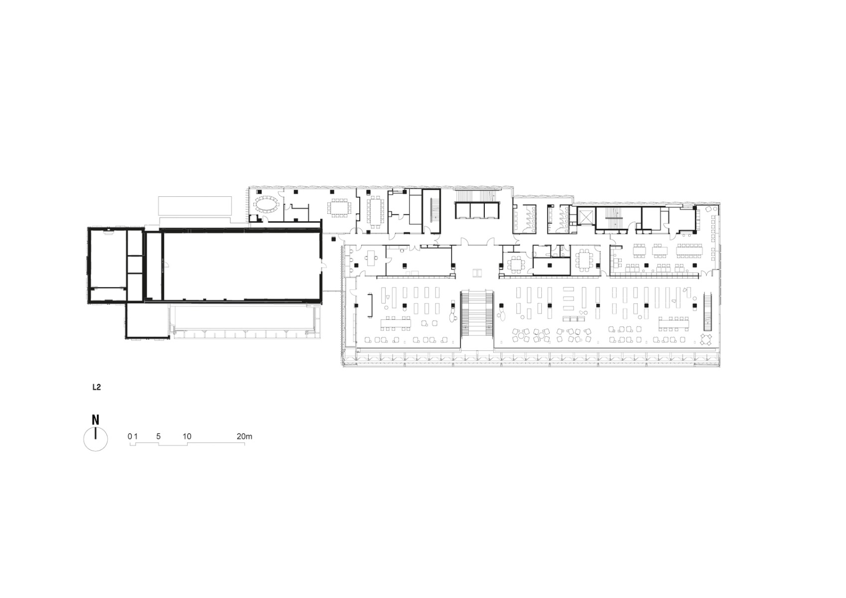
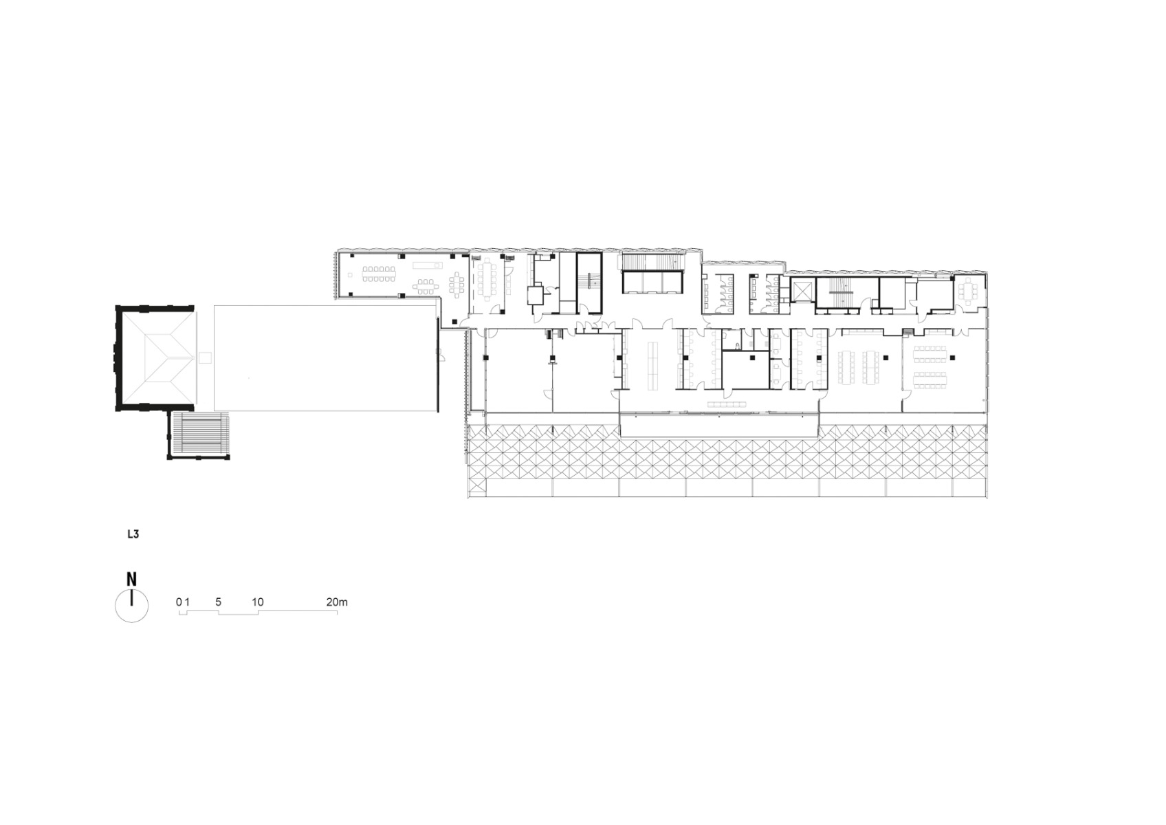
Raumprogramm
Das Raumprogramm umfasst eine Bibliothek, mehrere Ausstellungsbereiche sowie die Tagungs- und Verwaltungsräume des Stadtrats. Das offen gestaltete Erdgeschoss verstehen die Planenden als „Urban Living Room“. Es schafft einen fließenden Übergang zur Promenade. Je höher das Stockwerk, desto kleinere und ruhigere Rückzugsorte finden sich.


Neben Ausstellungsflächen und Räumen für den Stadtrat bildet die öffentliche Bibliothek das Herzstück der Anlage. © Sara Vita
Der Entwurf behält das lokale architektonische Erbe im Blick. Mithilfe eines offenen Erdgeschossgrundrisses werden Manuelle Gautrand Architecture das benachbarte Rathaus auch funktional mit dem Gemeinschaftszentrum verbinden.
Architektur: Manuelle Gautrand Architecture
Bauherr: Stadtrat Parramatta
Standort: 5 Parramatta Sq, Parramatta NSW 2150 (AU)
Design: DesignInc, Lacoste + Stevenson, Manuelle Gautrand Architecture


































