Innovation trifft Low-Tech
Gemeinschaftszentrum in Barcelona
© José Hevia
Haz Arquitectura realisieren mit dem Casal Trinitat Vella ein Gemeinschaftszentrum in Barcelona – (fast) ganz aus Holz. Ein intelligentes Energiekonzept komplettiert den Bau und minimiert seinen CO2-Fußabdruck.


© Adrià Goula
Das Centre de Vida Comunitària ist das erste von drei Gebäuden, die auf dem Areal in Trinitat Vella – einem Randbezirk der spanischen Metropole – entstehen sollen. Mit sozialen Einrichtungen und kulturellem Angebot wird der Neubau zum Treffpunkt für die Bewohner des Barrios. In den nächsten Jahren sollen Sozialwohnungen und betreutes Wohnen folgen.
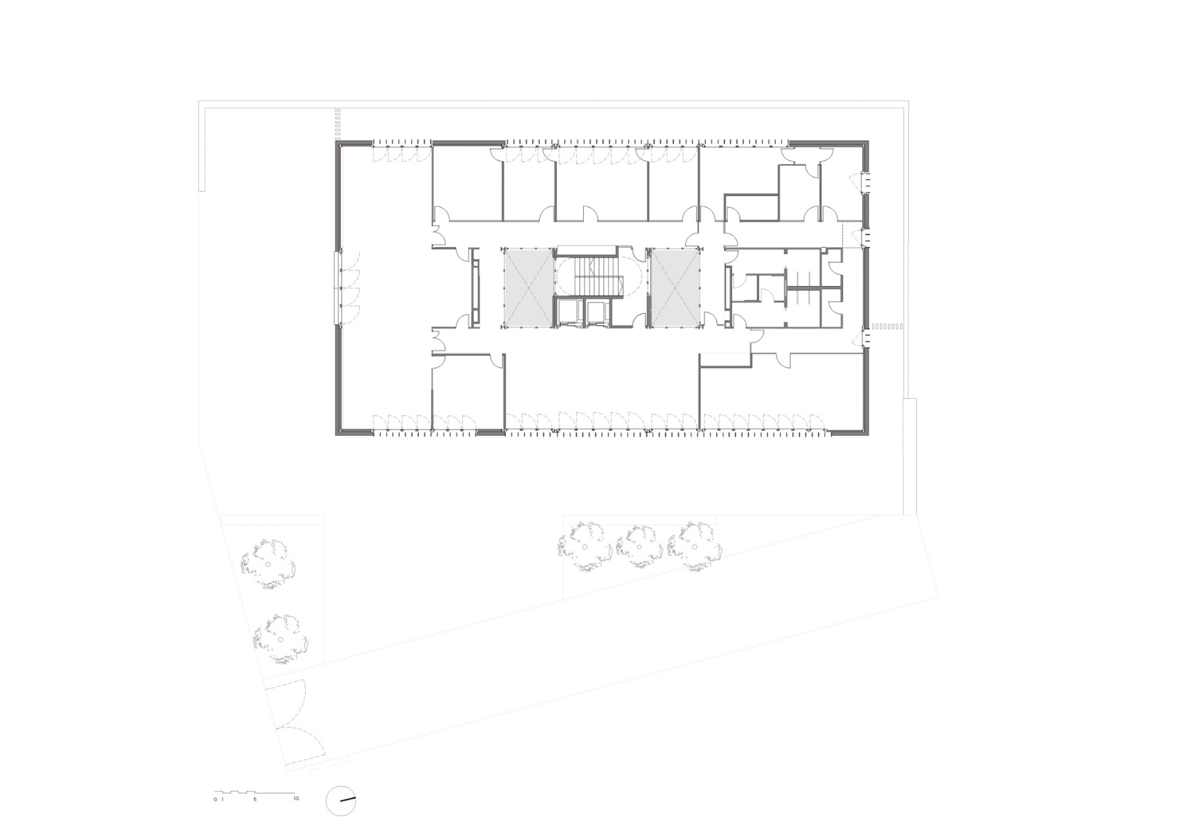
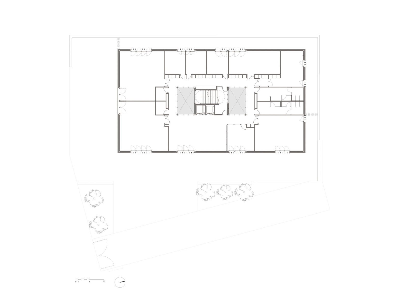
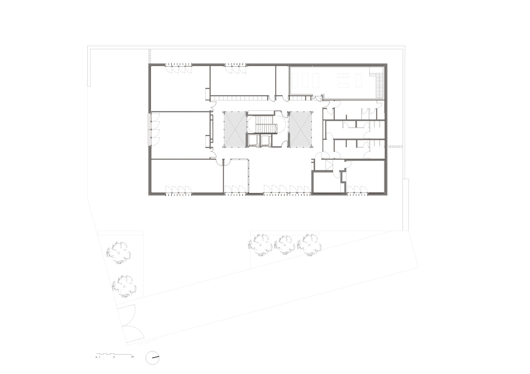
Um die Kompatibilität mit den beiden künftigen Projekten zu garantieren, entscheidet sich das katalanische Büro für eine schlichte Kubatur. Eine Fläche von 2300 m² verteilt sich in dem rechteckigen Zentrum auf vier Geschosse rund um einen Erschließungskern und auf zwei überdachte Innenhöfe.


© José Hevia
Neben flexiblen Mehrzweckräumen im Erdgeschoss gibt es in den übrigen Etagen Büros und Räumlichkeiten für soziale Dienste – darunter eine Frauenberatungsstelle – sowie für Vereine aus der Umgebung.


© José Hevia


© José Hevia
Bei der Konstruktion des Neubaus setzen die Architekten nahezu gänzlich auf Holz. Sie kombinieren eine Metallunterkonstruktion mit Brettsperrholz aus regionaler Kiefer. Holzlamellen prägen die Fassaden prägen und schützen vor direkter Sonneneinstrahlung. Im Innenraum sorgen unverkleidete CLT-Elemente für ein angenehmes Raumgefühl.


© José Hevia


© Adrià Goula
Während sich die Materialwahl des leichten Holzbaus mit einer optimierten CO2-Bilanz äußerst positiv auswirkt, stellt sie die Architekten aufgrund der geringen Speichermasse auch vor Herausforderungen. Die fehlende thermische Trägheit kompensieren sie mit einem Lowtech-Ansatz: Ein ins Erdreich integriertes Rohrsystem temperiert die Zuluft ganzjährig konstant auf 18 °C. Die beiden Höfe verteilen die frische Luft im gesamten Gebäude und heizen bzw. kühlen so die Räume. Photovoltaik-Paneele auf dem Dach sollen den Energiebedarf decken und runden das smarte, passive Konzept des Gemeinschaftszentrums ab.
Mehr dazu in Detail 4.2023 und in unserer Datenbank Detail Inspiration.
Architektur: Haz Arquitectura
Bauherr: Stadt Barcelona, BIMSA
Standort: Barcelona (ES)
Tragwerksplanung: BAC Engineering
Baukosten: 6,7 Mio. Euro


















