Gestaffelt gegen Großraum: Bürogebäude für Stelia Aerospace
Sitzplätze waren kaum mehr zu ergattern. Gespannt verfolgt das Publikum den Vortrag von Sandra Hofmeister und die anschließende Podiumsdiskussion.
Im Westen von Toulouse, wo der Flughafen und die Luftfahrttechnik angesiedelt sind, finden die Büros für Stelia Aerospace einen prominenten Standort. Von der Einfallstraße aus ist der lange, schmale Baukörper gut zu sehen.
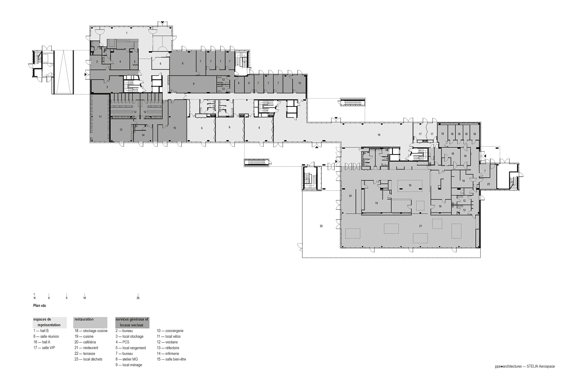
Um das Grundstück nicht einfach mit einem monolithischen Block zu füllen, gliederten ppa architectures das Bürogebäude für 900 Mitarbeiter in mehrere Bänder. Sie verspringen horizontal wie vertikal – der niedrigste Baukörper misst zwei Geschosse, der höchste sieben. Die Bänder haben mit 6,75 m jeweils die Breite eines Büroraumes zuzüglich dessen Erschließung.
Im Grundriss ergibt diese Staffelung eine zapfenförmige Kontur, die von drei Erschließungskernen gegliedert wird. Zwischen diesen Kernen liegen die Gemeinschafts- und Sanitärräume, während sich um die Kerne herum, entlang der Fassade, die Schreibtische der Angestellten befinden. Um die Arbeit in verschiedenen Abteilungen zu ermöglichen, lässt sich der fließende Raum in etwa 350 m² große Bereiche unterteilen.
Die Vorhangfassaden der Längsseiten sind mit dunklem Glas verkleidet. An der Nordseite verleihen Blendrahmen aus eloxiertem Aluminium den Baukörpern eine vertikale Gliederung. Auf der Südseite treten diese Rahmenelemente dann stärker hervor und bilden so Brisesoleils aus. Die Verwendung von eloxiertem Aluminium wird an den kurzen, komplett geschlossenen Gebäudeseiten auf die Spitze getrieben. Eine glatte Fassade aus eloxierten Aluminiumpaneelen verleiht ihnen das Erscheinungsbild einer Schnittfläche, wodurch das Spiel mit den verschobenen, wie in CAD extrudiert anmutenden Baukörpern, noch deutlicher hervorgehoben wird.
Weitere Informationen:
Kosten: 23,6 Millionen €
Verantwortlicher Partner: Guillaume Pujol
Projektleiterin: Sylvie Bouet
Mitarbeiter: Alonso Marquez Medina, Jules Terlaud, Héloise Arnaud
Wettbewerbsteam 2015: Elisabeth Lebas, Camille-Lou Grandrieux
Wettbewerbsteam 2013: Luc Armau, Amandine, Hernandez, Sarah Lorenzini


























