Staggering Counteracts Depth: Office Building for Stelia Aerospace
Sitzplätze waren kaum mehr zu ergattern. Gespannt verfolgt das Publikum den Vortrag von Sandra Hofmeister und die anschließende Podiumsdiskussion.
West of Toulouse, where the airport and centre of aviation technology are located, the offices of Stelia Aerospace occupy a prominent position. The long, narrow building is clearly visible from the access road.
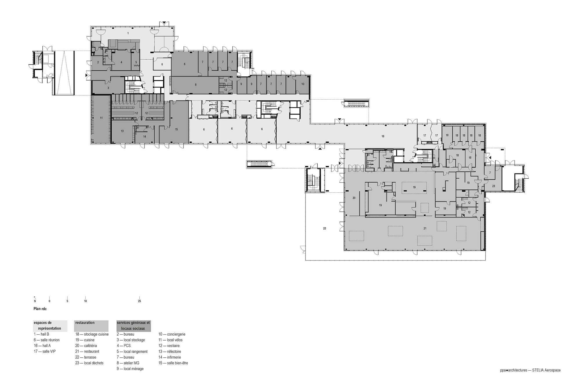
To prevent simply filling the lot with a single monolithic block, ppa architectures have divided the office building, which accommodates 900 employees, into several bands. These are offset both horizontally and vertically; the lowest structure is two storeys tall, and the highest seven. Each band is 6.75 m deep, which equals the width of an office area plus its access.
In the floor plan, this staggered effect creates a conical outline divided by three access cores. The communal and sanitary spaces lie among these cores, while the employees’ desks are located around the core, along the façade. In order to enable work in various departments, the fluid space is divided into areas measuring around 350 m² each. The curtain façades on the longitudinal sides of the structure are clad with dark glass. On the north side, frames of eloxated aluminum give the buildings a vertical character. On the south side, these frame elements protrude further to form sunscreens. On the shorter building sides, which are completely closed off, eloxated aluminum plays a more significant role. A smooth façade of eloxated aluminum panels gives these sides the look of a surface where the interplay with the offset structures, which suggest buildings extruded in CAD, is accentuated even more.
Further information:
Cost: 23,6 Millionen €
Responsible Partner: Guillaume Pujol
Project leader: Sylvie Bouet
Team: Alonso Marquez Medina, Jules Terlaud, Héloise Arnaud
Competition team 2015: Elisabeth Lebas, Camille-Lou Grandrieux
Competition team 2013: Luc Armau, Amandine, Hernandez, Sarah Lorenzini


























