Ökologisch und genossenschaftlich
Günstiger Wohnungsbau von Pau Vidal und Vivas Arquitectos
© José Hevia
Lorem Ipsum: Zwischenüberschrift
Genossenschaftsbauten in Barcelona sind meist eher klein und nur ein Tropfen auf den heißen Stein, um die Wohnungsnot dort zu lindern. Aber immerhin unterstützt auch die Stadtverwaltung die Maßnahmen mittlerweile und verpachtet Baugrundstücke an Wohnbaugenossenschaften. So auch das Grundstück für La Chalmeta, für das ein Pachtvertrag über 75 Jahre angeschlossen wurde und das mit Sozialwohnungen bebaut werden sollte.


© José Hevia
Gemeinschaftlich genutzt
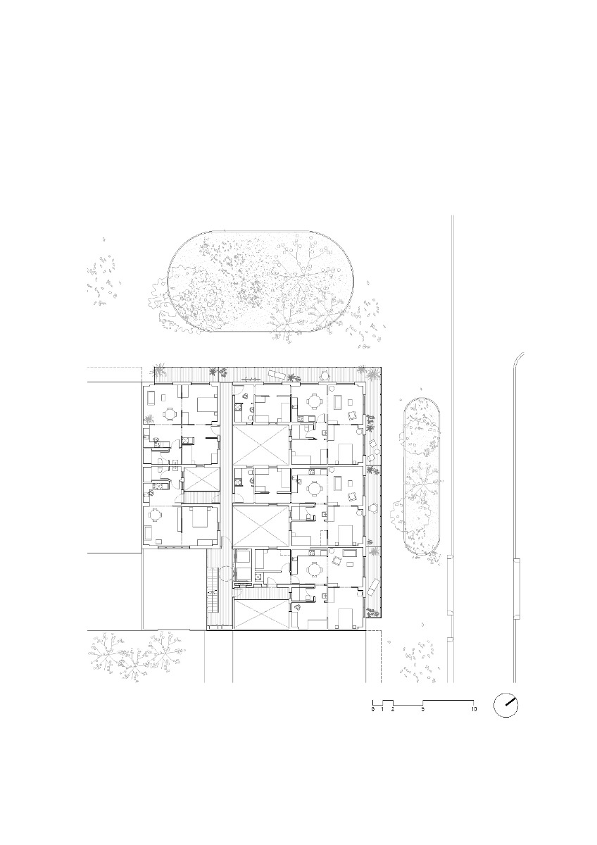
Pau Vidal und Vivas Arquitectos realisierten 32 Wohnungen, bei deren Konzeption und Gestaltung die zukünftigen Bewohnerinnen und Bewohner viel mitredeten. Besonders wichtig waren ihnen die Gemeinschaftsbereiche.
Lorem Ipsum: Zwischenüberschrift
So gruppieren sich im Erdgeschoss um zwei Innenhöfe herum die von der Genossenschaft genutzten Räume: ein Fitnessraum, eine Küche mit Esstisch, eine Waschküche, sowie mehrere Mehrzweck- und Coworking-Räume.


© José Hevia
Gestapelte Wohnungen
Die Wohnungen stapeln sich in einem acht- und einem viergeschossigen Gebäudeteil darüber. Durch die Staffelung bekommen alle ausreichend Tageslicht. Breite Laubengänge, die an zwei Seiten des Gebäudes umrunden, sind nicht nur Erschließung, sondern auch Balkon und Begegnungsfläche. Im 5. Obergeschoss führen sie auf das begrünte Dach des Viergeschossers, das als Gemeinschaftsterrasse genutzt wird.


© José Hevia


© José Hevia
Licht und Luft
Die Wohnungen sind hell und licht, mit Räumen annähernd gleicher Größe, denen keine festen Nutzungen zugewiesen sind. Sie können je nach Bedarf zusammengeschaltet werden. Alle Ein- bis Dreizimmerwohnungen orientieren sich zu Straße und Innenhof und können quergelüftet werden – ein wichtiger Beitrag, um die Räume kühl zu halten, ohne die Klimaanlage einschalten zu müssen.


© José Hevia


© José Hevia
Lorem Ipsum: Zwischenüberschrift
Für eine gute Energiebilanz sorgen außerdem Biobaustoffe und die Anbindung an das städtische Netz zur Erzeugung und Verteilung von Ökoenergie für Heizung und Warmwasser.
Architektur: Pau Vidal und Vivas Arquitectos
Bauherr: Llar Jove Marina Prat Vermell S.C.C.L
Standort: Ulldecona street, nr. 26-28, 08038 Barcelona (ES)
Bebaute Fläche: 3750 m²
Baukosten: 3,8 Mio €























