Harmonisch umgewandelt: Kempe Thill bauen Konzerthalle zum Stadtteilzentrum um
Foto: Ulrich Schwarz, Berlin
Kein Wunder, dass das Projekt elf Jahre dauerte. Denn eigentlich handelt es sich nicht um ein Projekt, sondern um mindestens vier: die Neugestaltung des historischen Harmonieparks, die Restaurierung und Umsiedelung des Peter-Benoit-Brunnen von Henry Van de Velde, der Bau eines Besprechungsraums und die Sanierung, Erweiterung und Umnutzung der alten Konzerthalle „De Harmonie“.
Doch lieber der Reihe nach: 1846 entstand nach den Plänen des jungen Architekten Pieter Dens im Süden von Antwerpen das Sommerkonzerthaus der Musikgesellschaft "Société Royale d’Harmonie". Knapp 45 Jahre später wurde der klassizistische Bau mit seinen großen Öffnungen zum Park substanziell umgebaut: sein Volumen auf das Doppelte vergrößert und eine flexible Ausstellungsfläche integriert. Schlussendlich kam in der Kulturstätte Ende der 1970er-Jahre eine Diskothek unter. Das noch vorhandene historische Interieur verschwand hinter Akustikdecken, die Fassaden hinter Holzverschlägen. Die Wechselbeziehung zwischen Innen- und Außenraum, die den ursprünglichen, klassizistischen Bau als festlichen Rahmen für Konzerte im Freien ausgezeichnet hatte, war zerstört.
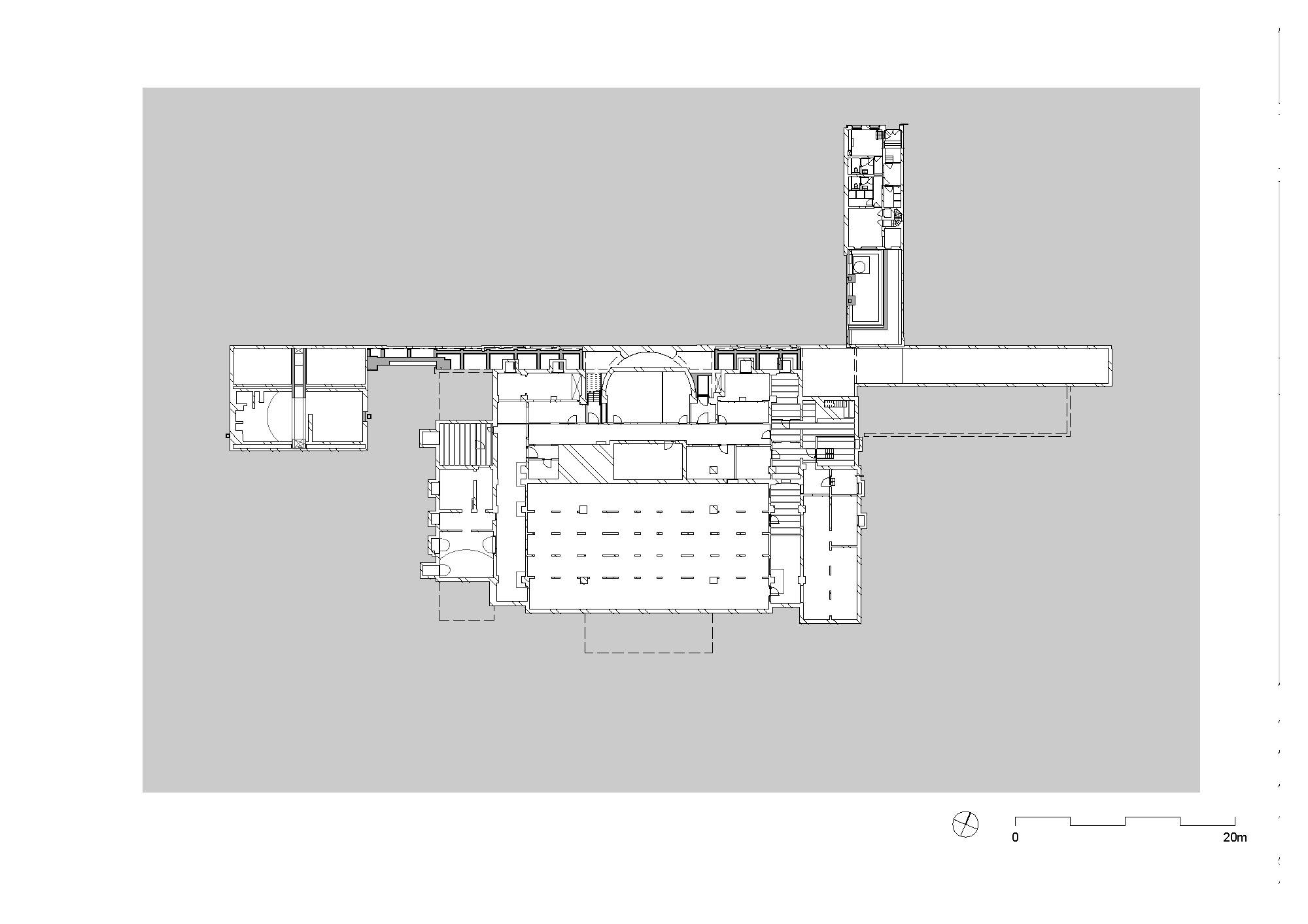
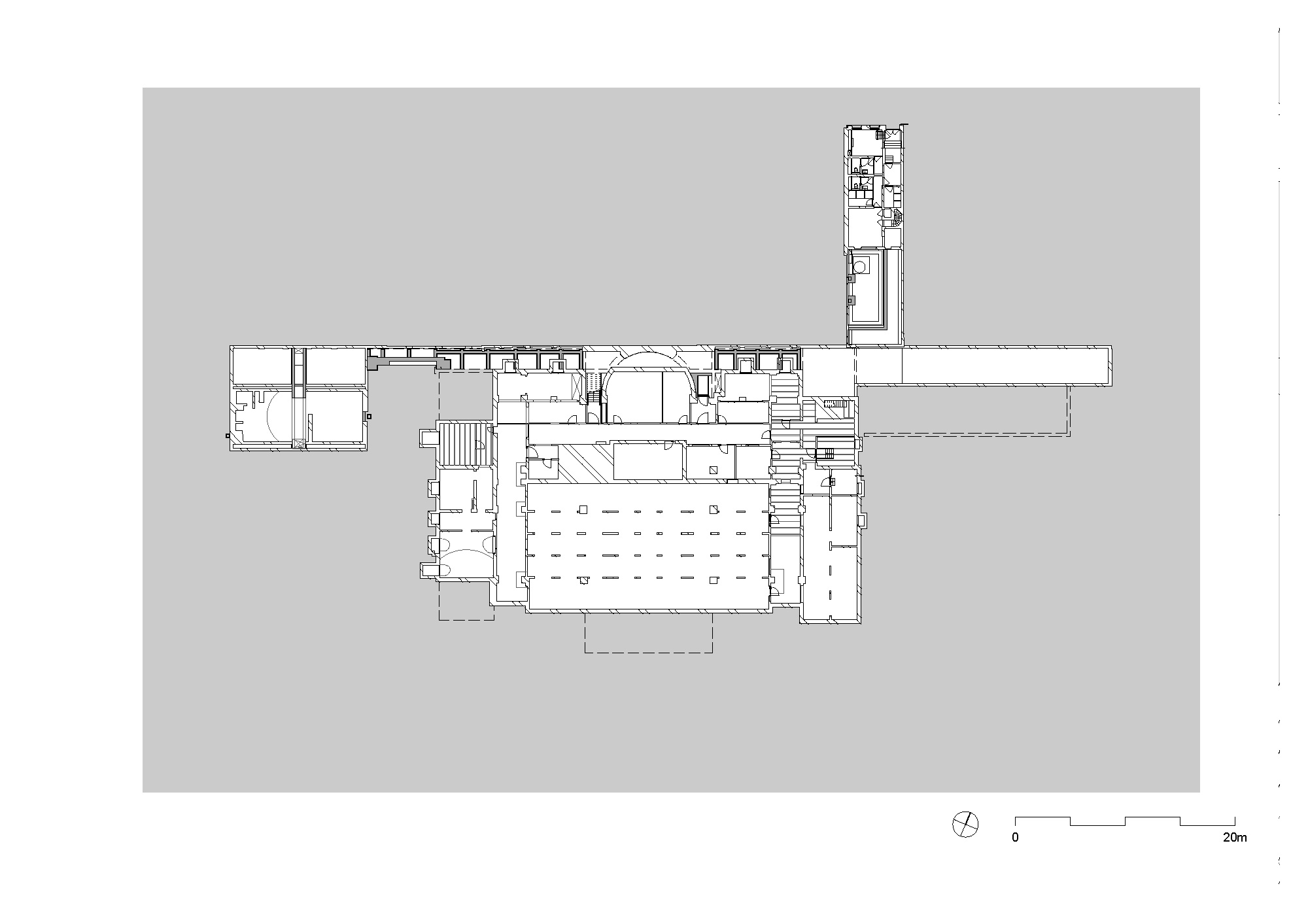
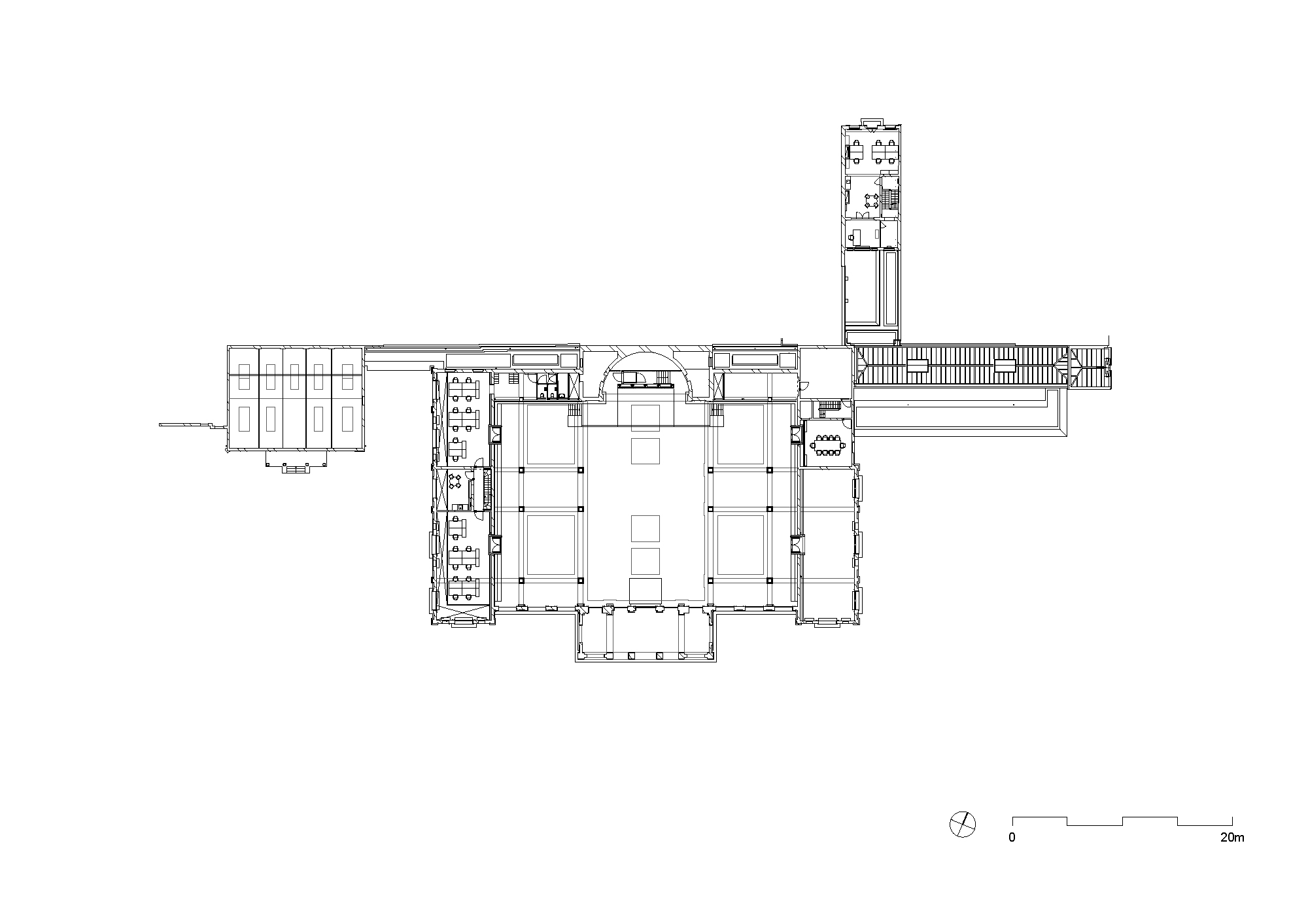
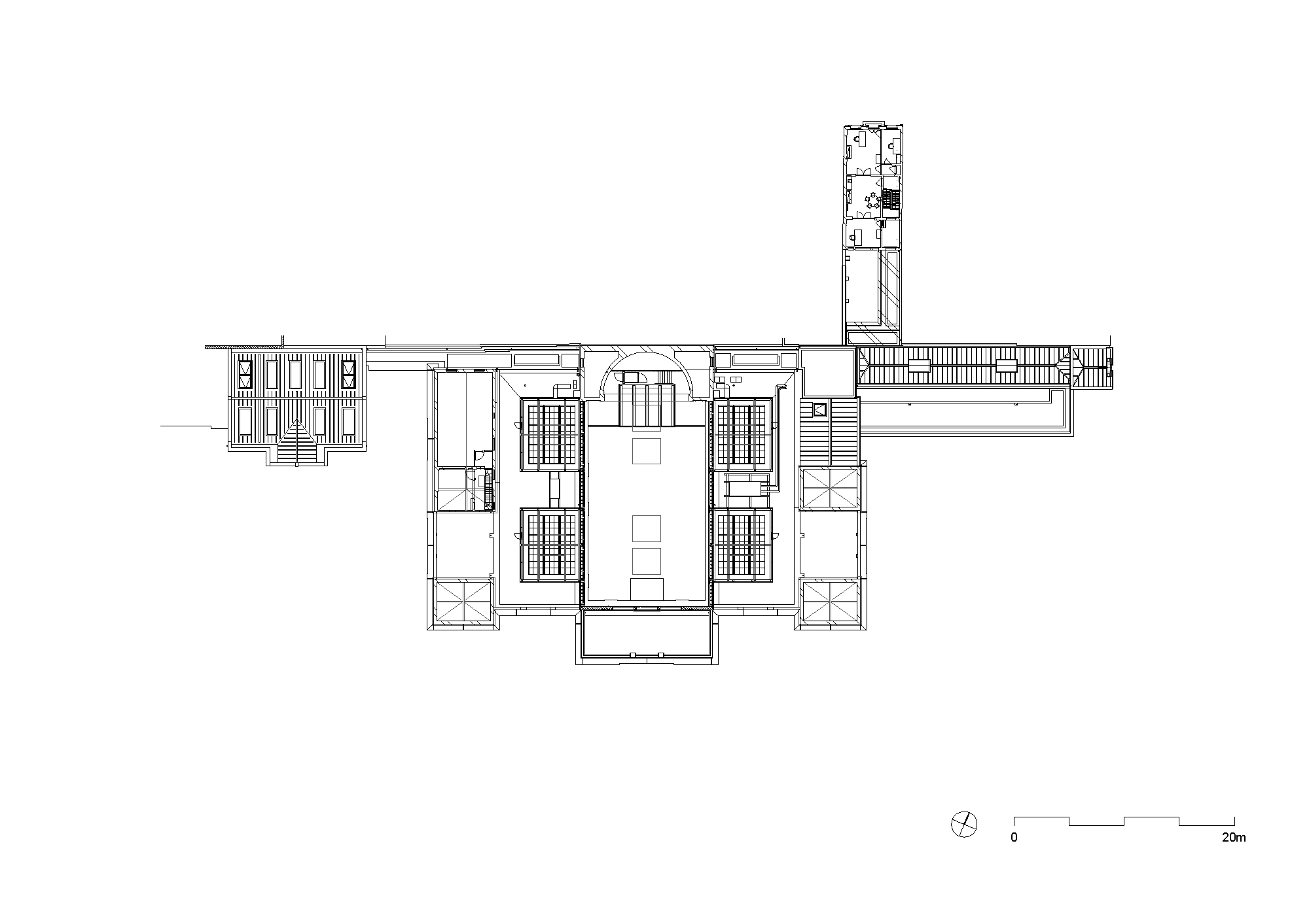
2010 schließlich sollte das Ensemble im Rahmen eines Open-Oproep-Wettbewerbs zum Festsaal umgestaltet werden. Nach dem Regierungswechsel drei Jahre später aber änderte sich der Plan und das neue Raumprogramm sah nun ein neues Stadtteilzentrum vor mit Bürgerbüro, Veranstaltungsflächen, Verwaltung und einem Café. Das ist nun in die ehemalige Orangerie eingezogen, mit ihrem beeindruckenden, offenen, historischen Dachstuhl. Das restaurierte Gebäude bildet den westlichen Endpunkt des Ensembles, auf den eine Ost-West gerichtete Erschließungsachse trifft, an die alle weiteren Gebäude angegliedert sind: das ist zum einen die ehemalige Konzerthalle mit dem jetzigen Bürgerzentrum, aber auch ein Stadthaus zur anderen Seite mit Büros.
Architektonisch tritt die Magistrale nur partiell in Erscheinung – zwischen Orangerie und Konzerthaus als Eingangshalle und an der Ostseite als gläserner Besprechungspavillon.
Die durchlässige, offene Architektur erlaubt nun auch wieder Blickbeziehungen in den Park. Dieser wurde nach dem Leitbild eines Englischen Landschaftsparks umgestaltet, mit schmalen mäandernden Wegen und geschwungenen Sitzbänken. Letztere bieten einen schönen Blick auf das alte neue Konzerthaus mit seiner jetzigen bürgernahen Funktion.
Weitere Informationen:
Ausführendes Büro: RE-ST architecten
Grundstücksfläche: 15.000 m2
Gesamtfläche: 3.177 m2
Gebäudevolumen: 20.803 m3
Baukosten: 12 Mio €



























