Harte Schale, leerer Kern: Ecole Jean Rostand in Lille von sam architecture
Foto: Charly Broyez
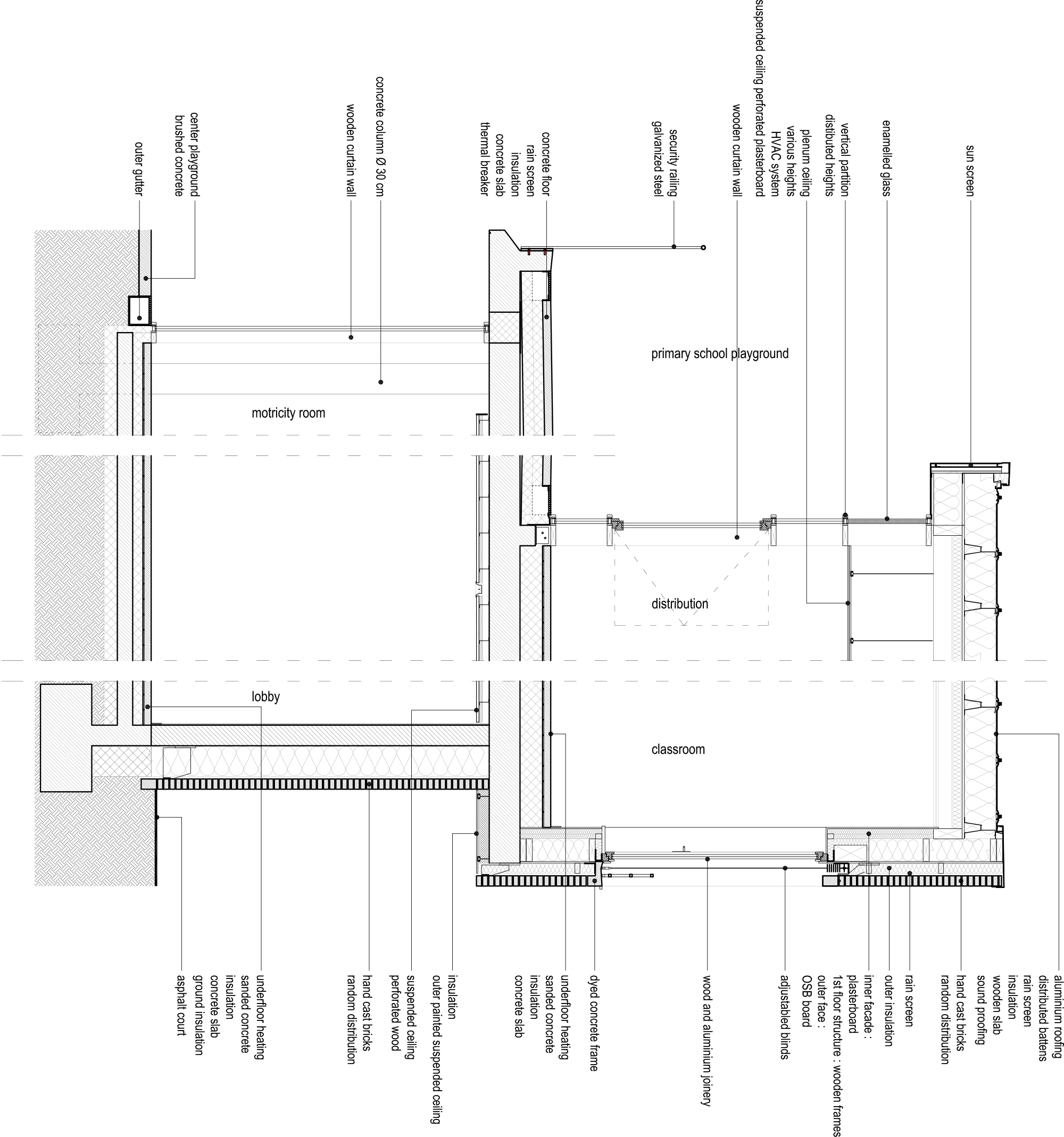
Das ehemalige Bahnarbeiterviertel Épine liegt zwischen Gleisanlagen, Ausfallstraßen und Gewerbegebieten östlich des Stadtzentrums von Lille. Dennoch stößt man zwischen den Reihenhäusern und den wenigen größeren Wohnblocks – so gut wie alles Sozialwohnbauten - auf viel Grün. Mit seinem Schulneubau greift das Pariser Büro sam architecture diesen Charakter des Viertels auf. Auf drei Seiten bilden Ziegelfassaden den harten „Rücken“ des Gebäudes, auf der vierten öffnen sich geschosshohe Verglasungen zum ovalen Schulhof, einer Dachterrasse im Obergeschoss sowie zum grünen Schulgarten im Inneren des Straßenblocks. Eine sehr subtile Faltung der Obergeschossfassaden und der Dachflächen gliedert das Bauvolumen. Die Erdgeschosswände leiten mit sanfter Krümmung auf den Haupteingang zu. Rund 360 Kinder in fünf Vorschul- und acht Grundschulklassen finden in dem Neubau Platz – und nach Schulschluss auch eine ganze Reihe außerschulischer Aktivitäten für die Quartiersbewohner. Dafür sind die Räume vor allem im Erdgeschoss multifunktional ausgelegt. Die Mensa zum Beispiel lässt sich während des Schulbetriebs in zwei Teile – einen für die Vorschule und einen für die Grundschule – teilen, aber auch als ungeteilter, 280 m2 großer Veranstaltungsraum nutzen. Der weitgehende Verzicht auf tragende Innenwände kommt der flexiblen Raumnutzung zugute. Stattdessen ruht das Flachdach über dem Erdgeschoss auf Stahlbetonstützen entlang der Innenhoffassaden.
Bei der Innenraumgestaltung legten die Architekten Wert auf möglichst authentische, unverkleidete Materialien wie Sichtbeton für die Böden, Ziegel für die Straßenfassade und perforierte Holzpaneele für die Akustikdecken. Die Pfosten-Riegel-Fassaden Richtung Hof und Garten bestehen aus Kiefernholz; im Obergeschoss tragen die Fassadenpfosten sogar das Dach. Weil die Stadt Lille als Bauherrin langfristig die Betriebskosten minimieren wollte, legte sie Wert auf eine energieeffiziente Bauweise. Daher entspricht der Neubau der Ecole Jean Rostand dem deutschen Passivhausstandard.
Weitere Informationen:
TGA-Planung: Elements Ingénierie
Elektroplanung: Betelec































