Hard Shell, Empty Core: Ecole Jean Rostand in Lille by sam architecture
Foto: Charly Broyez
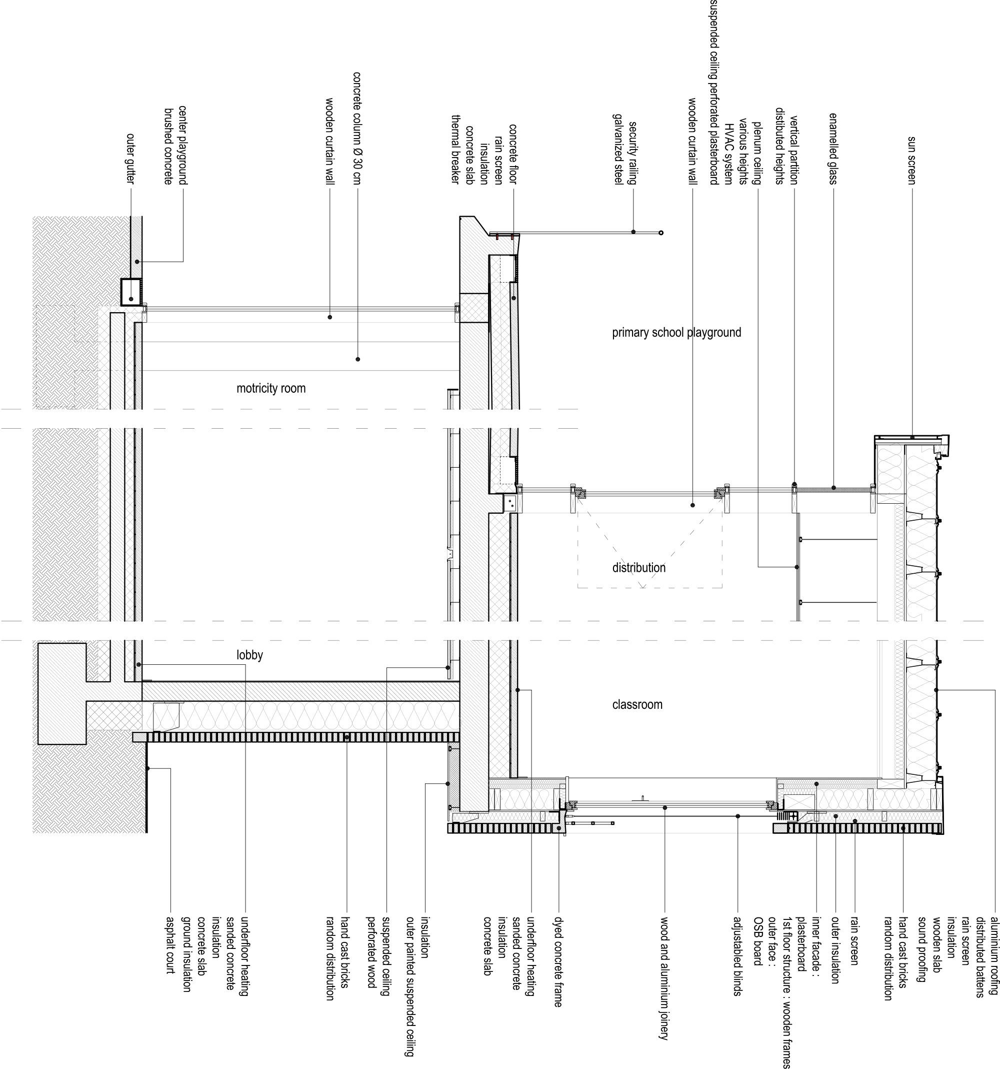
The district of Épine, once built for railway workers, is located between marshalling yards, aerial roads and commercial and light industry estates east of Lille’s city centre but at the same time offers much greenery between its row houses and few larger apartment blocks, most of them social housing. The new-built school designed by the Paris office sam architecture takes its cue from the character of the district. On three sides façades in brick form the building’s hard “backbone”; on the fourth, storey-high glazing opens onto the oval playground, a roof terrace on the upper floor and a green school garden located within the city block. Subtle height variations in the upper floor façades and roof areas articulate the volume; ground floor walls are bent slightly towards the main entrance. The building accommodates some 360 children in five nursery classes and eight primary school classes and also enables a number of extracurricular activities for the residents of the district after school hours; accordingly the ground floor rooms are designed to be multifunctional. The canteen, for example, can be divided into two sections during school hours – one for the preschool children and one for the primary school pupils – but also opened to form a 280-square-metre space for events and activities. The general absence of load-bearing interior walls is conducive to this flexible use of space; instead, the ground floor’s flat roof is supported by reinforced concrete posts set along the interior court façades.
In terms of interior design the architects made a point of using materials left unclad and also as authentic as possible, such as exposed concrete for the floors, brick for the street fronts and perforated wood for the acoustic ceiling panels. The post-and-beam exterior facing the playground and garden is built of pinewood, and on the upper floor the façade posts even support the roof at this level. As the client – the city – wished to minimise the school’s operating costs over the long run, it attached importance to energy-efficient construction. The new build Ecole Jean Rostand thus meets with the German Passivhaus standard.
Further Information:
TGA-Planning: Elements Ingénierie
Electrical planning: Betelec































