Haus der Kontraste: Beta realisieren Drei-Generationenhaus
Foto: Ossip van Duivenbode
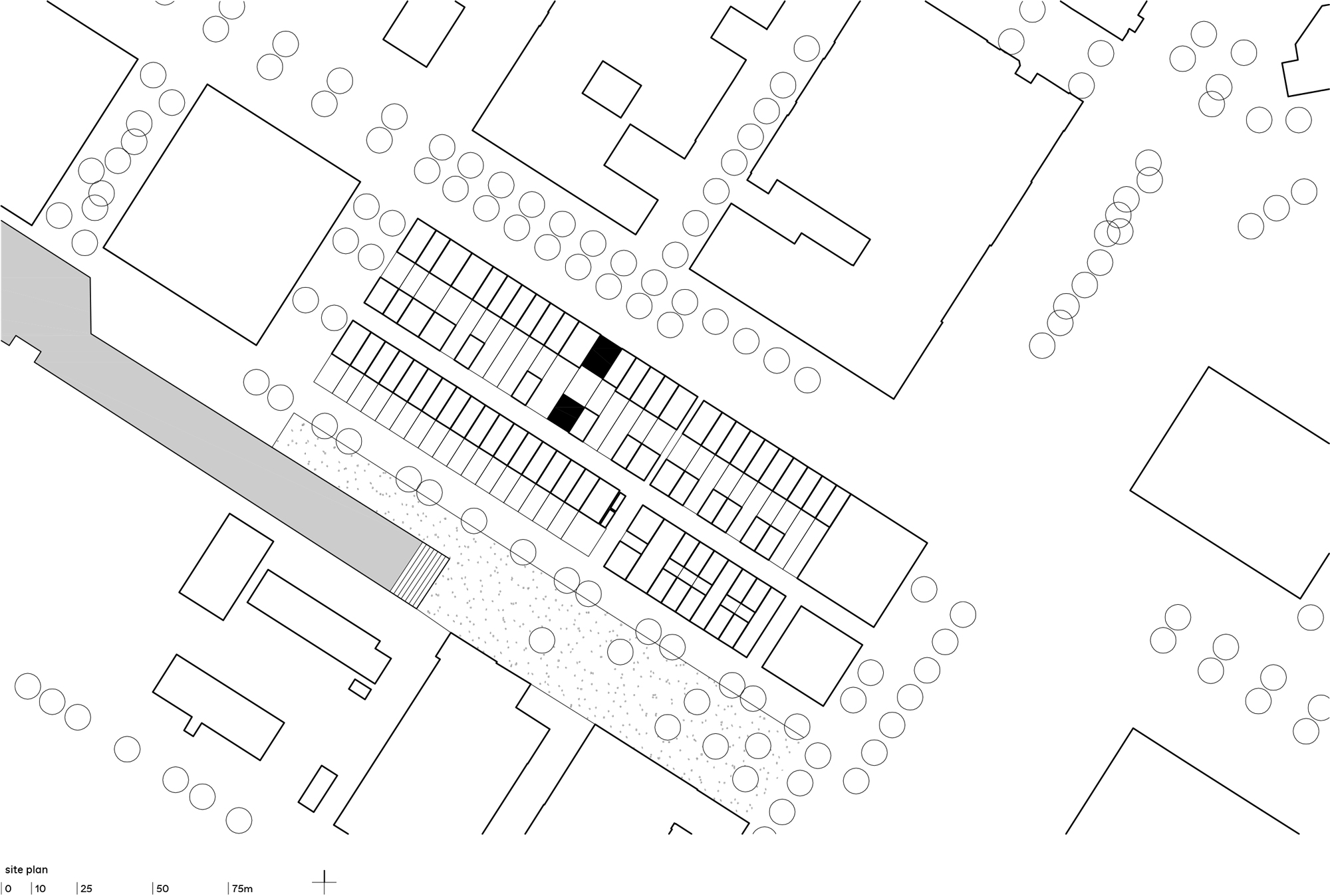
Das fünfgeschossige Drei-Generationenhaus im Norden von Amsterdam füllt eine 8 m schmale Baulücke. Seine kontrastreiche Gestaltung zeigt sich bereits bei einem Blick auf die beiden Hauptfassaden: Die zur Straße ausgerichtete, schwarze Nordansicht ist aus thermischen und akustischen Gründen als klassische Lochfassade ausgeführt. Auf der Südseite ermöglicht eine leichte Rahmenkonstruktion großflächige Verglasungen mit vorgelagerten Balkonen zum Garten hin.
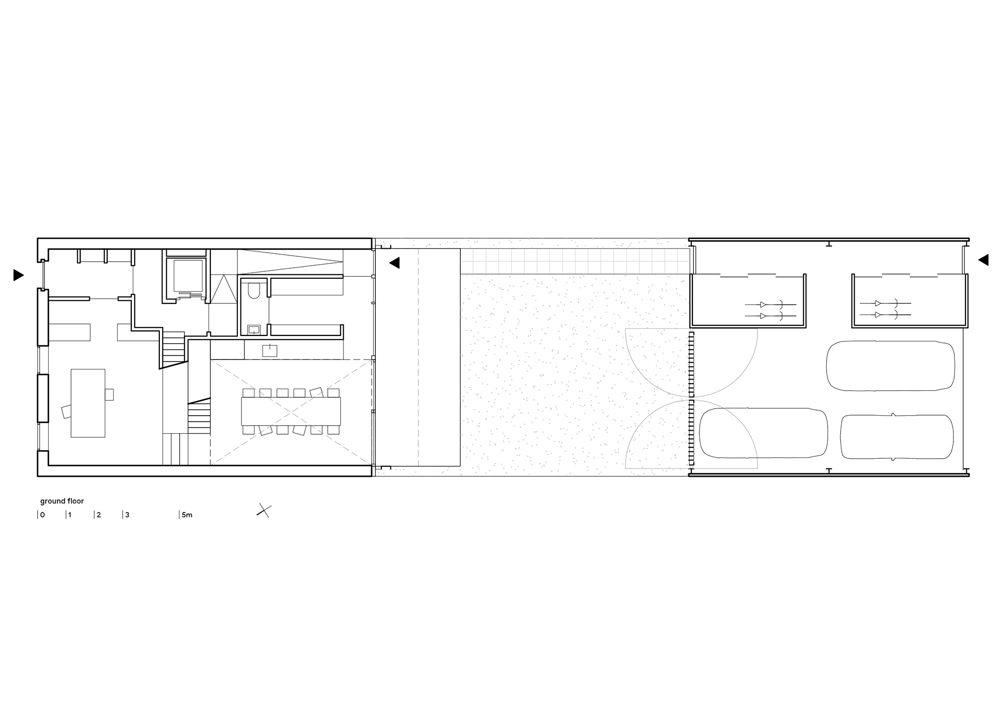
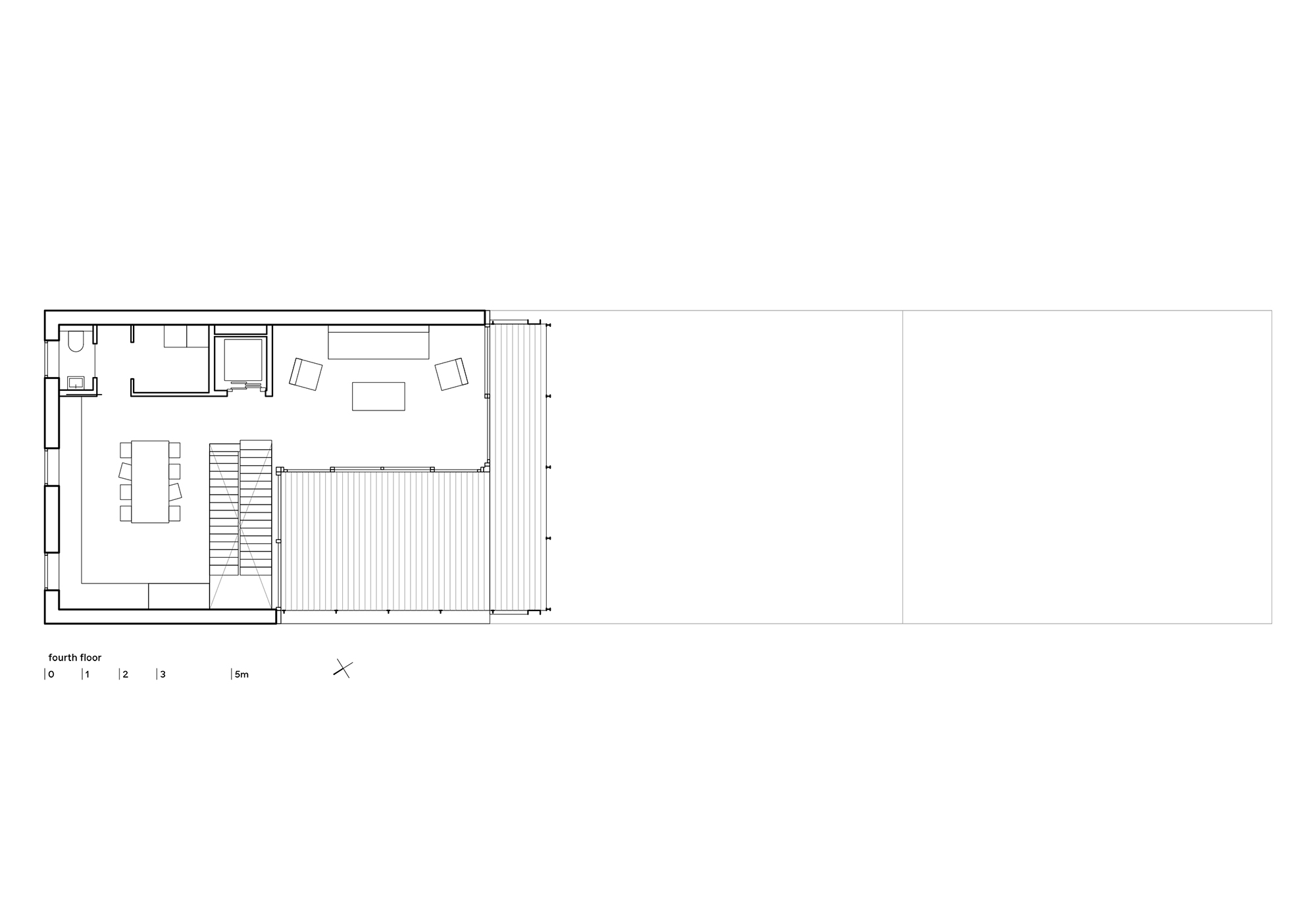
Im Inneren des Drei-Generationenhauses gibt es zwei getrennte Wohnungen. Ihre Verteilung erscheint auf den ersten Blick unkonventionell: Während die Großeltern oben untergebracht sind, bewohnt die Familie mit Kleinkindern die unteren Geschosse. So bleiben der älteren Generation die Aussicht und der jüngeren sowohl Bürofläche als auch direkter Gartenzugang vorbehalten. Ein Gästezimmer im unteren Bereich des oberen Apartments kann bei zukünftig veränderten Platzbedürfnissen einfach als Kinderzimmer umfunktioniert werden.
Die Anordnung der Innenräume orientiert sich an den gegensätzlichen Außenansichten. Die abgetrennten Zimmern befinden sich im Norden, die offenen, gemeinschaftlichen Bereiche im Süden. Als verbindendes Rückgrat fungiert die vertikale Erschließung. Eine zentral positionierte Treppe mit fast skulpturalem Charakter prägt vor allem in der unteren Wohneinheit den Raum. Hier befindet sich auch der Lift: Er garantiert Barrierefreiheit für die Großeltern und ermöglicht getrennte Zugänge zu beiden Wohnungen.




















