Home of contrasts: three-generation house by Beta
Foto: Ossip van Duivenbode
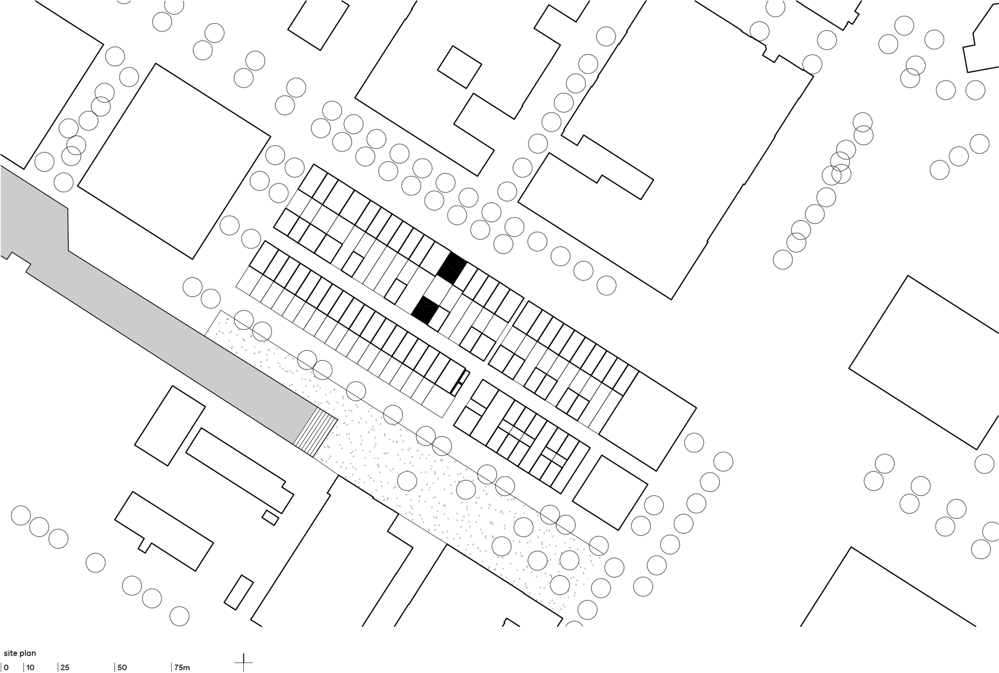
The five-storey three-generation house in north Amsterdam fills a narrow gap site eight metres in width, and comes with a contrast-rich interior indicated in the two main facades. The streetside elevation to the north is executed in black in the form of a classical punctuated façade for acoustic and thermal reasons, while the façade to the south comes with a light and airy frame structure that enables extensive glazing and balconies facing the garden.
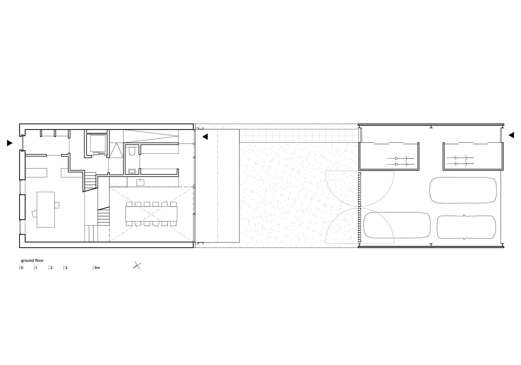
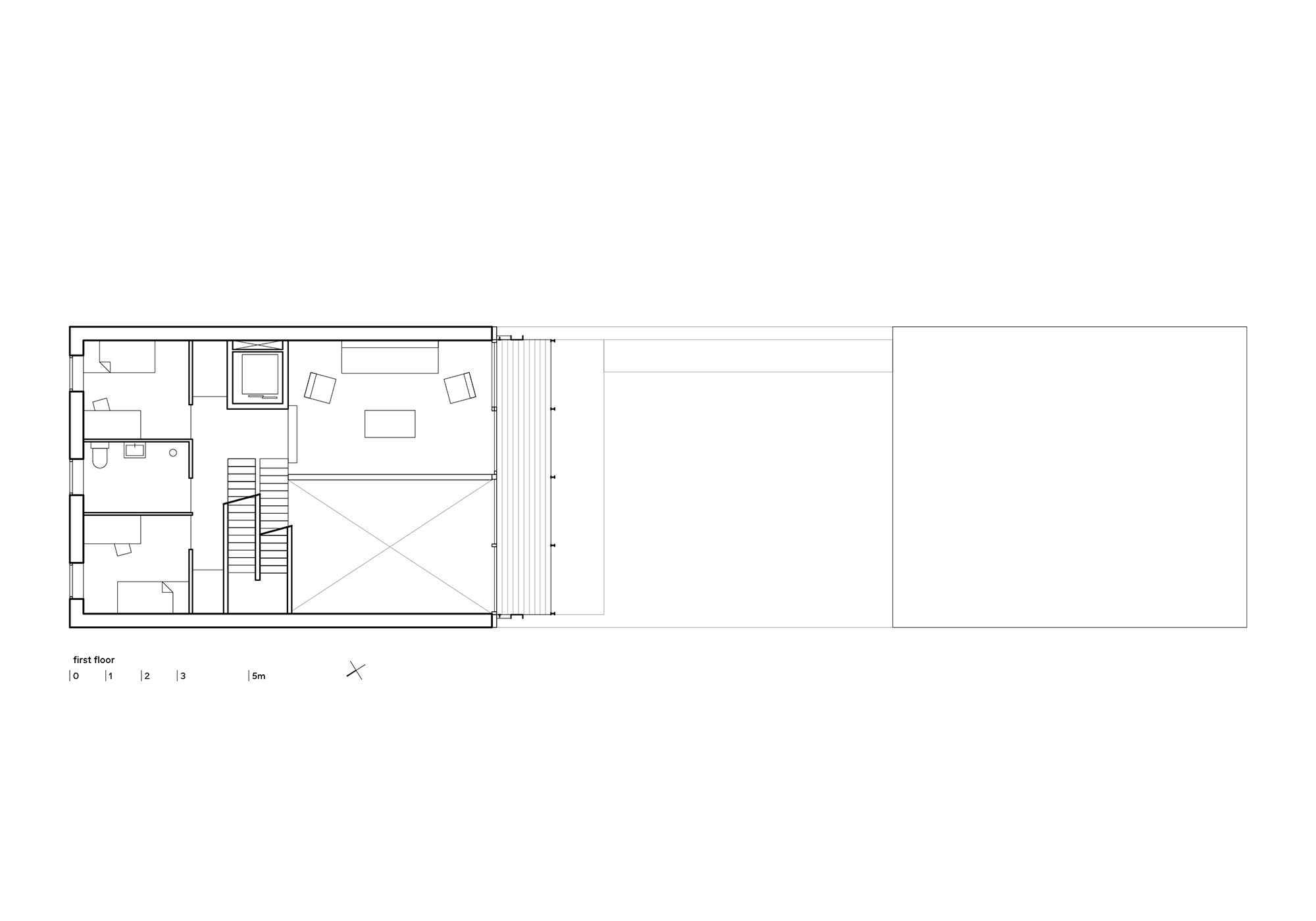
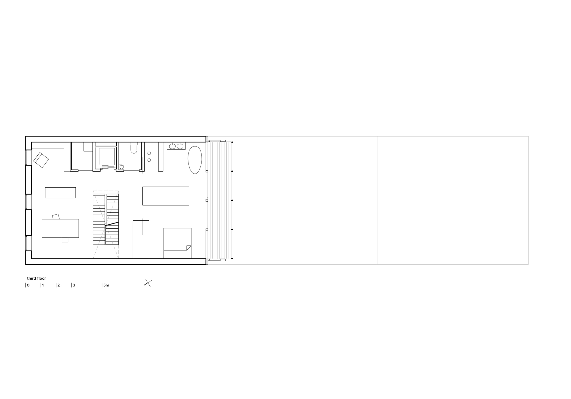
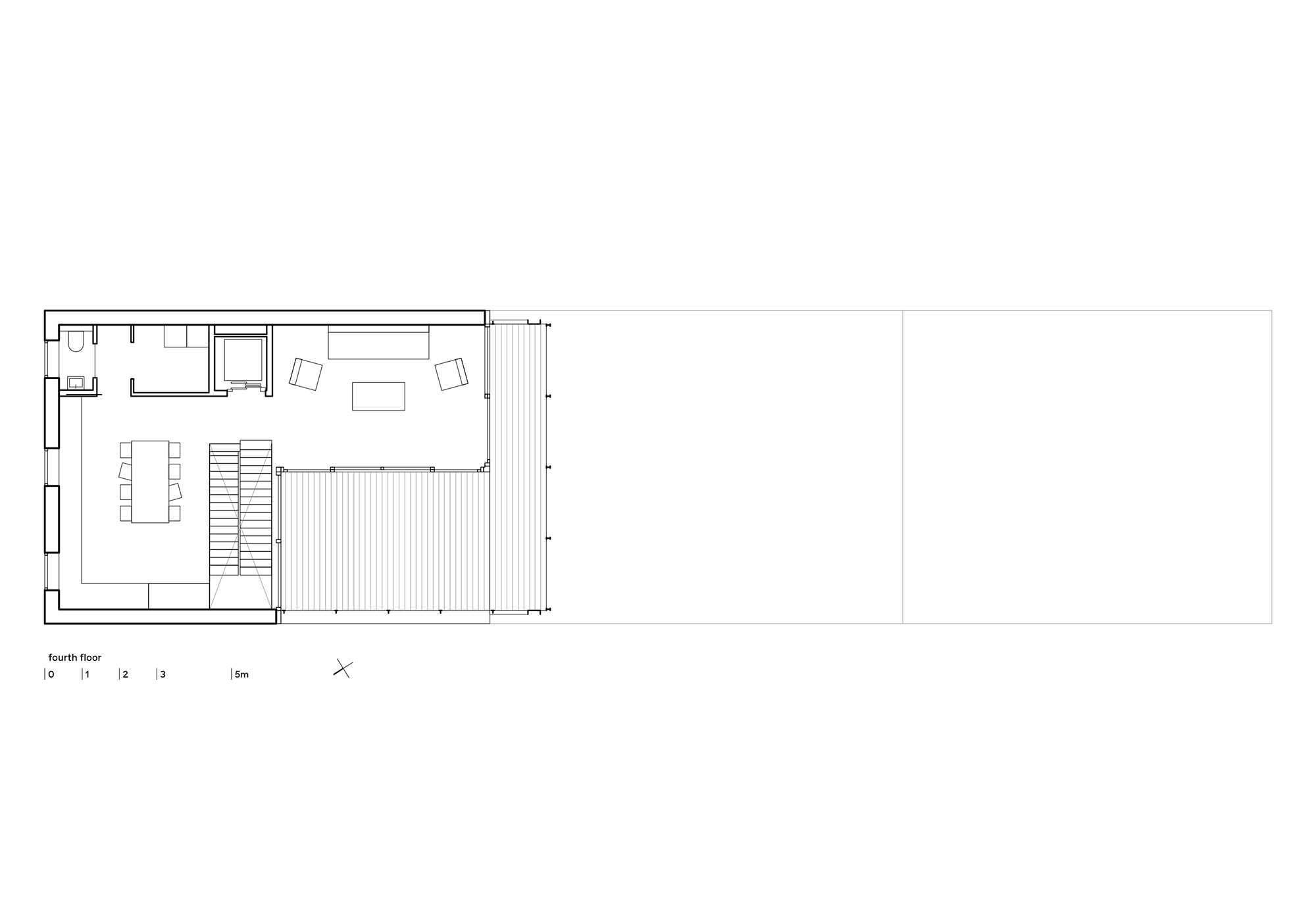
The three-generation house has two separate apartments that at first glance appear to be positioned unconventionally – while the grandparents are accommodated upstairs, the couple with children live in the lower one, thus providing the older generation with views and the younger one with both office space and direct access to the garden. A spare room in the lower floor of the upper apartment can be simply adapted into a child's room to accommodate future changes in spatial requirements.
The positioning of the rooms is oriented to the contrasting exterior elevations, with divided-off rooms situated to the north and the open-plan communal areas to the south. The vertical circulation acts as the building's backbone: an almost sculptural-looking staircase at the centre of the building defines the lower living unit in particular, and is accompanied by an elevator that guarantees barrier-free access for the grandparents as well as separate entrances to the two apartments.




















