Weißer Marmor für den grünen Campus
Headquarter Universität Málaga von Alcolea+Tárrago und Roberto Ercilla
© Javier Callejas
Die eleganten weißen Baukörper des neuen Verwaltungsgebäudes der Universität Málaga sind in strenger Geometrie um zwei Innenhöfe angeordnet. Direkt daneben liegt das neue Audimax mit 800 Sitzplätzen. Mit dem neuen Komplex konnten verschiedene Dienststellen auf dem Campus vereint werden. Durch die Verkleidung mit lokalem Marmor bilden alle Gebäude eine klare Einheit und erhalten den gewünschten repräsentativen Charakter. Die Architekten von Alcolea+Tárrago setzten auf eine sehr einheitliche Gestaltung, die vor allen Dingen von der weißen Farbgebung fast aller Flächen und den im Gegensatz dazu stehenden üppig begrünten Freiflächen lebt.


© Javier Callejas
Der weiße Marmor ist fast überall im Gebäude präsent und überzieht sowohl die Fassaden als auch die Böden, sowohl innen als auch außen. Dadurch entsteht ein fließendes Raumkontinuum, das die sorgfältig gestalteten Freiflächen mit den Innenräumen verbindet.
Die Büroräume der Verwaltung orientieren sich allesamt zu den beiden begrünten Höfen, eine zweite Spange mit Nebenräumen und Erschließung umgibt die Räume. Während im Erdgeschoss offene Büroräume vorherrschen, liegen im ersten Obergeschoss, das nur einen der Höfe umgibt, kleine Bürozellen.


© Javier Callejas
Auch die Fassade ist differenziert gestaltet. Ein langes Fensterband öffnet das Gebäude ebenerdig zu den Höfen. Im Obergeschoss bietet ein umlaufender Balkon mit schottenartigen Stahlfinnen und textilen Stoffbahnen Sonnenschutz und Ausblicke auf den Hof.


© Javier Callejas


© Javier Callejas
Für die Begrünung wurde eine mediterrane, anspruchslose Vegetation mit Sträuchern und Bäumen gewählt, die Schatten und kühle Rückzugsorte für die Mitarbeiter versprechen. In einem der landschaftlich gestalteten Höfe sind zwei Pavillons mit Multifunktionsräumen locker platziert.


© Javier Callejas
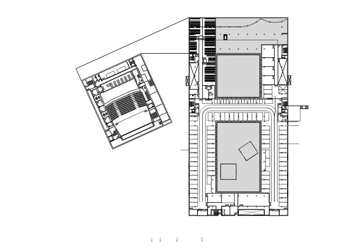
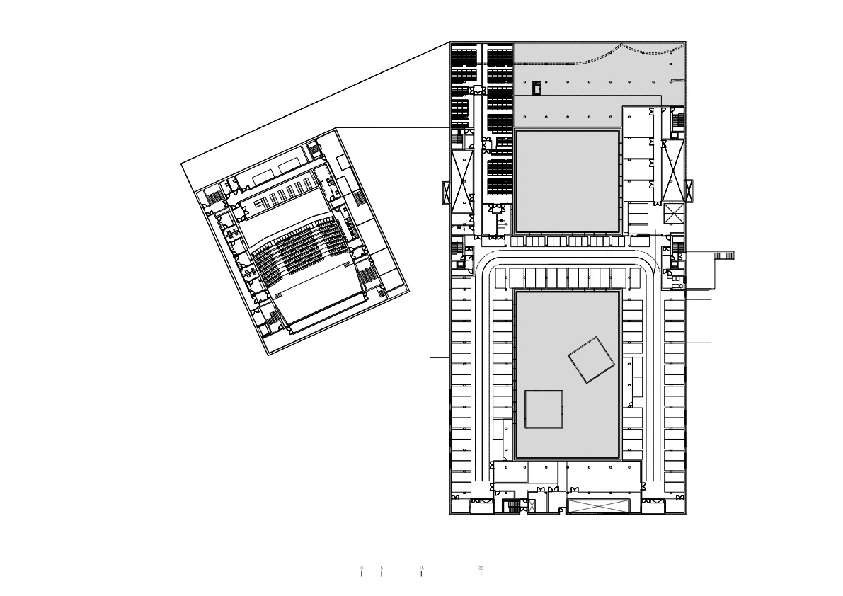
Das Audimax fügt sich in die Topografie des Geländes ein. Die in Nord-Süd-Richtung leicht in den Untergrund versenkten Sitzreihen minimieren das sichtbare Volumen und verbessern die Energiebilanz. Das geschwungene Dach verweist auch von außen auf die Nutzung als Auditorium. Besucher können das große Foyer des Audimax von zwei Seiten betreten. Ein Wegenetz führt zu den Parkplätzen und auf der anderen Seite verbindet eine Pergola das Gebäude direkt mit der Verwaltung.
Architektur: (Rubén Alcolea / Jorge Tárrago / Roberto Ercilla/ Jokin Lecumberri / Antonio Cidoncha)
Bauherr: Universidad de Málaga, Vicerrectorado Smart Campus y Sostenibilidad
Standort: Calle Doctor Ortiz Ramos, Málaga, España (ES)
Bauunternehmen: UTE Sando-Conacon































