Klimagerechter Hochschulbau
Universitätsgebäude von Ignacio Urquiza Arquitectos
© Ignacio Urquiza/Estudio Urquiza
Mit dem neuen Campus der Escuela Bancaria y Comercial (EBC) von Ignacio Urquiza Arquitectos entsteht im Norden von Mérida bereits der zweite Standort der mexikanischen Wirtschaftsuniversität. In einem stark wachsenden Viertel gelegen, bietet der Neubau zusätzlichen Platz für das Bildungsangebot der Hochschule und die Studierenden.


© Ignacio Urquiza/Estudio Urquiza
Der Entwurf reagiert nicht nur auf den Kontext und die Anforderungen, sondern auch auf die klimatischen Bedingungen der Region. Auf der Halbinsel Yucatán gelegen, ist das Klima der Stadt Mérida von heißen Temperaturen, intensivem Regen und hoher Luftfeuchtigkeit geprägt.
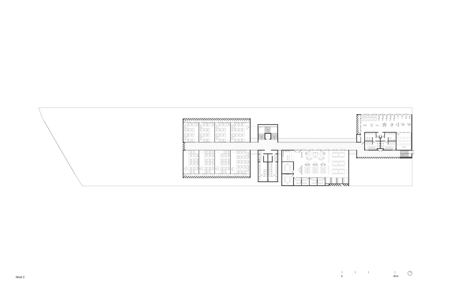
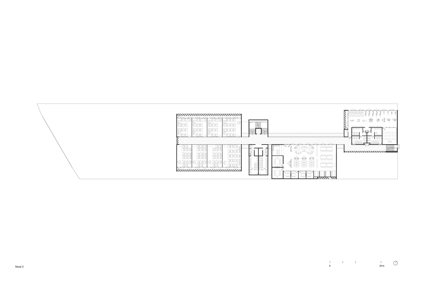
Das Planerteam verteilt das geforderte Programm auf sechs massive Baukörper, die sich auf dem länglichen Grundstück aneinanderreihen. Sämtliche Ansichten sind in naturfarbenem Chukum-Putz gestaltet. Das lokale Material sorgt für ein einheitliches Gesamtbild. Zudem ist es langlebig und pflegeleicht und dadurch besonders nachhaltig.


© Ignacio Urquiza/Estudio Urquiza
Zum Schutz vor der Sonne zeigt sich das Ensemble rundum fast gänzlich geschlossen. Lediglich die offener ausgeführten Nordfassaden holen mit Glasflächen Tageslicht und kühle Luft bis tief in die Innenräume. Ein zentraler Hof lädt als Herzstück des Campus Studierende und andere Nutzer der Universität zu Veranstaltungen ein. Er wird auf mehreren Etagen von Säulengängen begleitet, die als außenliegende Erschließung fungieren und die Flure der Hauptgebäude verbinden.


© Ignacio Urquiza/Estudio Urquiza


© Ignacio Urquiza/Estudio Urquiza
Neben Unterrichts- und Seminarräumen umfasst der 6700 m² große Komplex eine Mehrzweckhalle, zwei Auditorien, eine Cafeteria sowie eine Bibliothek und diverse Lehr- und Lernbereiche. Zwischen den einzelnen Volumen gibt es schattige Außenflächen und Plätze. Außerdem stellen gezielte Öffnungen in den einzelnen Trakten der Universität immer wieder den Bezug nach draußen her. Die Anordnung der unterschiedlichen Funktionen soll Begegnungen und Austausch auf dem gesamten Gelände fördern und die EBC in Mérida so nicht nur zum akademischen, sondern auch zum sozialen Treffpunkt machen.
Bauherr: EBC Escuela Bancaria y Comercial
Architektur: Ignacio Urquiza Arquitectos
Tragwerksplanung: Estudios y Supervisión del Sureste
Standort: Revolución Plaza Chedraui Selecto Norte, C. 60 301, Cordemex, 97110 Mérida (MX)
Landschaftsarchitektur: Genfor Landscaping
HLS-Planung: AKF Group
Innenraumplanung: Taller Leticia Serrano






















