Climate-adapted postsecondary school
University Building by Ignacio Urquiza Arquitectos
© Ignacio Urquiza/Estudio Urquiza
The new campus of the Escuela Bancaria y Comercial (EBC) by Ignacio Urquiza Arquitectos, which represents the second location of Mexico’s university of economics, has now been erected north of Mérida. Situated in a rapidly growing district, the new building offers additional space for both the university’s educational program and its students.


@ Ignacio Urquiza/Estudio Urquiza
The design responds not only to its context and requirements, but also to the area’s climate conditions. The climate in Mérida, which is located in the Yucatán Peninsula, is characterized by high temperatures, intense rainfall and pervasive humidity.
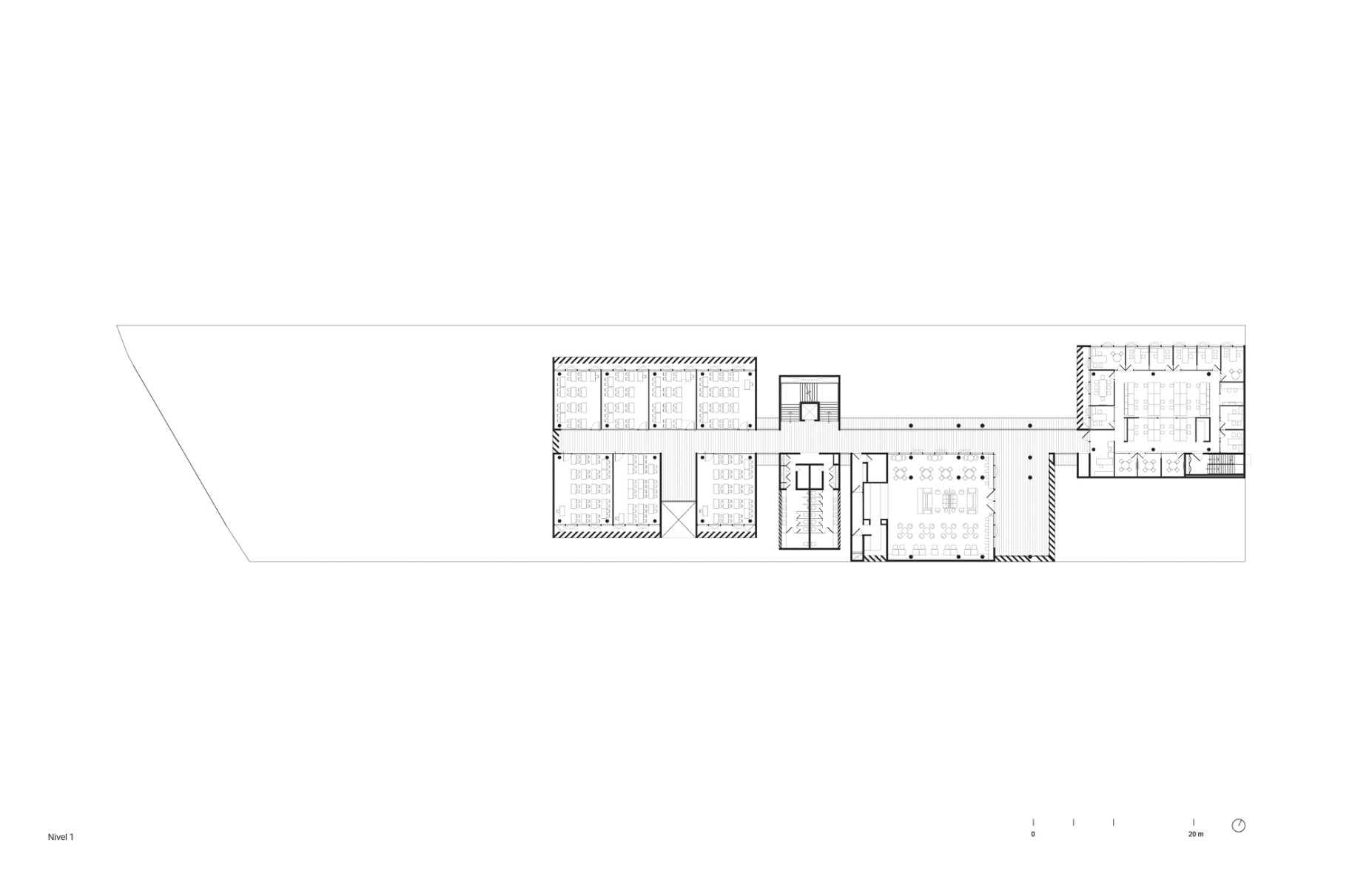
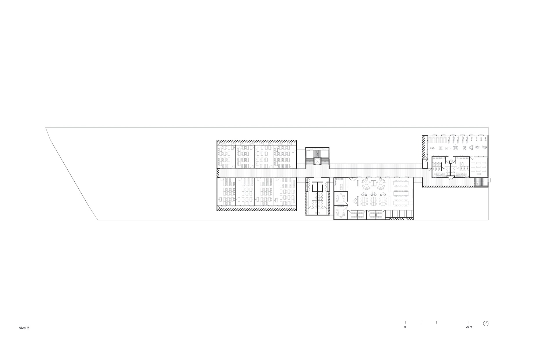
The planning team have distributed the requisite program over six imposing structures lined up on the long, narrow lot. All views of the buildings have been finished in a natural shade of Chukum stucco, a local material that creates a consistent overall image. Moreover, it is durable and low-maintenance, features that make it particularly sustainable.


@ Ignacio Urquiza/Estudio Urquiza
The ensemble is almost entirely closed off all the way around to provide protection from the sun. Only the open north-facing facades have glazed areas that allow daylight and cool air deep into the interior spaces. A central courtyard is the heart of the campus; it invites students and other university users to attend various events. On several storeys, it is offset by colonnades that function as outdoor access points and link the corridors of the main buildings.


@ Ignacio Urquiza/Estudio Urquiza


@ Ignacio Urquiza/Estudio Urquiza
Apart from classrooms and seminar spaces, the 6700 m² complex encompasses a multipurpose hall, two auditoria, a cafeteria, a library and various areas devoted to teaching and learning. Shady outdoor areas and plazas appear between the individual volumes. Furthermore, targeted openings in the individual tracts of the university create points of reference to the outdoors. The arrangement of the diverse functions will promote encounters and exchanges all over campus, making the EBC in Mérida a social meeting point as well as an academic one.
Client: EBC Escuela Bancaria y Comercial
Architecture: Ignacio Urquiza Arquitectos
Structural engineering: Estudios y Supervisión del Sureste
Locartion: Revolución Plaza Chedraui Selecto Norte, C. 60 301, Cordemex, 97110 Mérida (MX)
Landscape architecture: Genfor Landscaping
Mechanical services: AKF Group
Interior planning: Taller Leticia Serrano






















