Nachhaltiger Hochschulbau
Herzog & de Meuron: Camouflage in Battersea
© Iwan Baan
Lorem Ipsum: Zwischenüberschrift
Eine effiziente flexible und robuste Fabrik hat das Royal College of Art für seine Erweiterung im Londoner Stadtteil Battersea gefordert. Herzog & de Meuron lieferten nun ein Ensemble, das die Elemente des Viertels aufnimmt und dennoch eine eigenständige Landmarke bildet.


© Iwan Baan
Lorem Ipsum: Zwischenüberschrift
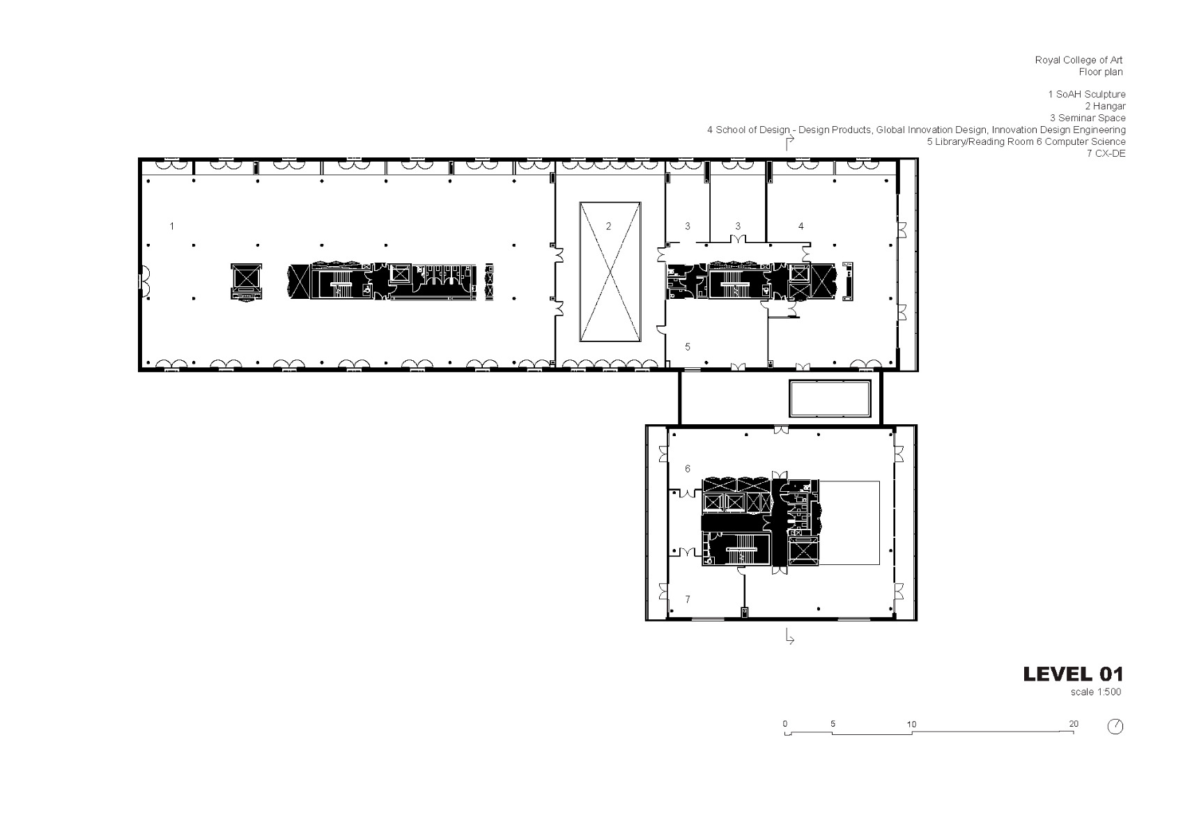
Der bestehende heterogene Battersea Campus der renommierten Kunst-und Designhochschule besteht aus Riegeln unterschiedlicher Höhe mit kleinteiligen Shedoberlichtern. Südlich davon auf der gegenüberliegenden Seite der Howie Street haben die Schweizer Architekten nun einen Erweiterungsbau geschaffen, dessen sparsame architektonische Mittel dem geforderten flexiblen Container mit 15 500 m² Nutzfläche eine unverwechselbare Identität verleiht. Das Mittel der Wahl war für die Schweizer das Spiel mit dem Maßstab: Das neue Markenzeichen sind die dreieckigen Stirnseiten der zwei überdimensionierten Shed-Oberlichter, die wie ein grafisches Superzeichen wirken.
Lorem Ipsum: Zwischenüberschrift
Bei der Materialwahl und Farbgebung orientierten sich die Architekten am Umfeld: an den traditionellen Backsteinfassaden mit weißen Holzfenstern hier am Südufer der Themse und punktförmigen Hochhäusern der Nachkriegszeit in weiterer Entfernung.


© Iwan Baan
Lorem Ipsum: Zwischenüberschrift
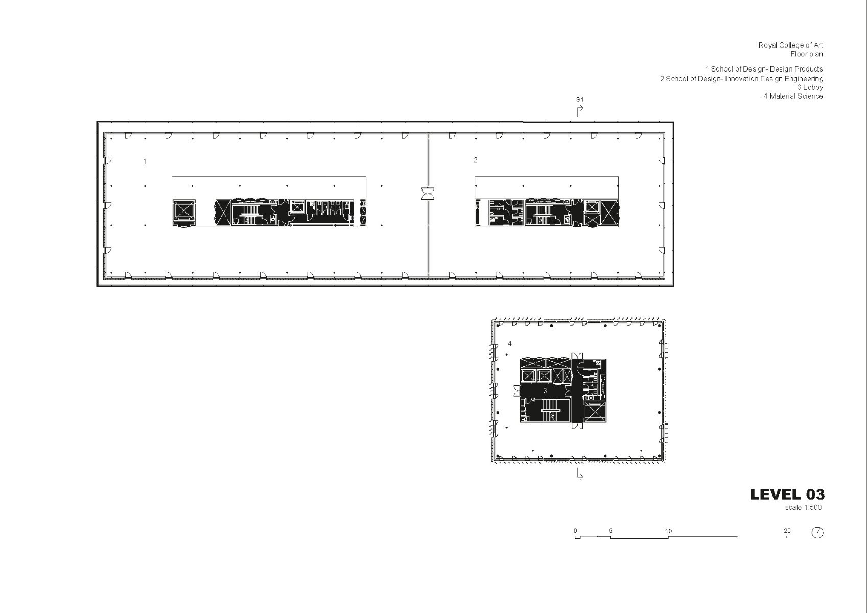
Dementsprechend teilten sie das Raumprogramm in das 97 m lange viergeschossige Studio Building und den 33 m hohen achtgeschossigen Turm des Research und Innovation Buildings, der für die Fernwirkung. auf der Ecke des Blocks sorgen soll. Wie ein L legen sich die zwei Gebäude um eine Zeile aus bestehenden zweigeschossigen Backsteinbauten an einer Ecke des Grundstücks. Dieses Motiv des zweigeschossigen Backsteinbaus haben Herzog & de Meuron in ihrem Sockel übernommen. Auf ihm erheben sich der mit weißen Vertikallamellen verkleidete Turm sowie die Obergeschosse des Studio Buildings, auf dessen Betonplattformen horizontale Backsteinbänder als Geländer der umlaufenden Terrassen aufgemauert sind.


© Iwan Baan


© Iwan Baan
Lorem Ipsum: Zwischenüberschrift
Obwohl der Riegel die gesamte Blockbreite entlang der Howie Street einnimmt, bleibt er im Erdgeschoss latent durchlässig. In der Flucht der alten Querstraße unterteilt eine zweigeschossige Halle mit Galerie den Sockel. Die verglasten Falttore dieses Hangars können bei Veranstaltungen geöffnet werden.


© Iwan Baan
Lorem Ipsum: Zwischenüberschrift
Die Ausstattung umfasst alles, was zukunftsorientierte Hochschulen, die Technik, Kunst und Design zusammenführen wollen, benötigen: Werkstätten im Erdgeschoss, ein Robotics Lab, Visualisierungsräume für Virtual Reality und Seminarräume. Unter den langen Shedoberlichtern befinden sich, wie im ersten und zweiten Obergeschoss des Studio Building, die Studios der Studierenden.


© Iwan Baan
Lorem Ipsum: Zwischenüberschrift
Der Innenausbau gleicht tatsächlich der Einfachheit eines Loft oder einer Fabrik. Das Acht-Meter-Raster der Stahlbetonverbundstützen ist ökonomisch. Auch Innen ist die einzige Farbe weiß: an Wänden, den schlanken Stützen, den Stahlträgern und Trapezblechdecken in den Sheds. Zu den Materialfarben des Backsteins und Sichtbetons kommen die Trennwände aus Holzständern und einfacher Sperrholzbeplankung. Die gesamte Stromversorgung ist flexibel von der Decke abgehängt, Die zylindrischen Beleuchtungskörper mit LED-Tellern sind den industriellen verzinkten Abluftauslässen nachgebildet. Der Neubau erreicht den Nachhaltigkeitsstandard BREEAM Excellent.
Mehr dazu in Detail 7/8.2022 und in unserer Datenbank Detail Inspiration.
Architekten: Herzog & de Meuron, Jacques Herzog, Pierre de Meuron, Asca
Bauherr: Royal College of Art Kensington, Gore, South Kensington, Dr. Paul Thompson
Standort: RCA Battersea South, London (GB)
Projektteam: John O´Mara, Giuseppe Giacoppo, Carmo Montalao, Stuart Hill
Fachplaner: The planning Lab
Tragwerksplanung, Haustechnik, Kostenplanung: Mott McDonald
Inklusionsplanung Barrierefreiheit: David Bonnet Associates



























