Hinter den Kulissen: Neubau des Opernfundus von DFZ Architekten
Foto: Hagen Stier/ Meike Hansen, Archimage
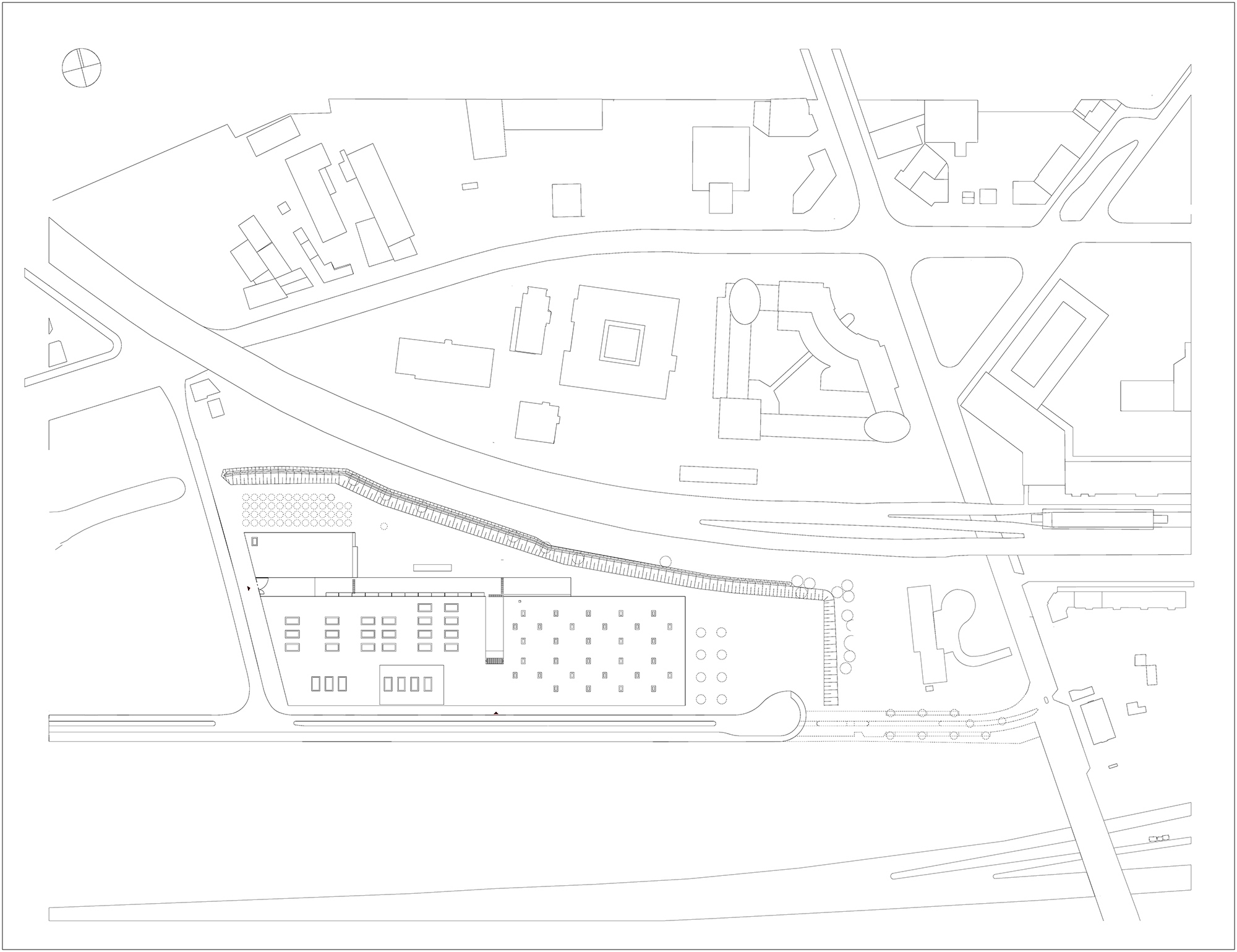
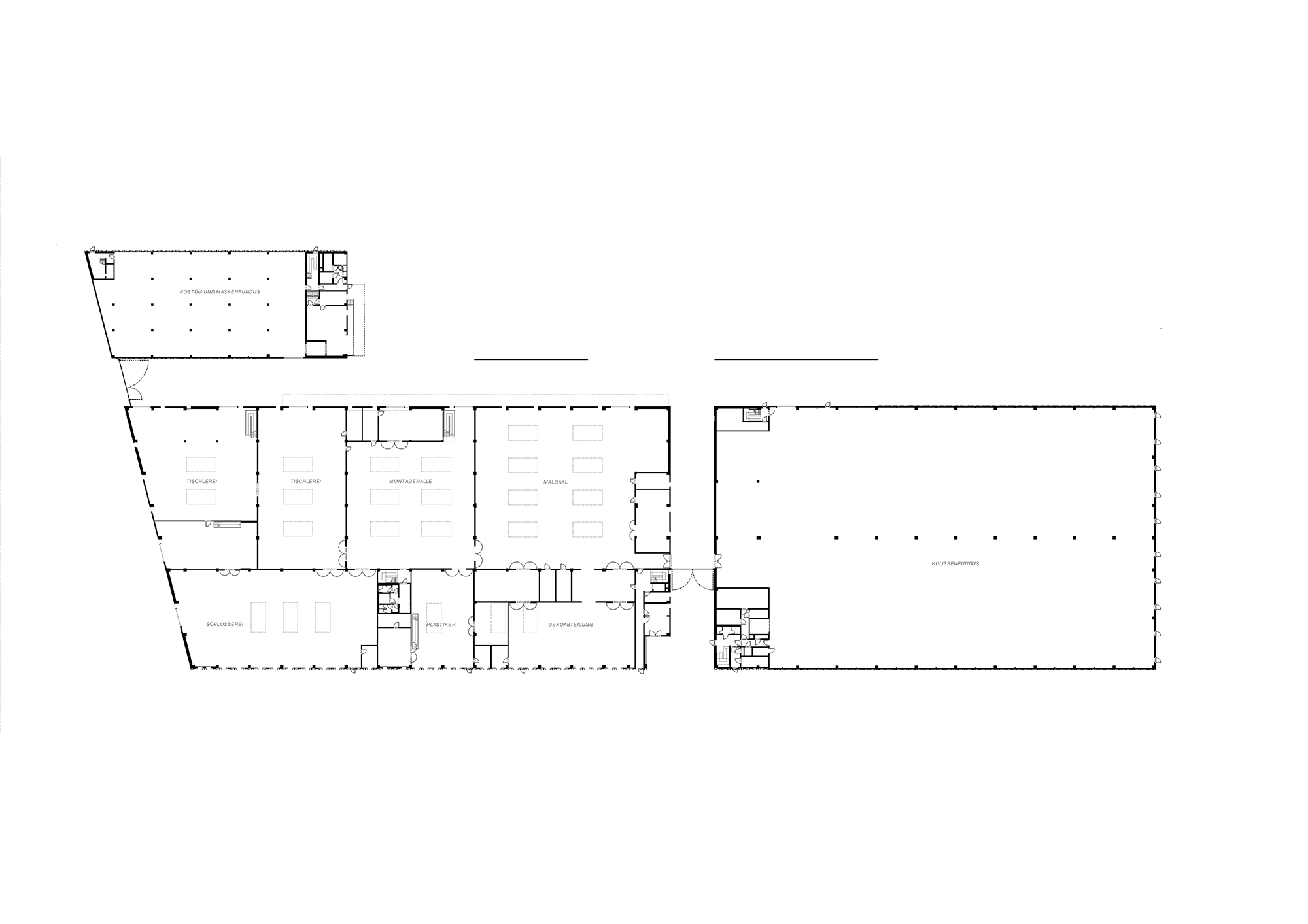
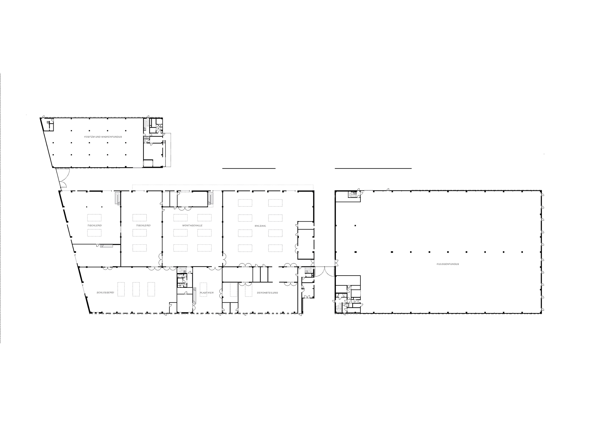
Das dreiteilige Ensemble mit 20.000 m2, das DFZ Architekten für den Fundus der Hamburger Staatsoper entwerfen, überzeugt die Juroren des Wettbewerbs mit seiner klaren, selbstbewussten Linie: kompakte Volumen mit klarer Anordnung der Funktionen in einer schlichten und doch kraftvollen Hülle. Das Grundstück, auf dem der Neubau des Opernfundus steht, wird im Nordosten von einer S-Bahnlinie begrenzt. Mit dieser spannt der Bau einen großzügigen Werkhof auf. Kulissenfundus und Dekorationswerkstätten befinden sich in den beiden südlichen Trakten. Der Kostüm- und Maskenfundus ist in einem eigenständigen, viergeschossigen Volumen untergebracht und zur Bahnlinie hin orientiert.
Während DFZ Architekten die einzelnen Gebäudeteile mittels Zäsuren und Höhenunterschieden voneinander differenzieren, werden diese von einer Metallfassade in Rot-, Braun- und Bronzetönen wieder zusammengefasst. Glatte Metallbleche kleiden die Stirnseiten. Die Nord- und Südansicht dagegen überzieht eine Reihe an schmalen, vertikalen Metallelementen. Diese sind unterschiedlich gekantet und erinnern mit ihren Schatten und Falten an einen Bühnenvorhang. Der Verlauf der Farben, sowie die Struktur der Aluminiumpaneele bilden die unterschiedlichen Funktionsbereiche des Opernfundus nach außen ab. Eine Kombination aus großflächigen Verglasungen, Lochfassade und Oberlichtern öffnen den Bau zum Stadtraum hin und sorgen, je nach Nutzung, für perfekte Belichtung in den Innenräumen.
Ein Einschnitt zwischen Kulissenfundus und Dekorationswerkstätten markiert den Haupteingang des Neubaus der Hamburger Staatsoper aus südlicher Richtung. In geschützter Atmosphäre gibt es hier einen überdachten Raum zum Ankommen, sowie eine Terrasse. Die beiden Trakte sind auch intern eng miteinander verwoben. Dank einer intelligenten Anordnung der Räume kann zur Gänze auf Korridore verzichtet und somit Fläche gespart werden.
















