Behind the scenes: New building for opera equipment storage by DFZ Architects
Foto: Hagen Stier/ Meike Hansen, Archimage
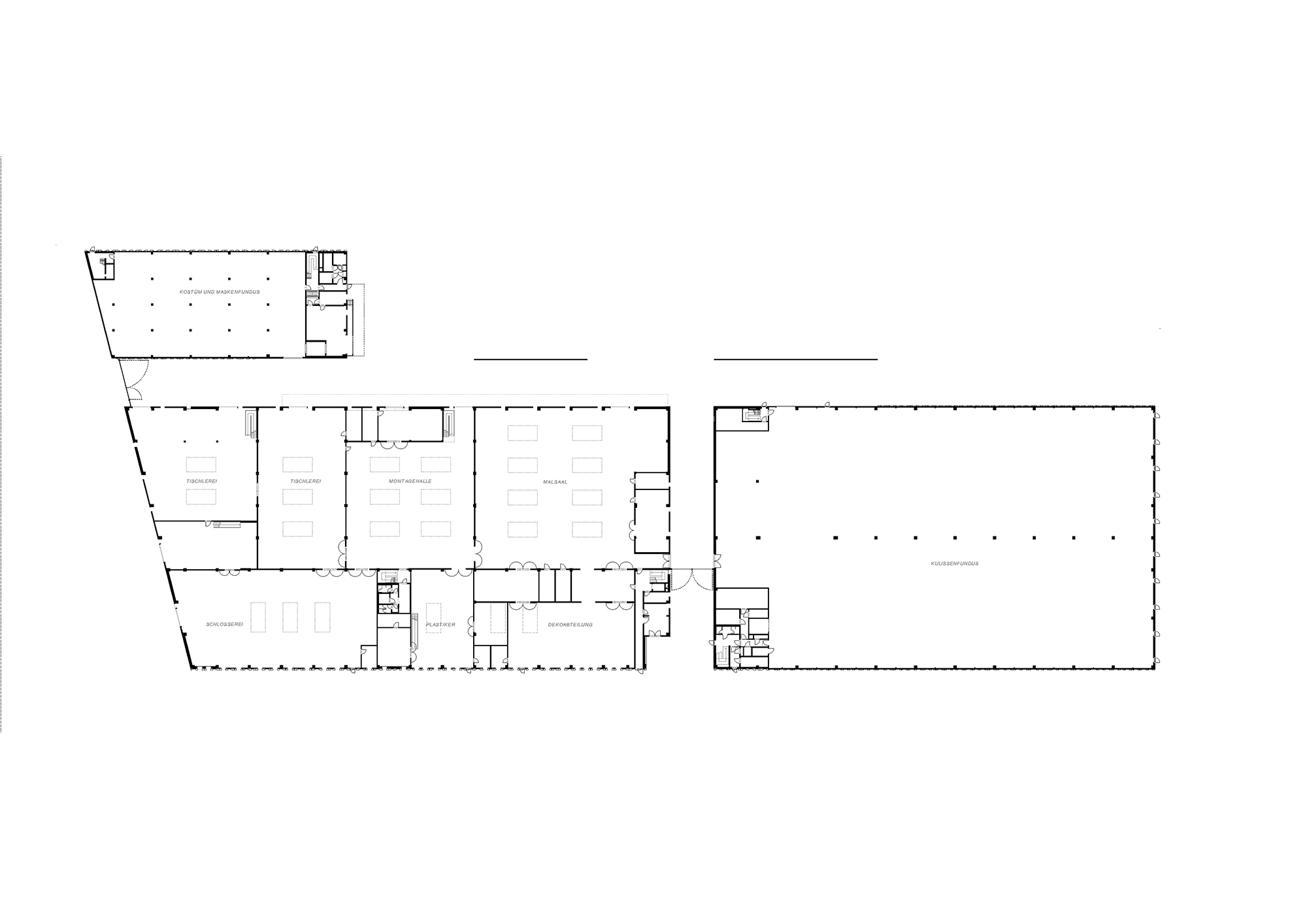
The 20,000-square-metre, three-part ensemble designed by DFZ Architects to house the Hamburg State Opera’s equipment stores won over the jurors of the respective competition with its distinct and self-confident lines, complete with compact volumes in which functions are clearly organised within a simple but striking outer skin. The parcel of land on which the new building stands is delineated to the north-east by a suburban fast train line, and the generously-proportioned equipment depot extends along this border. Props and decoration workshops are contained in the two southern wings, while costumes and theatrical makeup stores are accommodated in a separate, four-storey volume oriented to the railway tracks.
DFZ Architects have used gaps and differences in height to differentiate the individual building sections but have united them by giving them a metal facade in red, brown and bronze hues. Flat sheet metal clads the end faces, while the north and south elevations are covered in a row of narrow vertical metal siding panels, angled in various ways that recall the shadows and folds of a stage curtain. The variations in colour and the structure of the aluminium panels reflect the differing functional areas within the equipment storage complex. A combination of extensive glazing, punctuated facades and skylights open up the building to the urban setting while ensuring perfect daylight illumination, depending on use, of the interior.
A gap between the scenery storage rooms and the decoration workshops marks the main entrance at the south to the Hamburg State Opera’s new building, and provides a sheltered atmosphere thanks to a covered space for arrivals as well as a terrace. The two wings are closely linked inside. Thanks to an intelligent organisation of the rooms it has been possible to completely dispense with corridors, thus saving on space.
















