Luftig-leicht umhüllt
Hochschule bei Paris von Vallet de Martinis Architectes
In der École d'ingénieurs et de l'expertise numérique werden die französischen IT- und Informatikexpertinnen und -experten von morgen ausgebildet. © Charly Broyez
Die 30 000-Einwohner-Gemeinde Pontoise liegt rund 40 km nordwestlich von Paris. Vallet de Martinis Architectes realisierten hier einen kompakten Bildungsbau, dessen Fassaden rundum in weiße Lamellen gehüllt sind. In der ESIEE [it], kurz für École d'ingénieurs et de l'expertise numérique, werden die französischen IT- und Informatikexpertinnen und -experten von morgen ausgebildet.


Die Fassade besteht aus einer leichten Struktur aus vertikalen Metalllamellen. © Charly Broyez
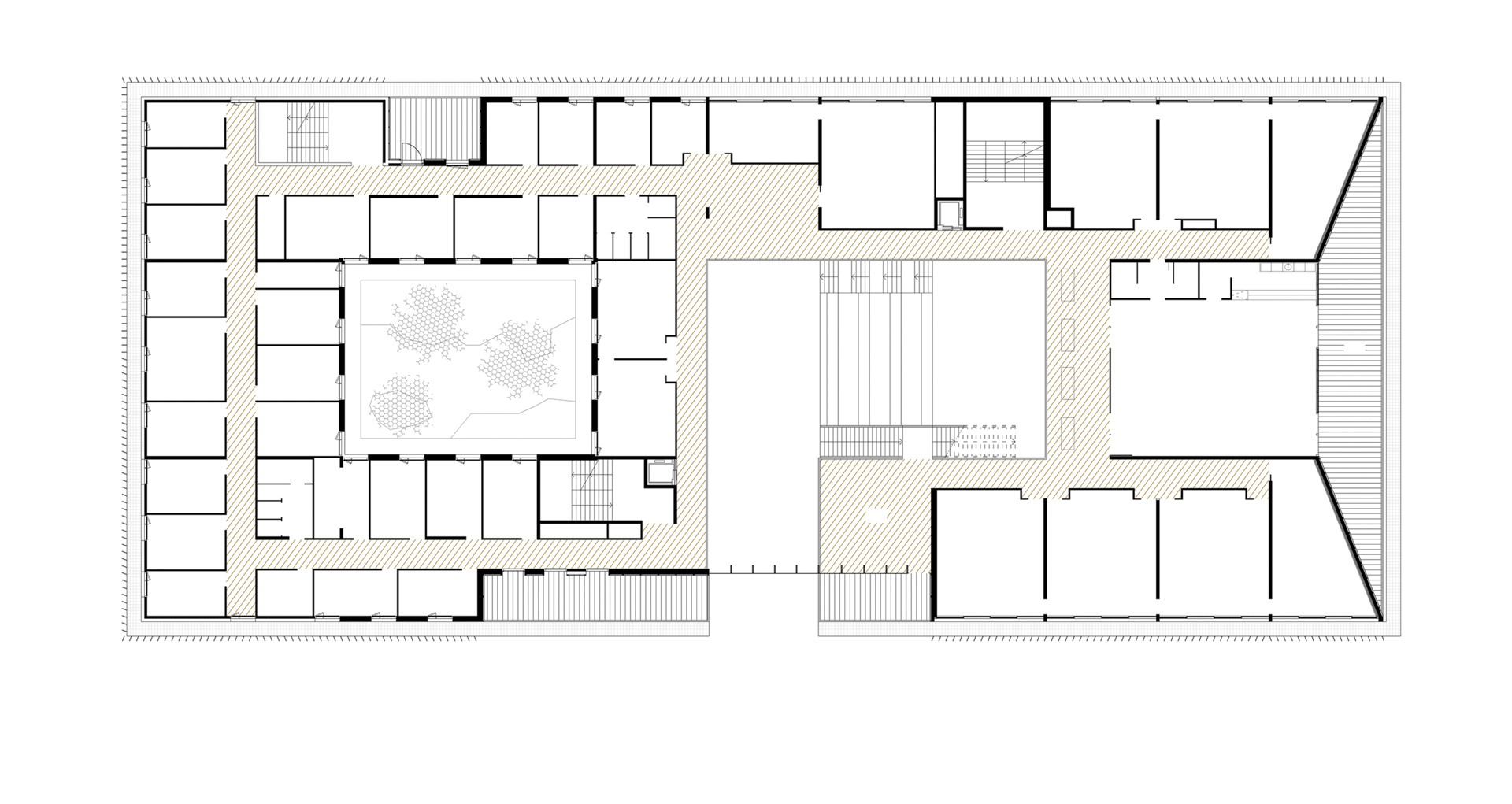
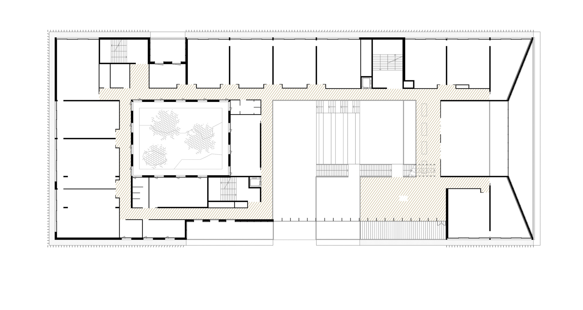
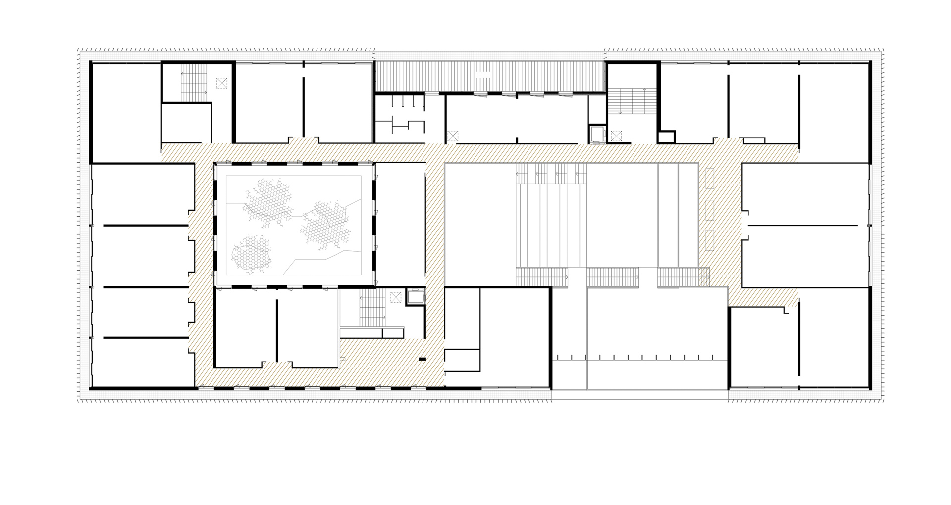
Bei dem Neubau handelt es sich um einen rechteckigen Baukörper, der die natürliche Neigung des Grundstücks nutzt. Während das Volumen in nordwestlicher Richtung leicht auskragt und im Erdgeschoss einen Vorplatz schafft, öffnet es sich an der gegenüberliegenden Seite aufgrund des Gefälles in der unteren Etage zum Garten hin.
Rhythmische Fassaden
Eine leichte Struktur aus vertikalen Metalllamellen bestimmt die Optik des Gebäudes. Sie legen sich wie ein weißer Vorhang vor die Ansichten und dienen als zarter Sichtschutz für die privateren Funktionen im Inneren. An einigen Stellen – dort wo sich die Gemeinschaftsbereiche befinden – werden die rhythmischen Fassaden von Ausnehmungen unterbrochen und machen Platz für großzügige Terrassenflächen. In diesen Bereichen komplettieren Holzverkleidungen und Verglasungen die äußere Hülle.


Ein Hörsaal der Hochschule, © Charly Broyez
Räumliche Gliederung fördert Austausch
Das Eingangsniveau umfasst mehrere Hörsäle und die Verwaltung der Hochschule. Im Gartengeschoss ist das große Auditorium untergebracht. Die Unterrichtsräume verteilen sich auf die übrigen Ebenen der Hochschule. Sämtliche Bereiche sind rund um einen geschützten Innenhof sowie ein zentrales, von oben belichtetes Atrium angeordnet. Letzteres bildet das kommunikative Herzstück des Bildungsbaus und verfügt über Sitzstufen sowie eine Haupttreppe, die alle Stockwerke erschließt.


Das zentrale Atrium bildet das kommunikative Herzstück der Hochschule. © Charly Broyez


Im gesamten Gebäude sind vielfältig nutzbare Zwischenetagen und offene Plattformen vorhanden. © Charly Broyez
Dynamische Grundrissgestaltung
Anstelle von monotonen Regelgeschossen gibt es im gesamten Haus vielfältige Grundrisse mit gestaffelten Zwischenetagen und offenen Plattformen, die sich bis ins Freie fortsetzen. Das dynamische Design soll den Austausch zwischen Studierenden und Lehrenden fördern.
Architektur: Vallet de Martinis architectes
Bauherr: CCI de Paris Ile de France
Standort: Pontoise (FR)












