Medaillenschmiede in Höhenlage
Hochschule Lärchenplatz von Kim Strebel Architekten
Der dreigeschossige Neubau der Hochschule Lärchenplatz vermittelt zwischen dem Straßenniveau und dem höher gelegenen Stadion. © Damien Poffet
Magglingen in der Nähe von Biel ist seit den 1940er-Jahren Sitz des Schweizer Bundesamts für Sport (BASPO) und der eidgenössischen Hochschule für Sport. An den Hängen des Jura finden Spitzensportler hier exzellente Trainingsmöglichkeiten und Studierende ein breites Lehrangebot in den Bereichen Sportphysiologie, Sportpsychologie, Leistungsdiagnostik und Trainingswissenschaft.


Der Neubau der Eidgenössischen Hochschule für Sport in Magglingen bietet auf der Straßenseite ein voll verglastes Erdgeschoss, auf der Bergseite setzt die Holzfassade auf Fußbodenniveau an. © Damien Poffet
Zehnjährige Planungs- und Bauphase
Der Bestandsbau der Hochschule aus den 1960er-Jahren konnte mit den gestiegenen Anforderungen nicht länger mithalten, sodass Kim Strebel Architekten aus Aarau bereits 2014 einen Wettbewerb um einen Ersatzneubau gewannen. 2020 war endlich Baubeginn und im vergangenen Jahr wurde das dreigeschossige, holzverkleidete Gebäude eingeweiht.


Die holzverkleideten Obergeschosse kragen deutlich über das Erdgeschoss hinaus. © Ariel Huber


Im Inneren des Gebäudes verbindet eine breite Freitreppe die beiden Niveaus. © Damien Poffet
Haus am Hang
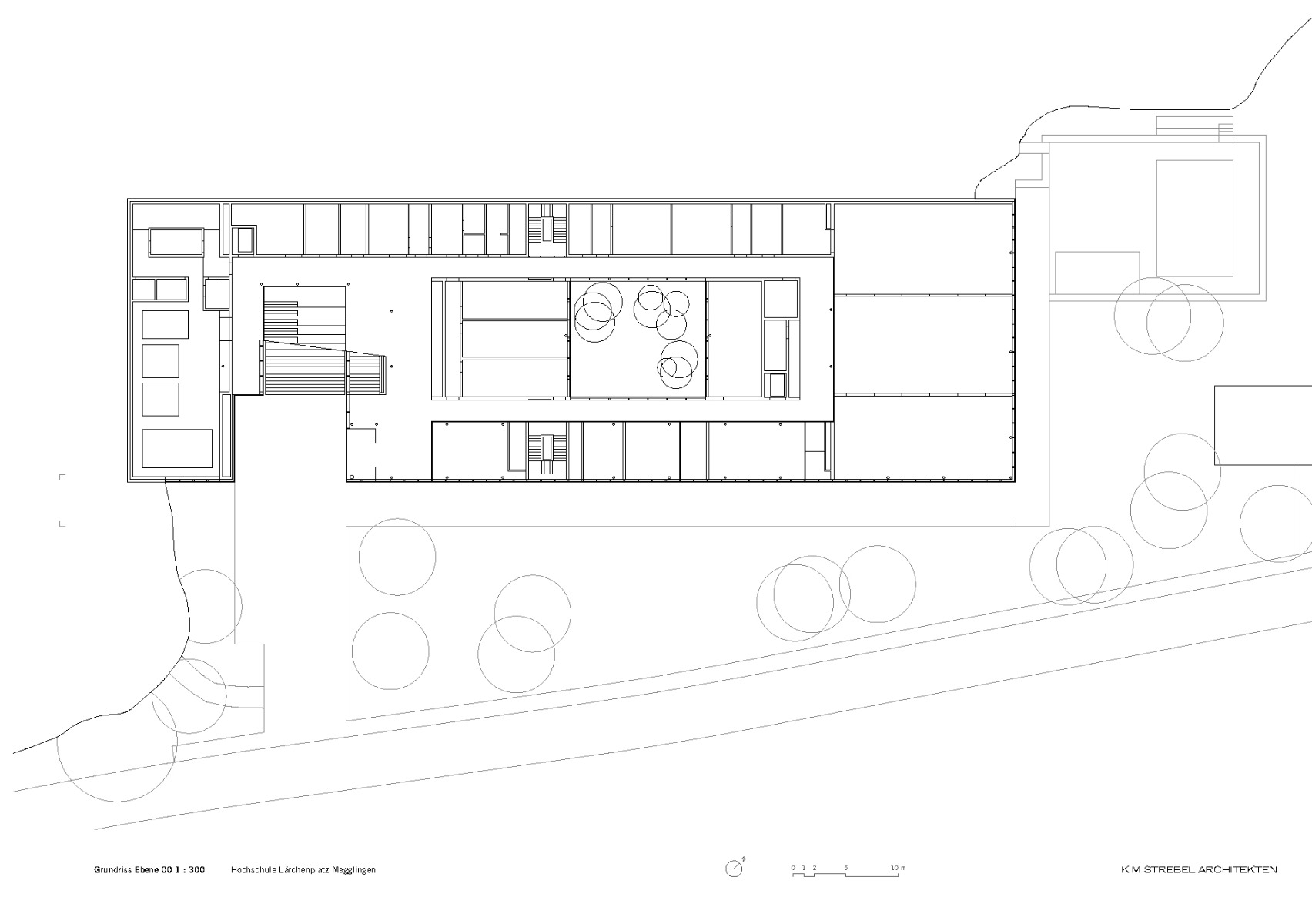
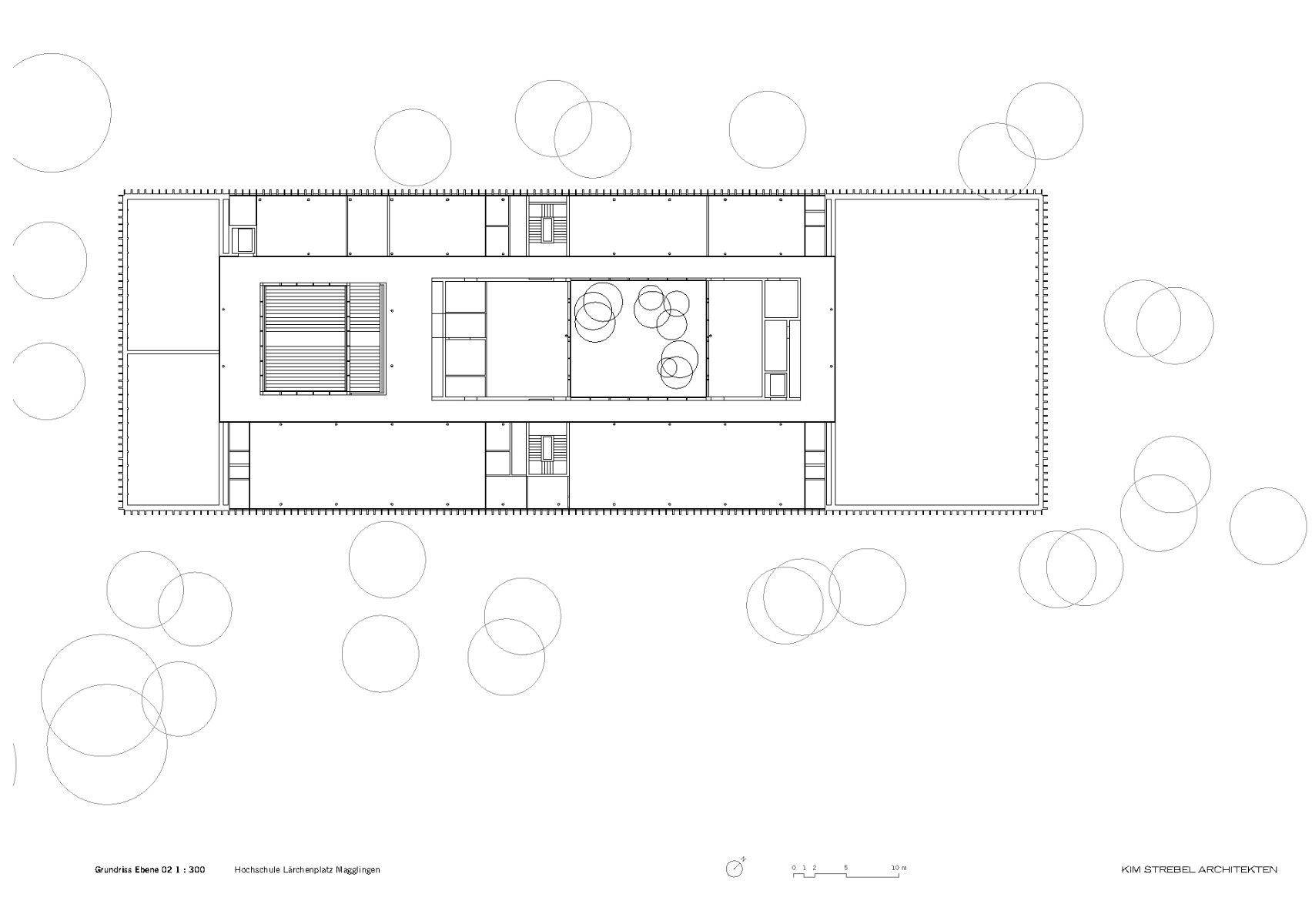
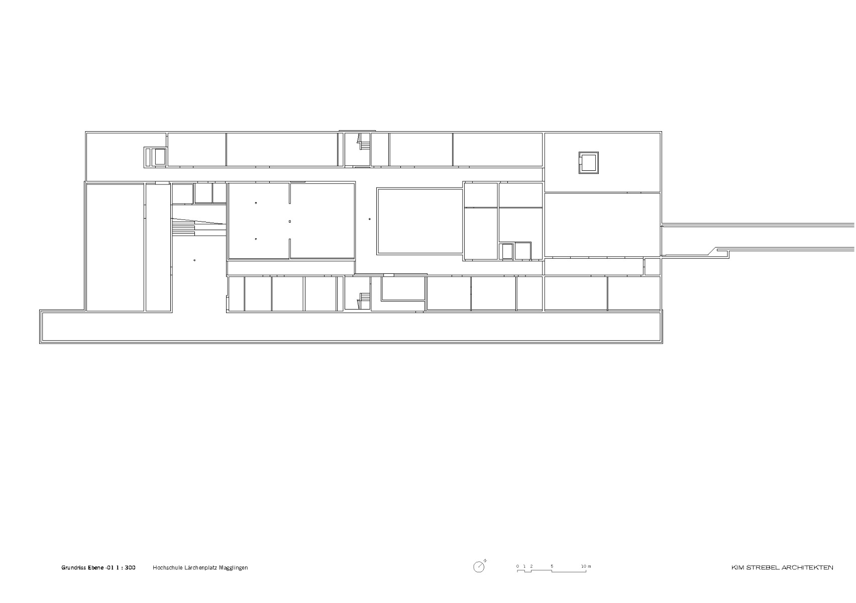
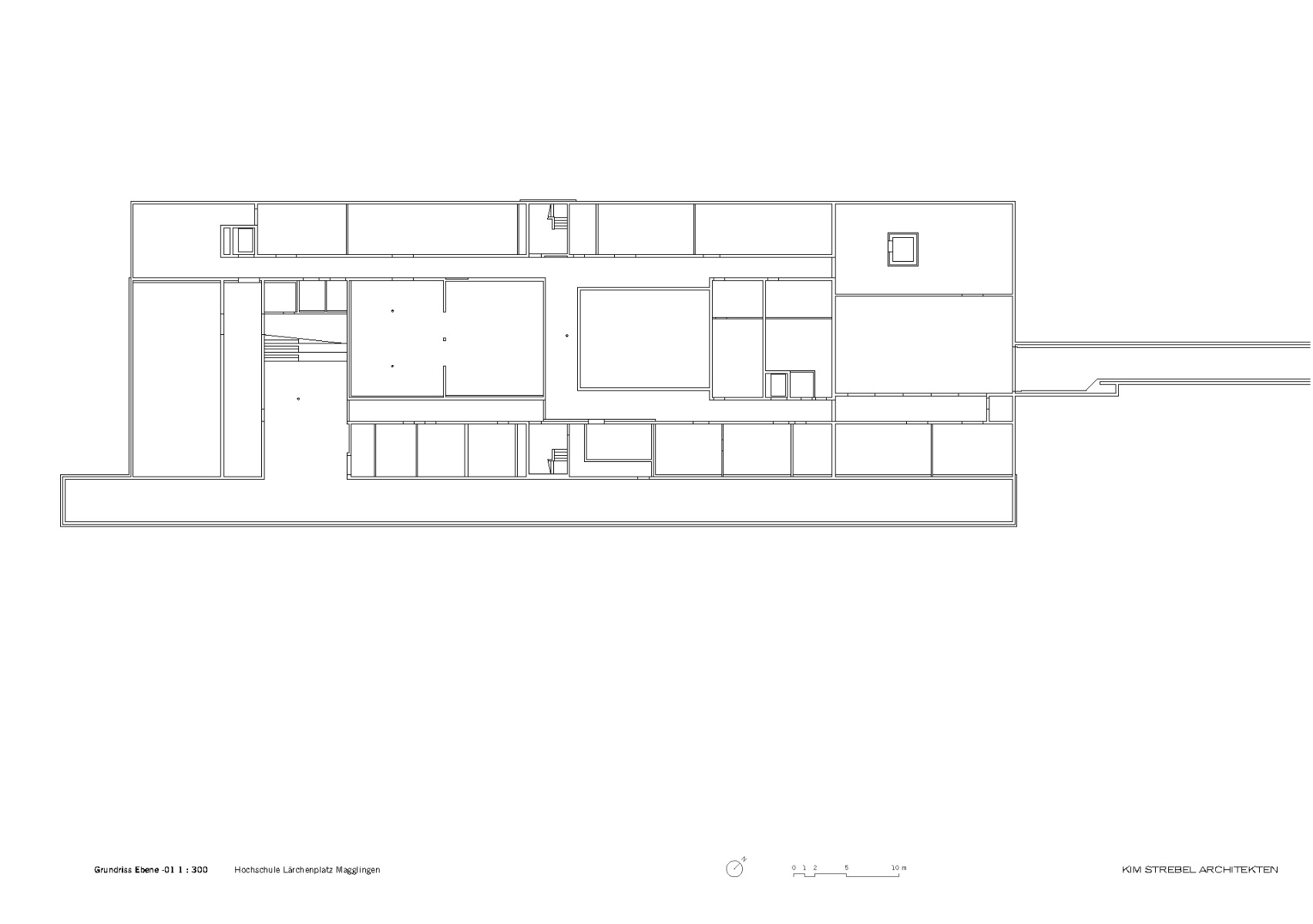
Das dreigeschossige, unterkellerte Gebäude ist überaus klar gegliedert: Über dem voll verglasten Erdgeschoss erheben sich zwei Obergeschosse mit vertikal strukturierter Holzfassade. Zwei Innenhöfe mit umlaufenden Pfosten-Riegel-Fassaden versorgen die innen liegenden Bereiche mit Tageslicht. In einem davon verbindet eine breite Treppenhalle das Straßenniveau mit dem eine Etage höher gelegenen Stadion auf der Gebäuderückseite. Zwei innen liegende Treppenhäuser und zwei Aufzüge führen weiter hinauf ins zweite Obergeschoss.


Die zweigeschossige Sporthalle ist einer der wenigen Räume im Haus mit Holztragwerk. © Ariel Huber
Hybrid aus Massiv- und Holzbau
An den beiden Stirnenden des Gebäudes sind die zweigeschossigen Trainingsräume und eine Sporthalle untergebracht. Sie sind die einzigen Bestandteile des Neubaus mit Holztragwerk – der große, zentrale Rest des Hauses ist ein Massivbau mit Fassade und Flurtrennwänden aus Holz. Im Erdgeschoss befinden sich die Bereiche Sportphysiotherapie und Sportmedizin mit ihren Laboren und Behandlungsräumen. Im ersten Obergeschoss, mit direktem Zugang zu den Trainingsräumen, ist die Leistungsdiagnose untergebracht und im obersten Geschoss hat die Hochschule ihre Büros. Das Untergeschoss verteilt sich auf Lager- und Technikräume sowie eine 90 m lange Laufbahn mit angegliedertem, flexibel nutzbarem Auditorium.
Architektur: Kim Strebel Architekten
Bauherr: Bundesamt für Sport und Logistik BBL
Standort: Alpenstrasse, 2532 Magglingen (CH)
Tragwerksplanung: HKP Bauingenieure
Landschaftsarchitektur: Tremp Landschaftsarchitekten
TGA-Planung: Ingenieurbüro IEM
Fassadenplanung: Sutter + Weidner Fassadenplanung





















