Medal makers at high altitude
Lärchenplatz University by Kim Strebel Architects
The new three-storey building on Lärchenplatz mediates between street level and the higher-lying stadium. © Damien Poffet
Magglingen has been home to the Swiss Federal Office of Sport (BASPO) and the Swiss Federal Institute of Sport since the 1940s. Set on the slopes of the Jura mountains, it offers top athletes excellent training facilities and students a wide range of courses in sports physiology, sports psychology, performance diagnostics and training science.


The Swiss Federal Institute of Sport's new building in Magglingen has a fully glazed ground floor on the street side, while the wooden facade on the mountain side starts at floor level. © Damien Poffet
Ten-year planning and construction phase
The existing 1960s university building could no longer meet the increased requirements, so Kim Strebel Architects from Aarau won a competition to design a replacement building in 2014. Construction finally began in 2020, and the three-storey, wood-clad building was inaugurated last year.


The wood-clad upper floors extend significantly beyond the ground floor. © Ariel Huber


Inside the building, a wide, open staircase connects the two levels. © Damien Poffet
House on a slope
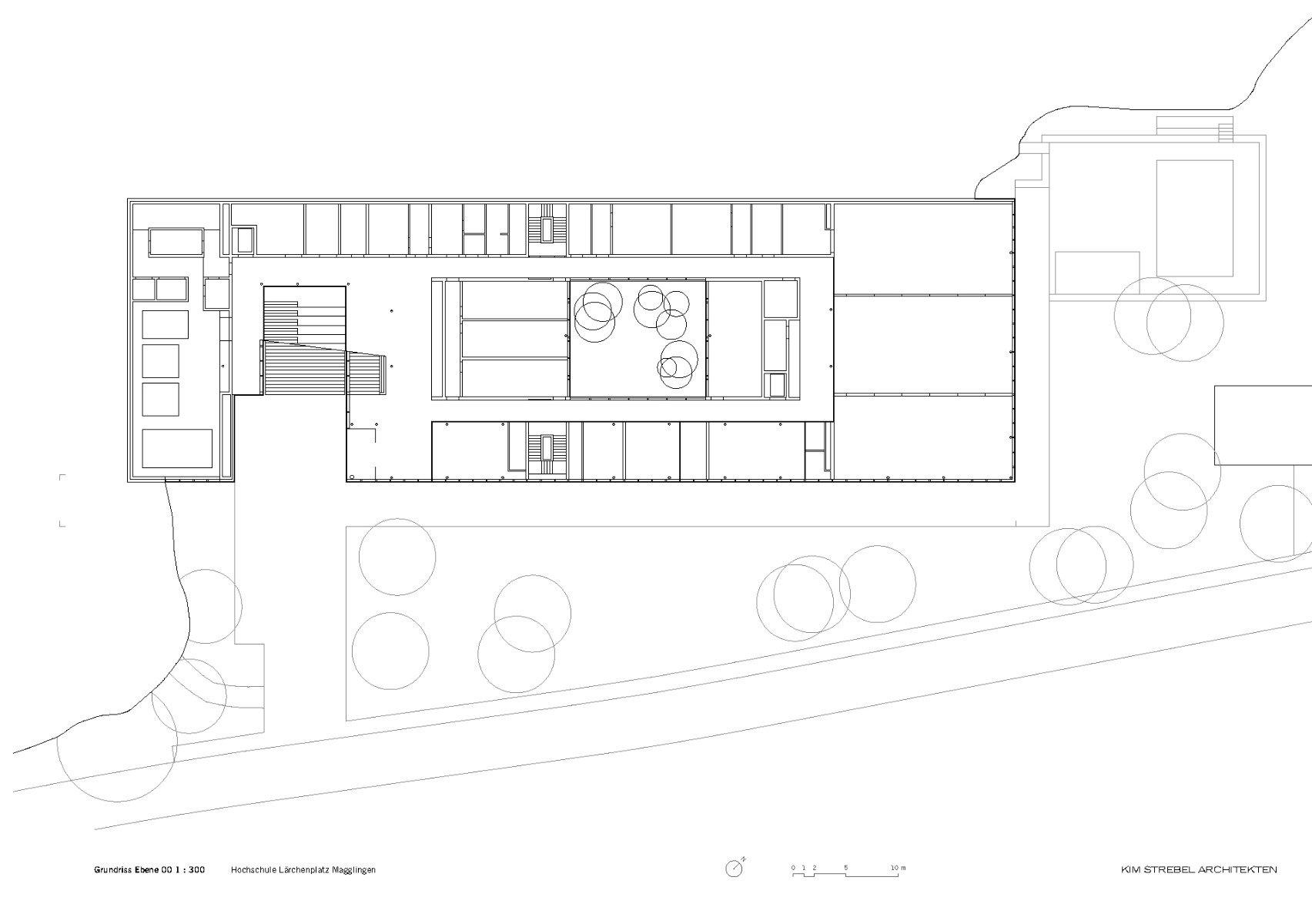
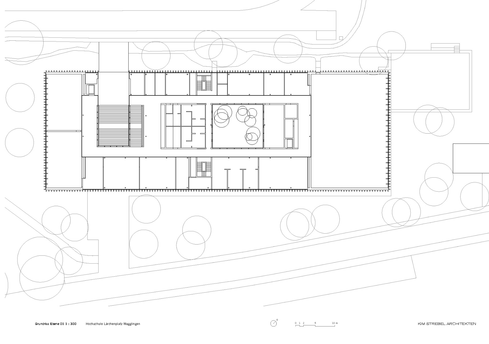
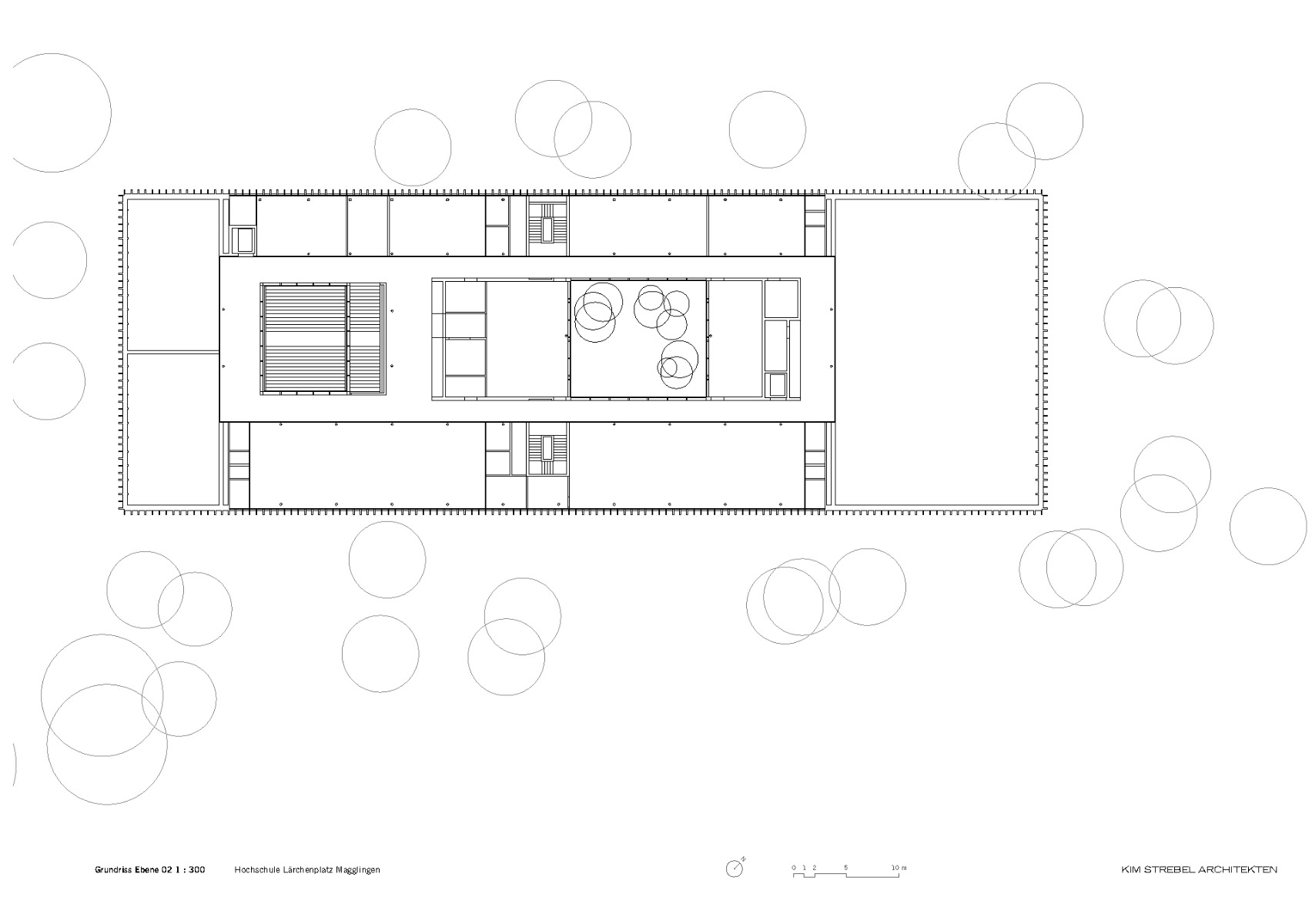
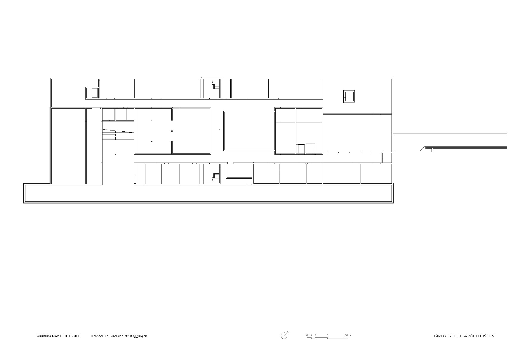
The three-storey building with a basement has a very clear layout: above the fully glazed ground floor are two upper floors with a vertically structured wooden facade. Two inner courtyards surrounded by post-and-beam facades provide daylight to the interior areas. In one of these courtyards, a wide staircase connects the street level with the stadium, which is located one floor higher at the rear of the building. Two internal staircases and two lifts lead up to the second floor.


The two-storey sports hall is one of the few rooms in the building with a wooden structure. © Ariel Huber
Hybrid of solid and timber construction
The two-storey training rooms and sports hall are located at opposite ends of the building. These are the only parts of the new building with a timber structure; the large central section is a solid construction, although the facade and corridor partitions are made of wood. The ground floor houses the sports physiotherapy and sports medicine departments, complete with laboratories and treatment rooms. The performance diagnostics department is located on the first floor with direct access to the training rooms. The university's offices are on the top floor. The basement is divided into storage rooms, technical rooms, and a 90-m running track with an adjoining flexible-use auditorium.
Architecture: Kim Strebel Architekten
Client: Bundesamt für Sport und Logistik BBL
Location: Alpenstrasse, 2532 Magglingen (CH)
Structural engineering: HKP Bauingenieure
Landscape architecture: Tremp Landschaftsarchitekten
Building services engineering: Ingenieurbüro IEM
Facade planning: Sutter + Weidner Fassadenplanung





















