Holz im Großeinsatz: Finansparken in Stavanger von Helen & Hard und SAAHA
Foto: Sindre Ellingsen
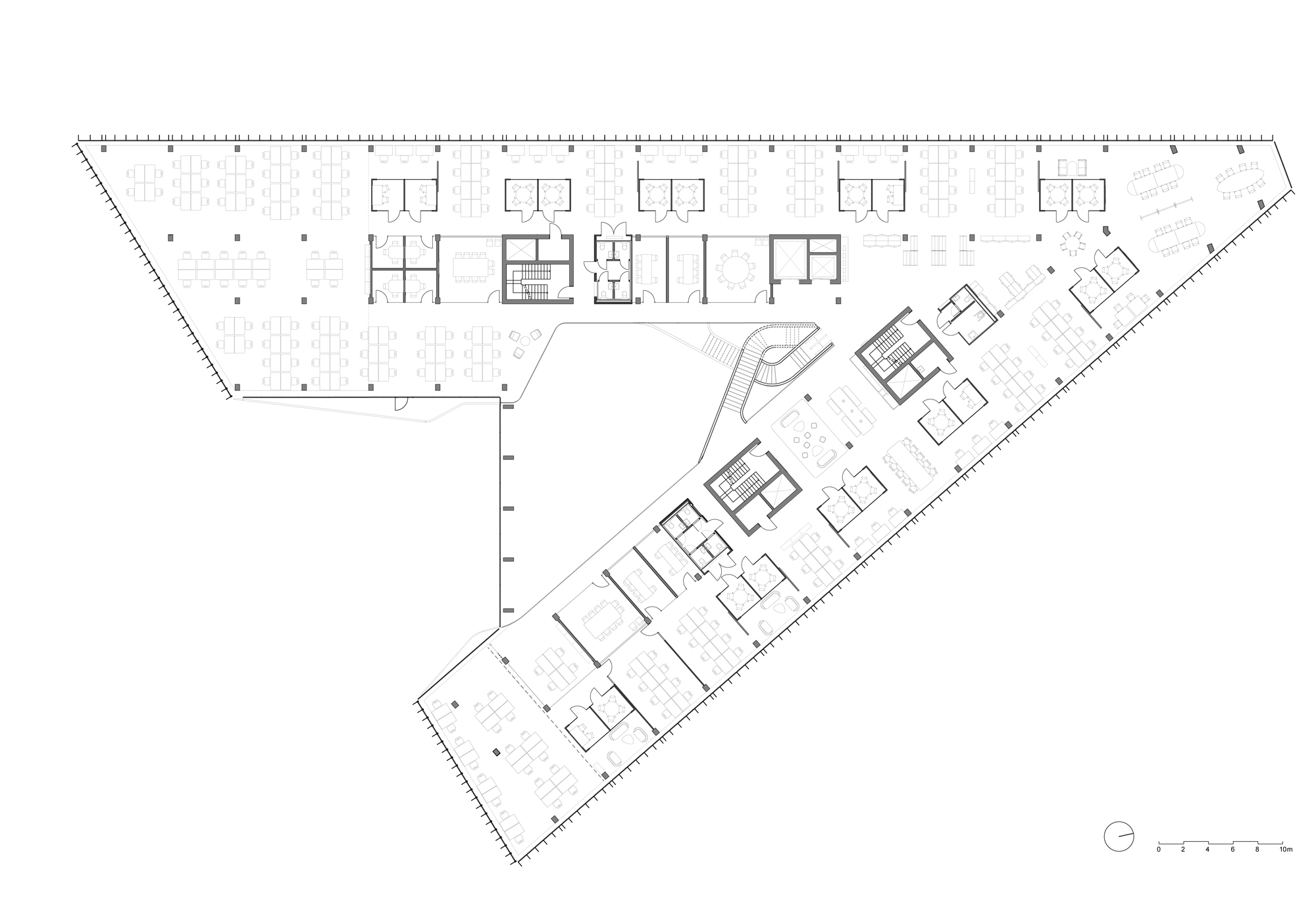
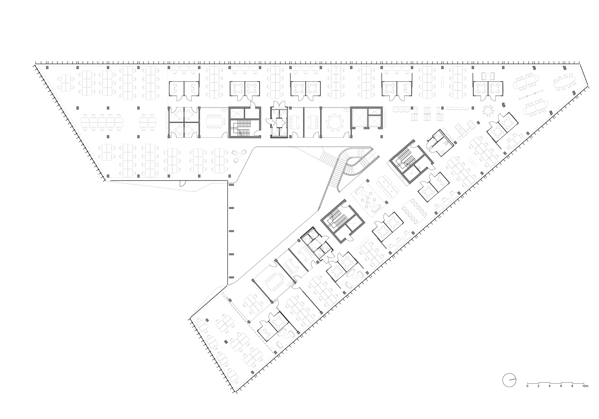
Der unweit nordwestlich des Stadtzentrums gelegene »Finanspark« in Stavanger ist der neue Hauptsitz der regionalen SR-Bank. Mit seinen 13.200 m2 überirdischer Bruttofläche zählt er zu den derzeit flächenmäßig größten, mehrgeschossigen Holzbauten in Europa. Bis zu sieben Geschosse hoch ragt das Gebäude mit seiner markanten Dreiecksform empor und vermittelt dabei zwischen drei sehr unterschiedlichen Nachbarschaften: Auf der Eingangsseite im Süden schließt sich kleinteilige Einfamilienhausbebauung an, im Osten mehrgeschossige Wohnblocks und im Norden der Grünbereich des Bjergsted-Parks. Gegenüber dem Parkeingang, wo zwei Straßen in spitzem Winkel zusammenlaufen, erreicht der Bürobau seine maximale Höhe, im Süden hat er nur vier Geschosse. An der Ostseite kragen die Obergeschosse über ihren Unterbau aus und schützen so unter anderem die Wartenden an einer Bushaltestelle vor Regen. Vertikale Glasschwerter mit Punktbedruckung rhythmisieren die beiden Längsfassaden und schützen die dahinter liegenden Büros vor Sonne.
Mit Schweizer Holzbau-Expertise geplant
Zwischen dem West- und Ostflügel des Hauses reicht ein großzügiges, glasüberdecktes Atrium über die gesamte Gebäudehülle. Blickfang ist hier eine schwungvolle Treppenanlage mit abwechslungsreicher Wegeführung. Ihre organisch geformten Läufe werden von Wangen aus gekrümmten Brettschichtholzträgern getragen und kragen bis zu 5 m in den Luftraum des Atriums aus. Auch der Rest der Obergeschosse besteht weitgehend aus Holz, wobei sich die Architekten hierfür der Expertise des Schweizer Holzbauingenieurs Herann Blumer, seines Büros Creation Holz und der norwegischen Ingenieure von Degree of Freedom bedienten. Eindeutig Blumers Handschrift tragen die Träger und Stützen, die mittels einer Zangenkonstruktion und Buchenholz-Runddübeln miteinander verbunden sind. An den Auflagerpunkten erreichen die Querträger ihre maximale Höhe; in den Feldmitten sind sie organisch aufgevoutet. Vier Stahlbetonkerne, an den Fassaden umlaufende Randbalken aus Buchen-Furnierschichtholz und die Geschossdecken aus Brettsperrholz steifen die Tragkonstruktion aus. Wegen der Auskragung über dem Erdgeschoss bestehen die Stützen und Deckenträger hier aus Buchen-Brettschichtholz, in den übrigen Geschossen griffen die Tragwerksplaner zu etwas weniger tragfähigem Fichtenleimholz.
Breeam Outstanding
Der Holzbau ist einer der Bausteine einer Nachhaltigkeitsstrategie, dank derer Bauherr und Architekten auf eine Zertifizierung mit dem Label Breeam Outstanding hoffen. Dazu tragen auch eine energieeffiziente Gebäudehülle und die Beheizung mit Wärmepumpen und 24 Erdwärmesonden bei. Außerdem wird die Abwärme der Serverräume in das Heizsystem eingespeist. Finansparken wurde nach BREEAM mit dem Prädikat "excellent" zertifiziert.
Podcast-Interview mit Reinhard Kropf von Helen & Hard.














