Holz und Preis: Wohnhaus in St. Peter in der Au
Foto: Violetta Wakolbinger
Das Grundstück in der niederösterreichischen Marktgemeinde St. Peter in der Au ist mehr als großzügig. Wo sich früher der Pfarrhof inmitten einer Siedlung befand, steht nun das Einfamilienhaus. Die Erschließung des Bauplatzes erfolgt von der nördlichen Straße. Mit Rücksicht auf topografische, solare und formale Rahmenbedingungen sowie seine Bewohner positionieren die Architekten von Bogenfeld Architektur das Wohnhaus zentral und freistehend.
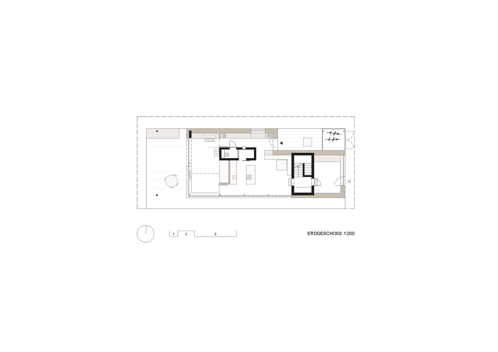
Das Haus selbst ist ein unaufgeregter, rechteckiger Baukörper auf einer Betonbodenplatte. Bei Außenmaßen von ca. 16 x 7 m sind seine Längsfassaden nach Nord und Süd ausgerichtet. Sein Aussehen prägt ein stark geneigtes Giebeldach, hinter dem sich das obere Stockwerk verbirgt und das sich mit mehreren Gauben nach draußen öffnet. Es zieht sich bis knapp über das Erdgeschoss herunter und überspannt nicht nur die Wohnfläche selbst, sondern kragt außerdem in westlicher Richtung weit aus, wodurch eine geschützte Terrasse entsteht. In dunklen Ziegeln gedeckt ergänzt das Dach die schwarzen Ansichten, die in vertikalen Holzpaneele gekleidet sind und lediglich im Süden und Westen von großflächigen Verglasungen unterbrochen werden. Die Fensterrahmen, der Terrassenbelag sowie eine kleine rechteckige Aussparung an der Nordfassade, die den Eingang markiert, sind in hellem Fichtenholz ausgeführt und bilden kleine farbliche Akzente.
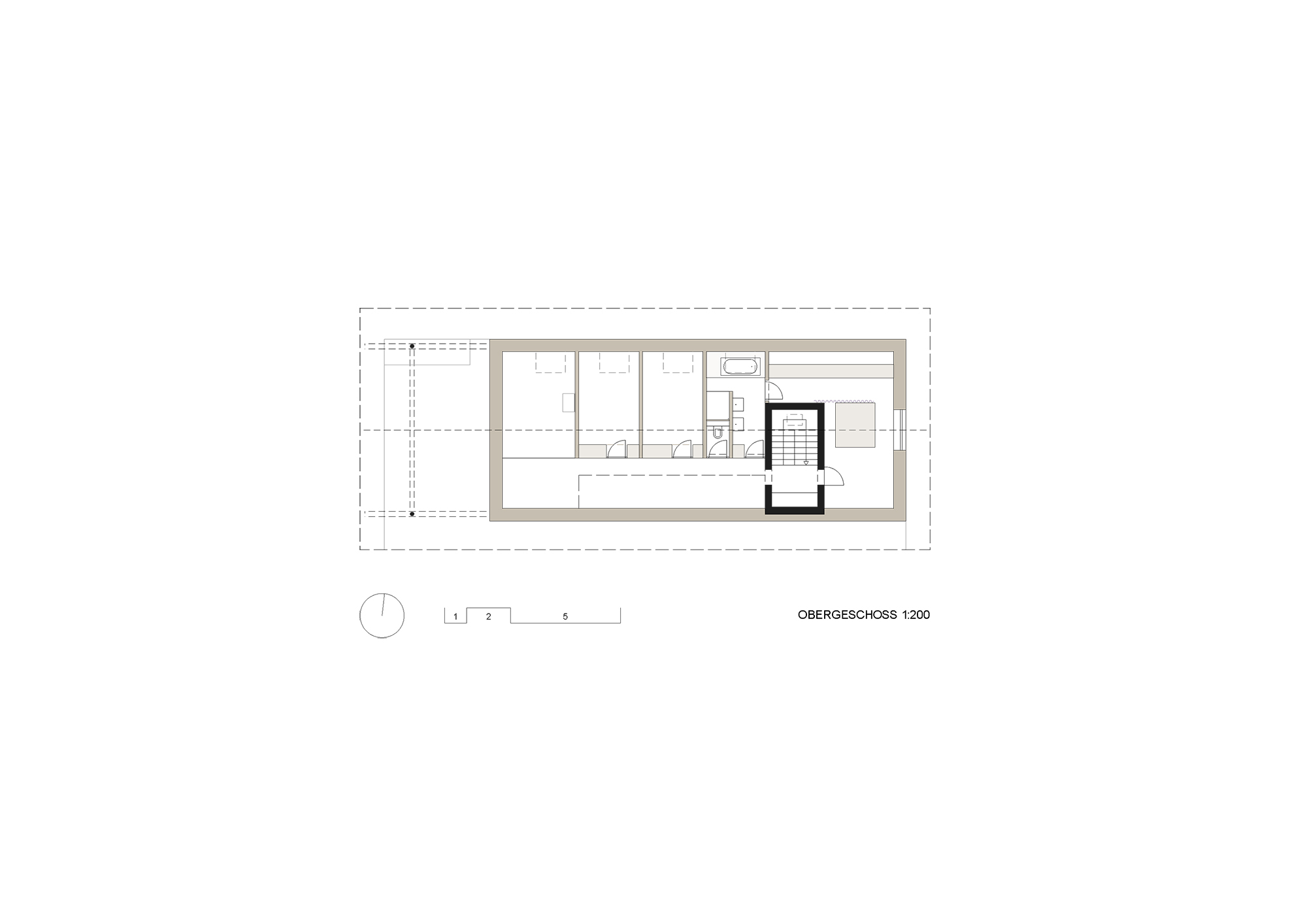
Während im unteren Teil des Einfamilienhauses Wohnen, Kochen und Essen stattfinden, befinden sich die Schlafzimmer im Geschoss unter dem Dach. Sie schließen an einen gemeinsamen Gang an. Dieser mündet in eine offene Galerie, die den an die Terrasse grenzenden Wohnraum überblickt.
Die Innenräume bestimmt ein minimales Designkonzept. Holz dominiert auch hier und findet Verwendung in Böden, Decken- und Wandflächen sowie Einbauten. Ergänzt wird es durch helle Sichtbetonoberflächen, die in zwei Kernen Sanitärbereich und Treppe in sich aufnehmen und die einzige materialtechnische Ausnahme bilden.


















