Wood and a Prize: House in St. Peter in der Au
Foto: Violetta Wakolbinger
The parcel of land, located in the Lower Austrian market town of St. Peter in der Au, is more than generous. The single-family home now stands on the former spot of a community clergy house. The lot is accessed from the road to the north. With consideration for the topographical, solar and formal framework conditions, as well as the requirements set by the inhabitants of the house, the architects from Bogenfeld have positioned the structure as a detached house at the centre of the parcel.
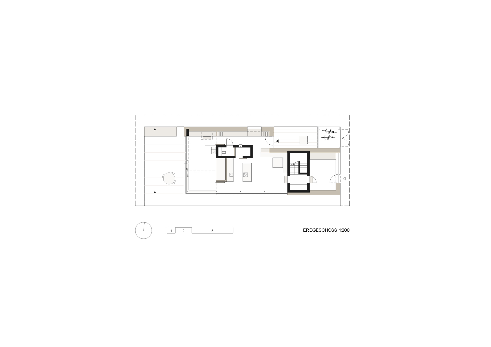
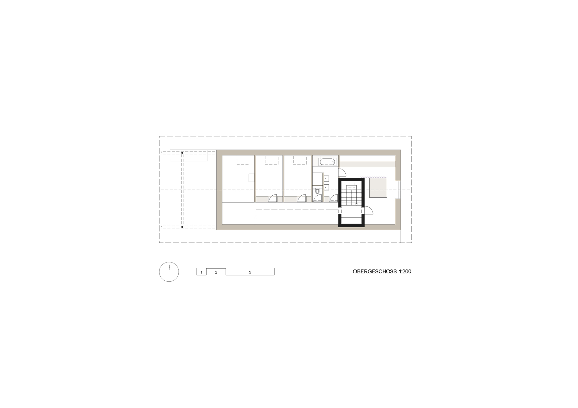
The house itself is a modest, rectangular structure set on a concrete floor slab. With exterior dimensions of approx. 16 x 7 m, its longitudinal façades face north and south. Its appearance is characterized by a steeply pitched roof that conceals the upper storey and opens up with several dormers. The roof extends to just above the ground floor; it spans the living area and juts dramatically to the west to create a covered terrace. Covered in dark tiles, the roof complements the black faces of the house, which are clad with vertical wooden panels interrupted by extensive glazing only to the south and west. The window frames, terrace floor and a small rectangular recess that forms the entrance on the north façade have all been done in blond pine that sets small colour accents.
While the lower portion of the single-family home is devoted to living, cooking and dining, the bedrooms are on the storey directly beneath the roof. They adjoin a shared corridor that gives onto an open gallery that overlooks the living space next to the terrace.
The interior features a minimalist design concept. Wood dominates here as well; it has been used for the flooring, ceiling, walls and built-ins. The concept is rounded off with surfaces of light-coloured exposed concrete that accommodate the sanitary area and stairway in two cores. These cores represent the house’s only exceptions to the material palette.


















