Prägnantes Leimholzskelett
Holzhaus bei Den Haag von Derksen Windt Architecten
© René de Wit
Lorem Ipsum: Zwischenüberschrift
Das Wohnhaus von Derksen Windt im Den Haager Küstenvorort Monster zeigt, wie es konstruiert ist: mit einem tragenden Skelett aus Brettschichtholz. Eigentlich hätte es an dieser Stelle gar nicht gebaut werden dürfen. Denn das Grundstück – wenige hundert Meter vom Nordseestrand entfernt und etwa 10 km südwestlich des Stadtzentrums von Den Haag – war als landwirtschaftliche Fläche ausgewiesen.


© René de Wit
Lorem Ipsum: Zwischenüberschrift
Doch den Architekten und ihrem Bauherrn gelang es, die örtlichen Behörden zu einer Umwidmung in Bauland zu bewegen, da in der Nachbarschaft bereits andere Wohnhäuser stehen. Deren Höhe – maximal 2 Geschosse – sollte der Neubau denn auch nicht überschreiten; ansonsten waren die Architekten in der Gestaltung relativ frei.
Lorem Ipsum: Zwischenüberschrift
Sie entwarfen das Haus als Holzskelettbau, dessen Tragstruktur aus 300 mm tiefen Lärchen-Brettschichtholzpfosten die Fassaden unverkennbar prägt. Die gleichfalls mit Lärchenholz verschalten Wandelemente dazwischen sind deutlich zurückgesetzt und durften daher nur eine minimale Wandstärke erhalten. Daher entschieden sich die Architekten hier für eine Wärmedämmung aus Phenolharzschaum, die es auf einen Lambda-Wert von 0,018 W/mK bringt.


© René de Wit
Lorem Ipsum: Zwischenüberschrift
Die Fassadenelemente wurden teilweise vorgefertigt; Dämmung und Außenverkleidung aber erst vor Ort installiert. Innen sind die Wände größtenteils mit Gipskarton verkleidet. Auf den Böden liegen Steinplatten und Holzparkett, die weiß lasierten Brettsperrholzdecken blieben unverkleidet.


© René de Wit


© René de Wit
Lorem Ipsum: Zwischenüberschrift
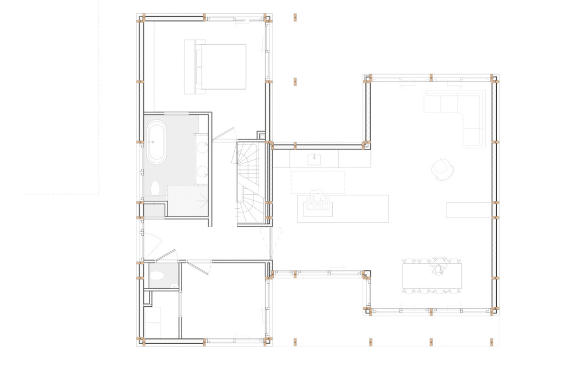
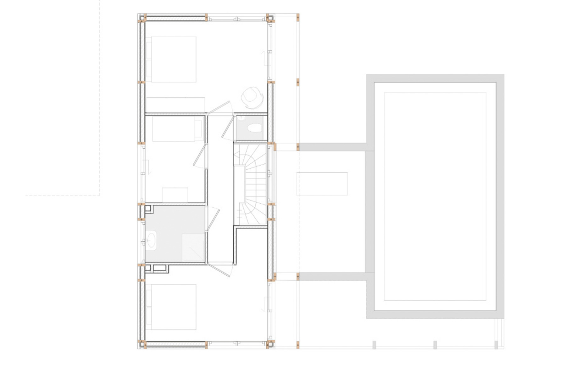
Insgesamt vier Personen leben in dem Haus, wobei Schlafzimmer und Bäder in dem zweigeschossigen Trakt und der offene Wohn- und Essbereich in dem eingeschossigen Gebäudeteil untergebracht sind. Beide Flachdächer sind begrünt. Das obere trägt außerdem eine Photovoltaikanlage. Sie versorgt die Wärmepumpenheizung mit Strom und macht das Haus nach Aussage der Architekten zum Nullenergiegebäude.
Architektur: Derksen Windt Architecten
Bauherr: privat
Standort: Plaats Langeveld, Monster (NL)
Tragwerksplanung: Pieters Bouwtechniek
Bauunternehmen: Ernst Abbas

























