Massivholz über Mauerwerk
Hotel La Briosa in Bozen
Beim Hotel La Briosa im Stadtzentrum von Bozen ruht die Erweiterung in Massivholzbauweise auf einem historischen Mauerwerksbau. © Holzius/Barbara Corsico
Von außen prägen das Hotel La Briosa in Bozen eine verputzte Fassade und vorgefertigte Rundbogenlaibungen aus Beton. Dahinter sitzen fast überall tragende Holzbauteile. Die Planungen für den weitreichenden Umbau samt Erweiterung in der zentral gelegenen Kapuzinergasse stammen von den Architekten Felix Perasso und Daniel Tolpeit. Die einladende Atmosphäre ist das Ergebnis einer umfassend definierten "Hotelchoreografie" des Markenentwicklers Tiftla. In enger Zusammenarbeit mit der Bauherrenfamilie erarbeiteten Armin Strickner und Thomas Börgel einen Markencode, der als Richtschnur für das architektonische Konzept diente.


Ins Stadtbild fügt sich der Bau trotz seiner sechs Geschosse harmonisch ein. © Holzius/Barbara Corsico
Harmonisches Miteinander
Die verputzte äußere Hülle mit ihren Rundbogenfenstern fügt sich in das Erscheinungsbild der Nachbarschaft und nimmt Bezug auf nahegelegene historische Bauwerke, etwa die geschwungene Umfassungsmauer des Kapuzinerparks und bogenförmige Toröffnungen. Zeitgenössisch muten indes der Farbverlauf der Hülle sowie die unregelmäßige Anordnung der Fenster an.
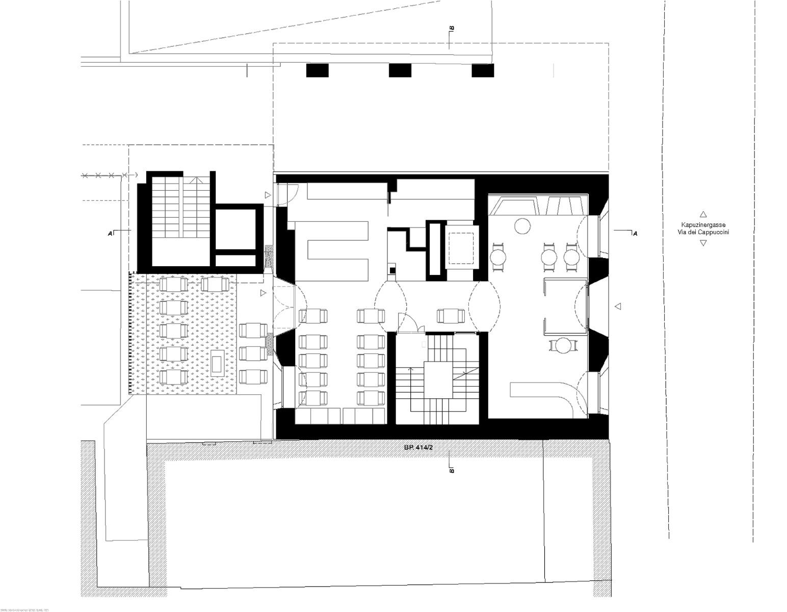
Das Gebäude mit seinen ehemals vier Stockwerken wurde zur Hälfte abgetragen und anschließend in Holzbauweise zu einem Sechsgeschosser erweitert. Ab dem ersten Obergeschoss sitzt die Konstruktion einerseits auf der mehr als 100 Jahre alten gemauerten Bausubstanz, andererseits auf einer neuen aufgeständerten Plattform aus Beton auf, die eine Hofeinfahrt überdacht.


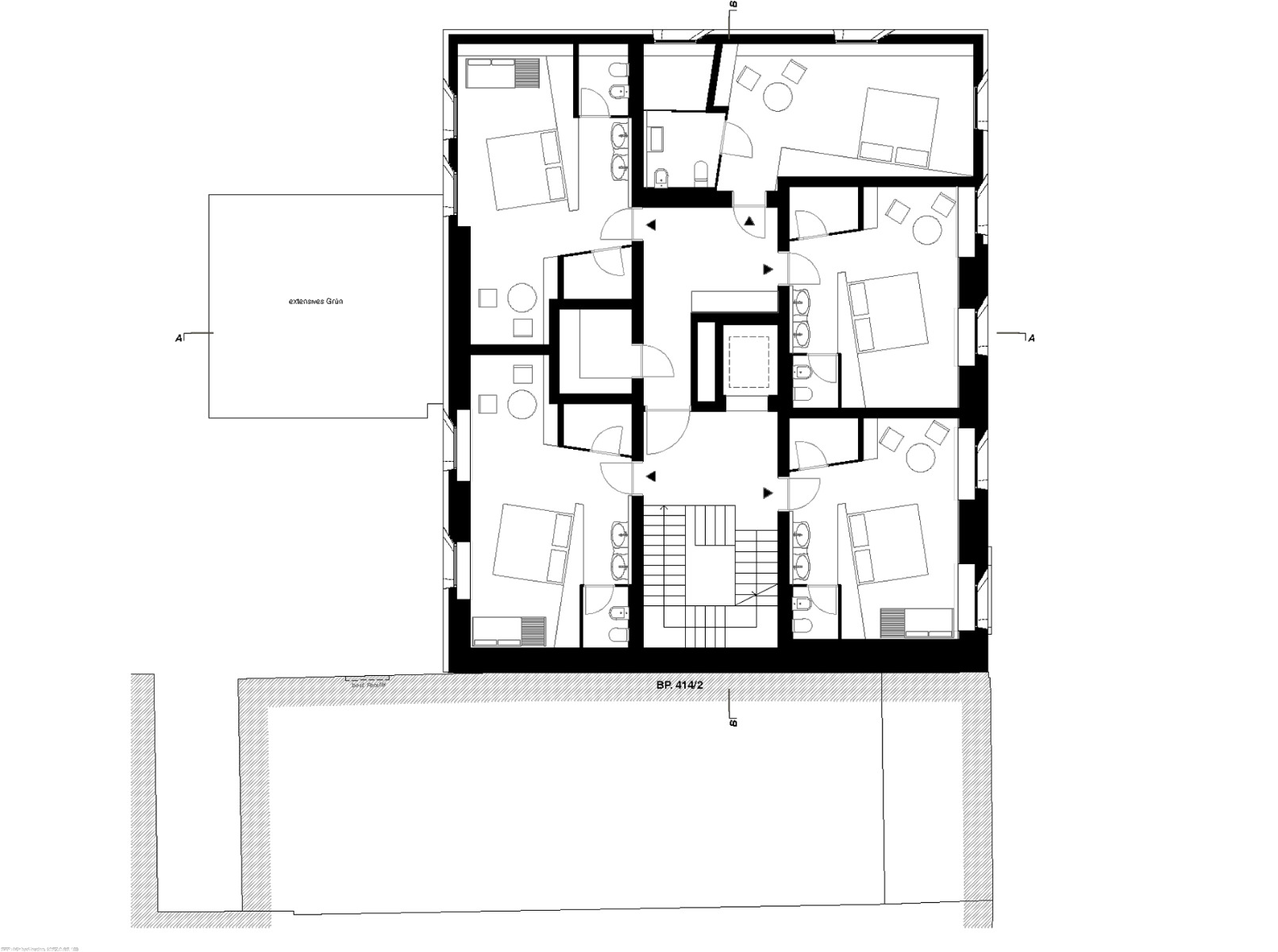
Erst innen wird das Holz zum Thema: In den 17 Zimmern des Hotels kam unbehandeltes Kastanien- und Fichtenholz zum Einsatz. © Holzius/Barbara Corsico
Mit Mondholz gebaut
Die Bauherren wünschten sich eine nachhaltige, wohngesunde Bauweise und entschieden sich für sogenanntes Mondholz als Ausgangsmaterial. Dabei handelt es sich um Holz von Bäumen, die unter Berücksichtigung des forstwirtschaftlichen Mondkalenders gefällt wurden. Vermarktet wird das Produkt mit dem Versprechen, dass es hinsichtlich seiner Stabilität, der Haltbarkeit, dem Schwind- und Quellverhalten sowie der Feuerbeständigkeit regulärem Holz überlegen sei.


Die Holzbekleidung zeichnet die Form der Gewölbe des Bestandsbaus nach. © Holzius/Barbara Corsico


Nischen laden zum Verweilen ein. © Holzius/Barbara Corsico
Konstruktion
Die Konstruktion besteht aus tragenden Wand-, Decken- und Dachelementen, die ohne Leim und Nägel, sondern nur mithilfe von Holzverbindungstechniken gefertigt wurden. Auch der Erschließungskern besteht aus Holz. Die Elemente wurden im Werk präzise vorgefertigt, wobei die größte Herausforderung war, die Übergänge zum unregelmäßigen Bestand mit den Fertigteilen zu meistern.


Auch der Erschließungskern besteht aus Holz – sichtbar wird es hier nicht. © Holzius/Barbara Corsico
Rundbögen als Gestaltungelement
In der Lobby des Hotels finden sich mit Holz bekleidete Nischen, deren Rundbögen Bezug auf das Gewölbe des Altbaus nehmen. Die 17 Zimmer des Hotels prägen unbehandeltes Kastanien- und Fichtenholz, Lehmputz und venezianischer Terrazzoboden auf Kalkbasis. Zwei Luft-Wasser-Wärmepumpen sorgen zusammen mit einer Photovoltaik-Anlage und der Bauweise für die Einstufung als Klimahaus der Klasse A, was nach der EU-Gebäuderichtlinie einem Niedrigstenergiegebäude entspricht.
Mehr dazu in Detail 4.2025 sowie in unserer Datenbank Detail Inspiration.
Architektur, Innenarchitektur: Felix Perasso und Daniel Tolpeit
Markendesign und Corporate Architecture: Armin Strickner (Tiftla), Thomas Börgel
Bauherr: Familie D’Onofrio
Standort: Kapuzinergasse, Bozen, Südtirol (IT)
Tragwerksplanung: Ing. Stefano Moravi
Vollholzelemente: Holzius
























