Im Spirit des Viertels: 35 Wohnungen im 11. Arrondissement
Foto: Nicolas Grosmond
Das Viertel Saint Antoine im Pariser 11. Arrondissement war bis in die 1950er-Jahre bekannt für seine Möbelproduktion. Heute lebt im dichtest besiedelten Stadtteil der Stadt eine bunte Mischung aus Künstlern, Arbeitern, Intellektuellen, jungen Familien und Handwerkern. Dort haben – angeregt vom Spirit des ehemaligen Handwerkerviertels – die Architekten vom Mobile Architectural Office ein Wohnhaus mit 35 Sozial- und Eigentumswohnungen errichtet. Die Schreinerei von 1922, die auf dem Grundstück stand, musste abgerissen werden, eine Sanierung war nicht möglich.
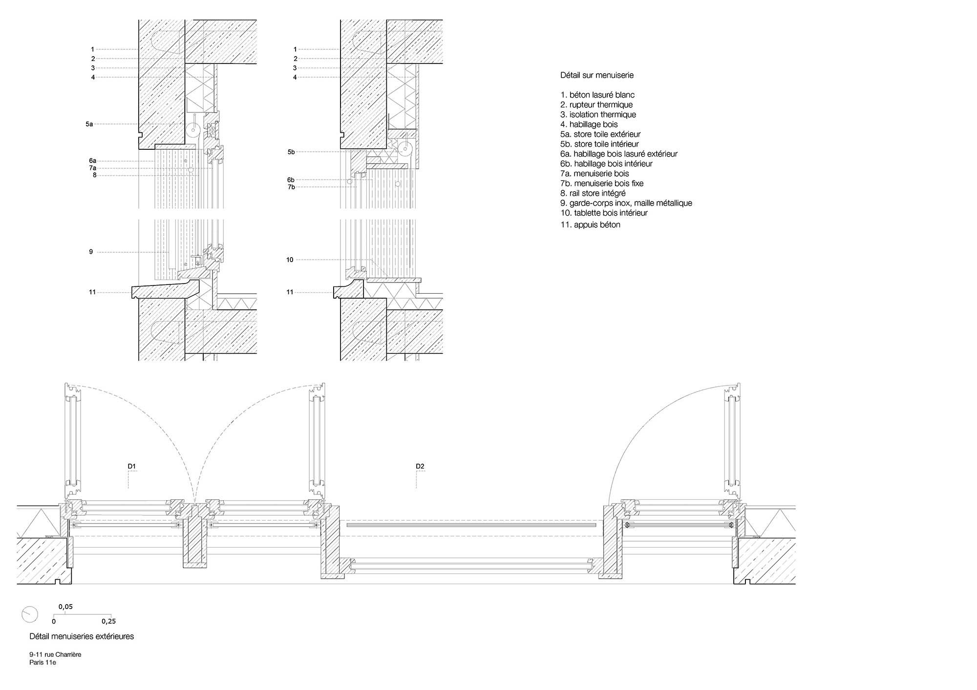
Der Vorgängerbau inspirierte die Architekten zu einer nüchternen Fassade, die an die Industriearchitektur im Paris des frühen 20. Jahrhunderts erinnert. An der straßenseitigen Fassade ist die Tragstruktur, ein auf das Nötigste reduziertes Stahlbetonskelett, mit einer Pfosten-Riegel-Konstruktion ausgefacht. Das tragende Fassadengerüst aus lackierten Stahlprofilen verleiht dem Gebäude im Erdgeschoss einen Werkstattcharakter. Ab dem ersten Obergeschoss haben sich die Architekten für ein Fassadenskelett aus Lärchenholz entschieden. Die Fenster sitzen entweder als Öffnungsflügel innenbündig oder als Festverglasung an der Außenkante der Pfosten und Riegel. Alle Fenster sind raumhoch und bringen ein Maximum an Tageslicht in die Wohnungen. Der Wechsel von innen- und außenbündigen Elementen gliedert die Fassade im belebten Rhythmus. Die letzten beiden der insgesamt fünf Ebenen sind Staffelgeschosse. Hier ist den Wohnungen jeweils eine Terrasse vorgelagert. Wintergärten erweitern den Wohnraum nach außen.
Eine hohe Vielfalt an Wohnungstypen – von großzügigen Maisonettes und 5-Zimmerwohnungen bis hin zum kompakten Einzimmerapartment – verspricht eine gute soziale Durchmischung der Bewohner. Im Erdgeschoss hat zudem auch wieder eine Schreinerei Platz gefunden, die vom ehemaligen Besitzer des Vorgängerbaus betrieben wird.



















