Industriecharme in transluzenter Hülle: Game Streetmekka in Viborg
Foto: EFFEKT, Rasmus Hjortshøj
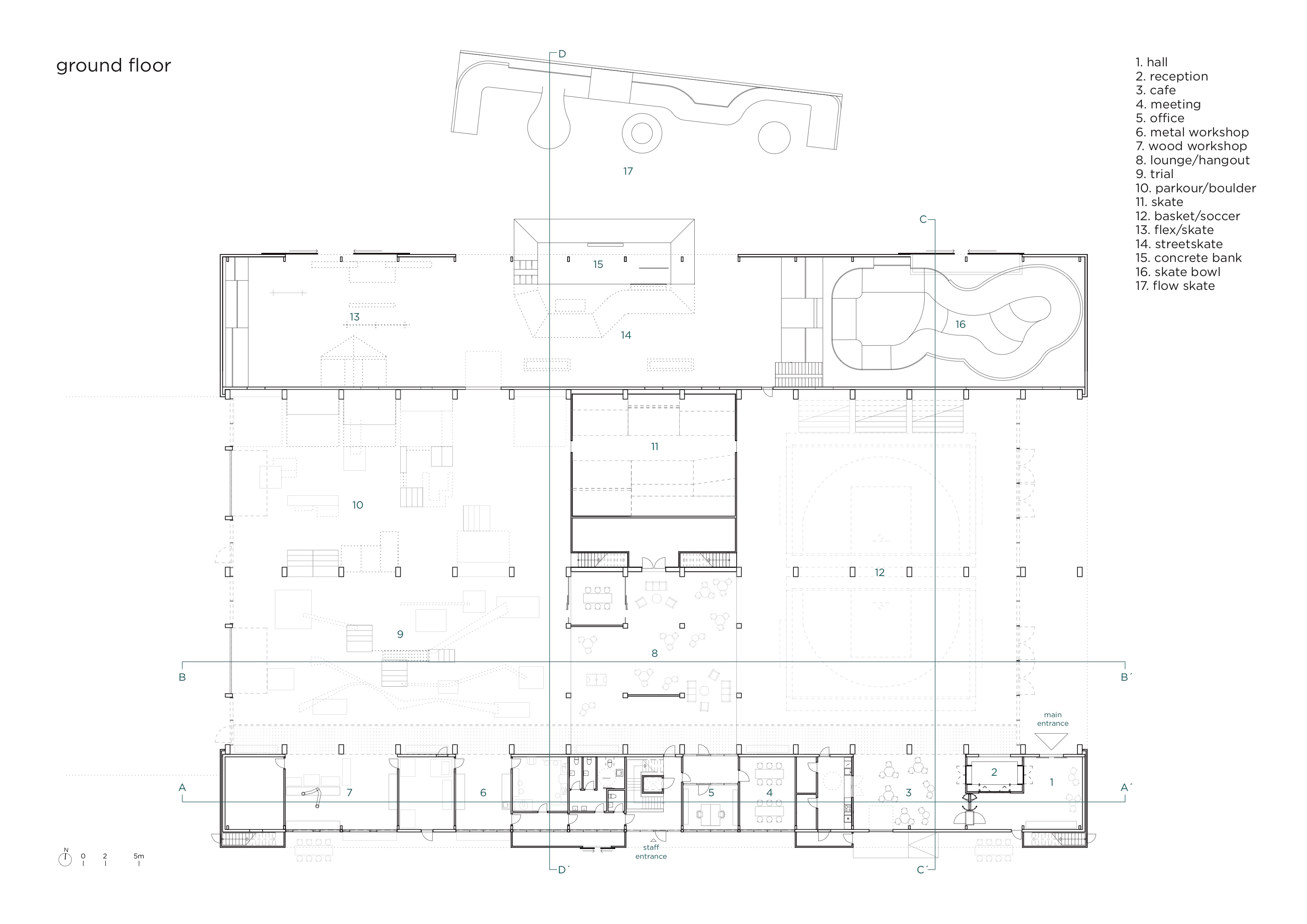
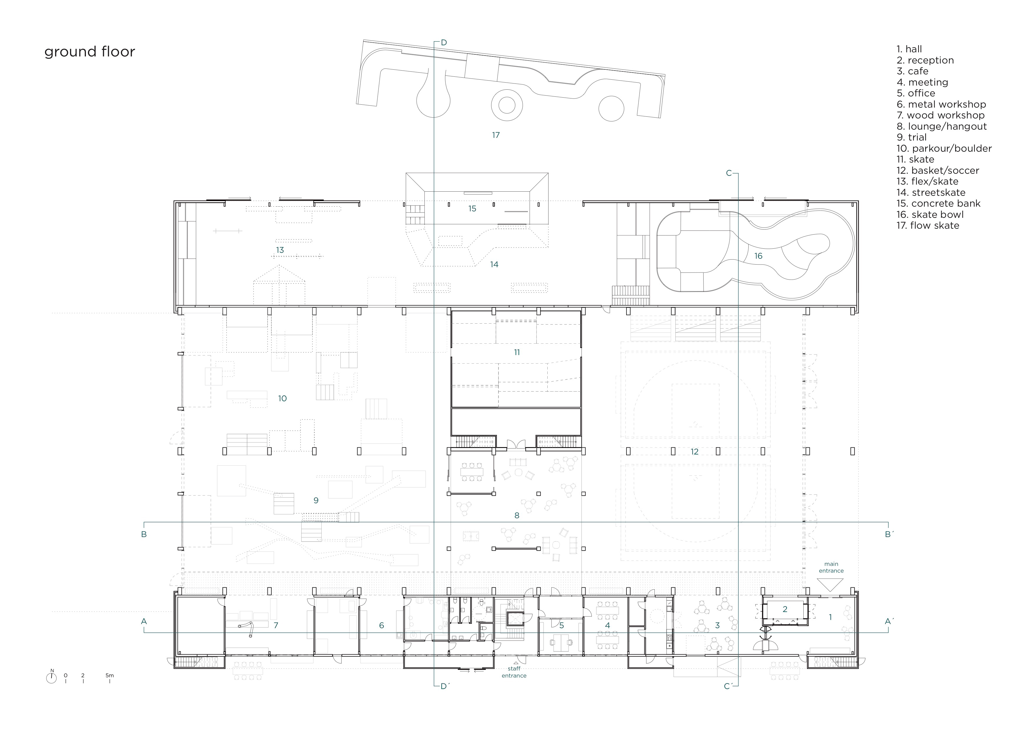
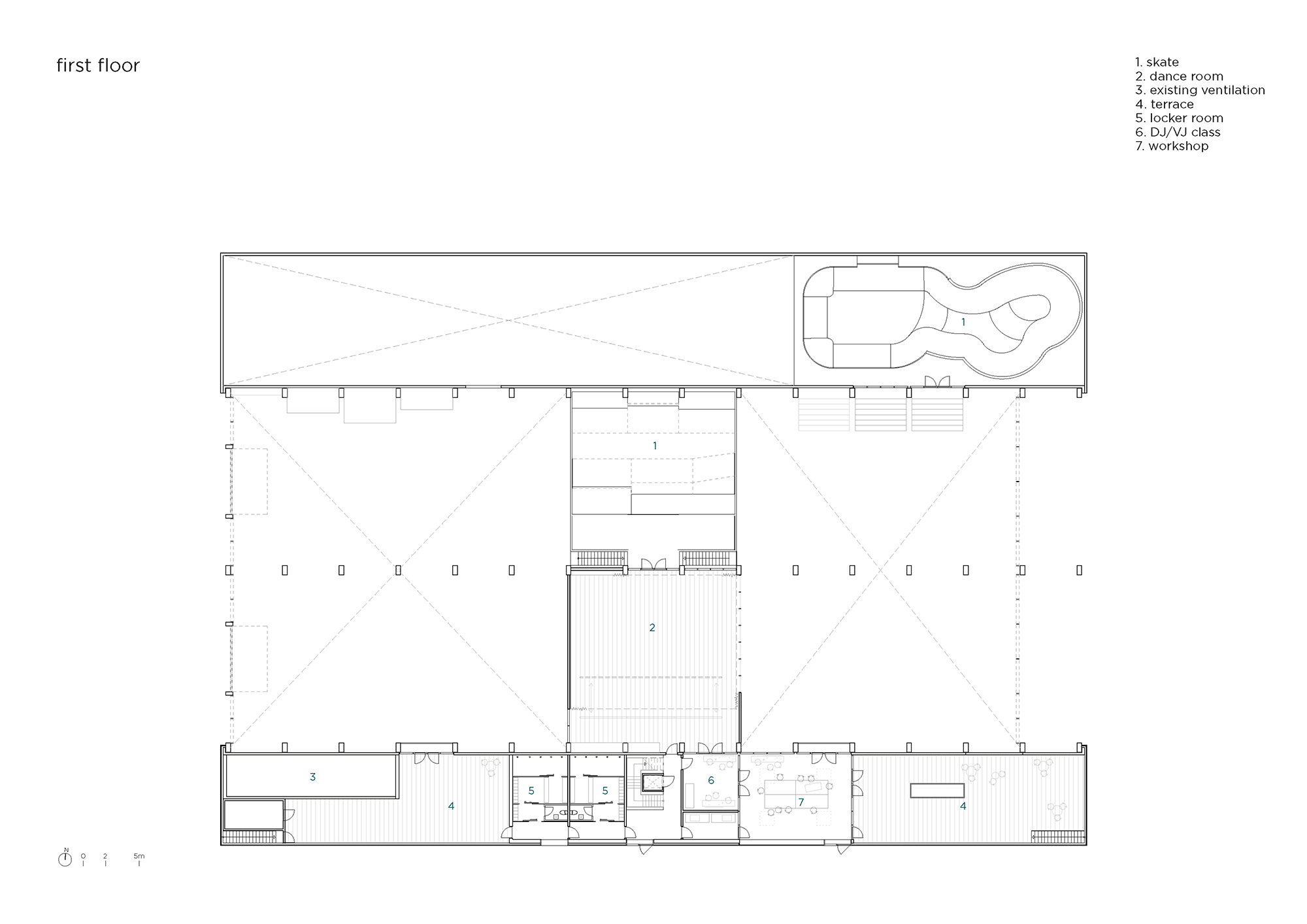
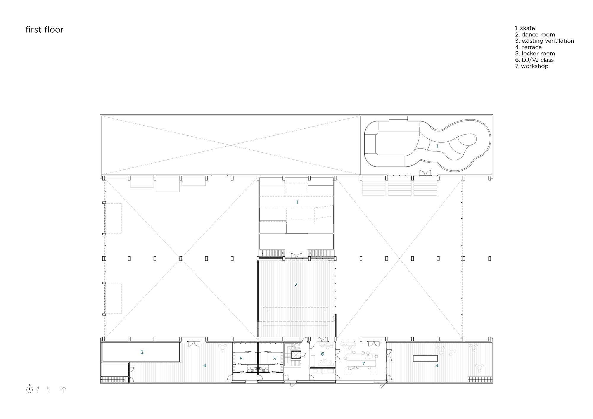
Die Grundlage für das Sport- und Kulturzentrum bildet eine Produktionshalle aus den 60er- und 70er-Jahren. Wellblech und Beton prägten einst das unauffällige Erscheinungsbild des Bestands. Im Wettbewerbsverfahren der Kommune Viborg setzte sich das Team von Effekt durch, deren Konzept eine Art interaktiven Straßenraum im Inneren der Halle vorsieht.
Seit dem Umbau sticht das Gebäude aus dem umliegenden Industriegebiet hervor: Die neue Umhüllung aus transluzenten Polycarbonatplatten erzeugt einen hellen Kontrast zum grauen Umfeld. An einigen Stellen durchbrechen Öffnungen die ansonsten gleichmäßige Fassade und geben Platz für überdachte Bereiche frei. Hier kommen Wände aus Betonfertigteilen zum Vorschein, aufgepeppt von Graffitis und Street Art. Den zurückversetzten Eingang markiert unmissverständlich ein Pfeil aus Leuchtstoffröhren.
Auch der Innenraum ist modern und plakativ gestaltet, ohne den industriellen Charakter der Halle zu verlieren. Hölzerne Raummodule bieten Platz für Gruppenräume, Werkstätten und Workshops. Große Schriftzüge an den Wänden markieren jeweils die verschiedenen Raumprogramme.
Neben der Haupthalle schließt eine halboffene Zone an, die Halfpipes für Skateboardfahrer und Mountainbikes beinhaltet. Im Hof gibt es weitere Sportplätze und Spielgeräte, umgeben von grünen Beeten.
Im Game Streetmekka können sich Jugendliche zu allen Tageszeiten treffen, um allerlei Sport- und Freizeitaktivitäten nachzugehen. So sollen der soziale und interkulturelle Austausch, die Kreativität und auch die individuelle Entwicklung der jungen Besucher gefördert werden. Jeder soll sich willkommen fühlen, teilzunehmen. Das zukünftige Ziel ist, auch die Nachbargebäude nach und nach zu beleben, um einen extrovertierten und aufgeweckten Stadtteil zu erschaffen.
Über das Projekt berichten wir in DETAIL 9.2021.













































