Industrial Charm in a Translucent Shell: Game Streetmekka in Viborg
Foto: EFFEKT, Rasmus Hjortshøj
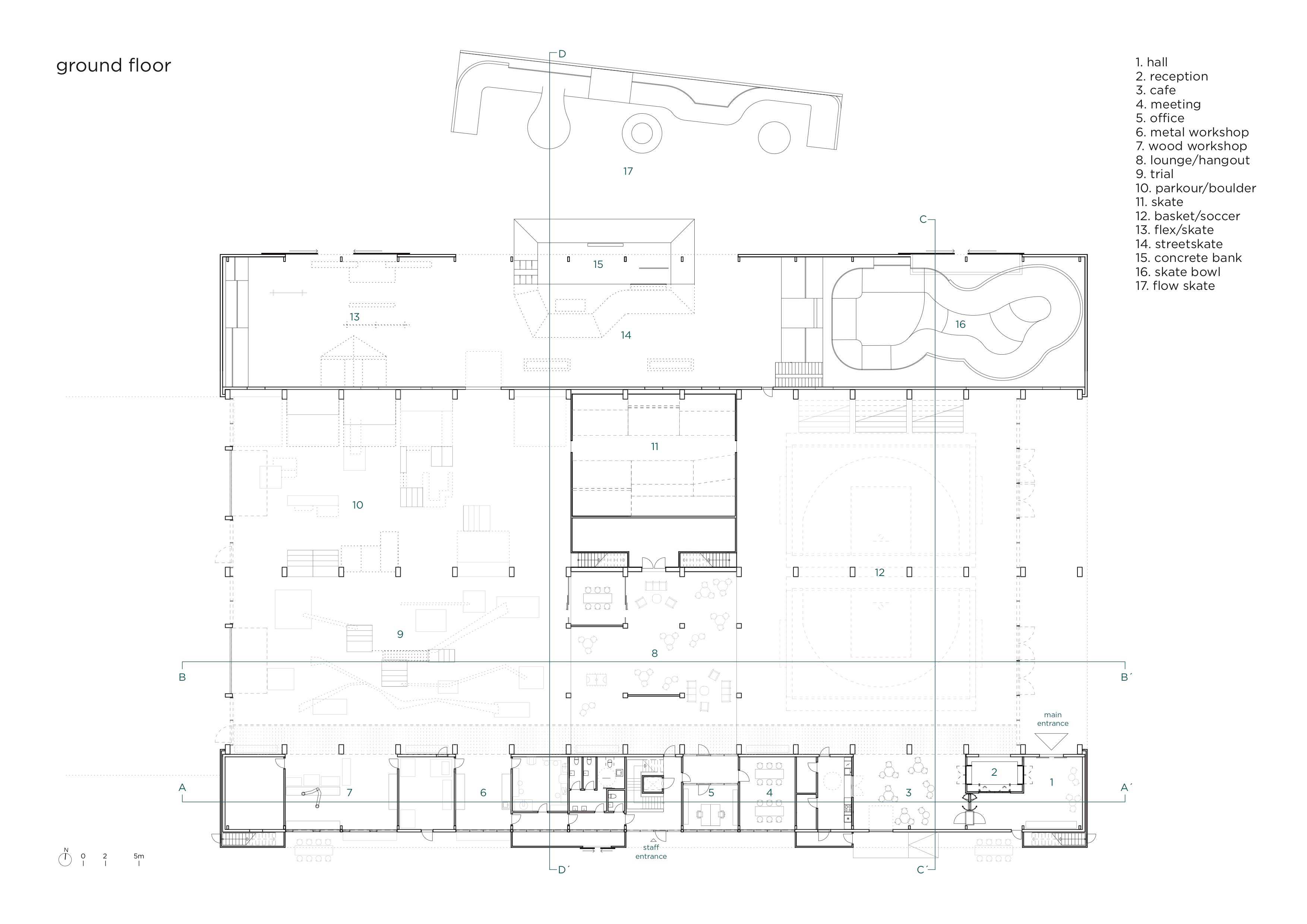
A production hall from the 1960s and 1970s is the foundation for this sport and cultural centre. Corrugated sheeting and concrete dominate the modest appearance of the existing building. In a competition announced by the City of Viborg, the team from Effekt carried the day with their concept, which foresees a sort of interactive street space inside the hall.
Since the renovation, the building stands out from the industrial area around it: the new envelope of translucent polycarbonate panels creates a light-coloured contrast to the grey surroundings. In some places, openings break though the otherwise uniform façade, leaving space for roofed-in areas. Walls of prefab concrete stand here, enlivened by graffiti and street art. The recessed entrance is unambiguously marked with an arrow made of fluorescent tubing.
The interior is also modern and striking without compromising the industrial character of the hall. Wooden room modules offer space for groups, studios and workshops. Large lettering on the walls marks each respective spatial program.
A half-open zone is adjacent to the main hall; this is home to half-pipes for skateboarders and mountain bikers. In the yard, there are more sports areas and playground equipment surrounded by green plant beds.
Kids can meet up at Game Streetmekka at any time of day and try out a variety of sports and leisure activities. This will promote social and intercultural exchange, creativity and individual development among the young visitors. Everyone should feel welcome to participate. The future aim is to resuscitate the neighbouring buildings as well in order to create a bright, extraverted urban district.













































