Industriecharme: Oliva Artés Museum von Baas Arquitectura
Foto: Adrià Goula
Im Zuge eines urbanen Projekts sollte im Jahre 2008 die verfallene Halle im Stadtteil Poblenou weichen und Platz für Neues machen. Buchstäblich in letzter Minute rettete eine Nachbarschaftspetition den Industriebau vor dem Abriss. Baas Arquitectura gewann schließlich einen Wettbewerb zur Revitalisierung des Komplexes. Sie überzeugten mit einem Entwurf, der die bestehende Struktur so wenig wie möglich verändern und zu einem Museum umfunktionieren sollte.
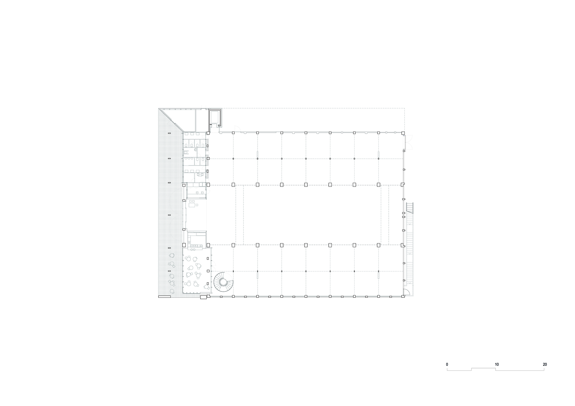
Das Herzstück des Projekts bildet die dreischiffige Halle des Baus. Sämtliche Mauern und Stahlträger sowie die tragenden Teile wurden restauriert, die Innenräume ausgehöhlt und auf ein Minimum reduziert. Dadurch bleibt der industrielle Charakter der Fabrikhalle erhalten. Dem Bestand fügen die Architekten einen neuen Layer hinzu – eine Reihe skulpturaler Elemente aus golden verzinktem Stahlblech, die sich wie eine neue Schicht über das Museum legen und dabei selbst wie Exponate wirken.
Die matt leuchtenden Formen der baulichen Ergänzungen sind selbstverständlich funktionale architektonische Elemente. Während sich außen eine Treppe in Form eines aufsteigenden Balkens an die Gebäuderückseite legt und die Verbindung des Kulturbaus zum umgebenden Park stärkt, fungiert der abstrakte Rahmen des flachen Anbaus als neuer Eingangsbereich. Er wird zum hellen, geschützten Entree, das die Besucher empfängt. In der offenen, von Stützen gesäumten Ausstellungshalle führt eine auffällige Wendeltreppe vom ersten ins zweite Geschoss. Zwischen den rohen, unverkleideten Oberflächen aus Stahl, Beton, Ziegel und Glas sind die neuen Bauteile in zart schimmerndem Gold gestaltet. Sie verleihen dem ehemaligen Industriegebäude einen subtilen, glamourösen Touch.
Aus Kostengründen wurde die Sanierung in mehrere Phasen eingeteilt. Die Eröffnung und Nutzung für Galerien und Konferenzen erfolgte bereits vor der eigentlichen Fertigstellung und ohne funktionierende Klimatisierung. Laut Baas Arquitectura ist das Oliva Artés Museum sowohl Gebäude als auch Pavillon – ein Raum, der sich ständig verändert und inmitten der Renovierung reichlich Platz für Kultur, Konzerte und außergewöhnliche Erlebnisse bietet.
Über das Projekt berichten wir in DETAIL 5.2021.











