Industrial Charm: Oliva Artés Museum by BAAS Arquitectura
Foto: Adrià Goula
In 2008, the dilapidated hall in the Poblenou district was slated to make way for new structures as part of an urban project. Literally at the last minute, a neighbourhood petition saved the industrial building from destruction. In the end, BAAS Arquitectura won the competition to revitalize the complex. The architects carried the day with a design that would change the existing structure as little as possible while repurposing it as a museum.
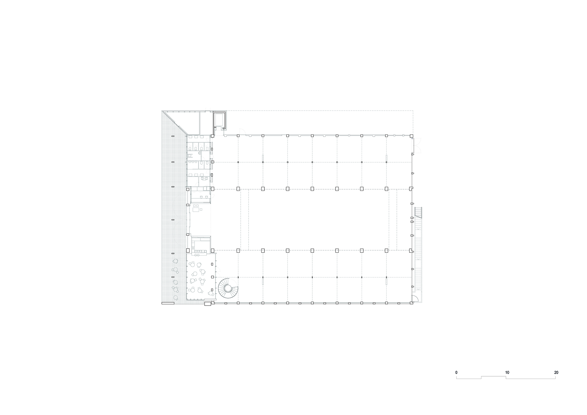
The three-aisled hall of the building forms the heart of the project. All walls and steel girders were restored, and the interior spaces were gutted and reduced to a minimum. This preserved the industrial character of the factory. The architects added a new layer to the existing structure: a series of sculptural elements made of gold-coloured, galvanized steel sheeting. These new features lie over the museum like a new stratum and resemble exhibits themselves.
The matt-gleaming shapes in the constructive additions work as architectural elements in their own right. Outside, a stairway in the shape of an ascending beam rises on the rear side of the building and accentuates the connection between the cultural building and its surrounding park. The abstract frame of the low addition acts as a new entrance area − a bright, sheltered entrée that receives visitors. In the open, column-lined exhibition hall, a striking spiral staircase leads from the first storey to the second. Between the rough, uncovered surfaces of steel, concrete, brick and glass, the new components appear in a soft shimmer of gold, giving a subtle touch of glamour to the old industrial building.
For financial reasons, the renovation project was divided into several phases. The complex was opened and used for galleries and conferences before it was entirely completed; indeed, it still had no working air-conditioning system. According to BAAS Arquitectura, the Oliva Artés Museum is building and pavilion alike − a space that is constantly changing and, even amid the renovation work, offers abundant room for culture, concerts and extraordinary experiences.











