// Check if the article Layout ?>
Innenleben: »Box in the Box« von arenas basabe palacios Architekten
Foto: Imagen Subliminal
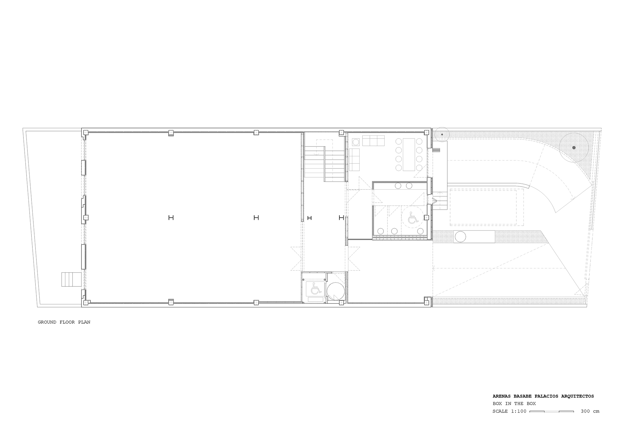
Das ehemalige Warenlager wird zu beiden Seiten von der Nachbarbebauung eingefasst. Nach der Renovierung durch arenas basabe palacios Architekten präsentiert es sich zur Straße hin als kompakter weißer Kubus. Der Zugang zum Bau erfolgt über einen kleinen Vorplatz. Von links nach rechts gibt es zuerst eine große Ausnehmung in der Fassade, die den Haupteingang markiert, dann einen kleineren Austritt vom Erdgeschoss ins Freie und schließlich die Zufahrt zur Garage im Untergeschoss.
Bei der Revitalisierung konzentrieren sich die Architekten vor allem auf den Erhalt des Bestands. In diesem Sinne bewahren sie die bestehende Konstruktion mit ihren Strukturen und ergänzen diese um zeitgemäße Attribute. Der Fassade wird über eine hinterlüftete, weiße Aluminiumhaut ein frisches Finish verliehen. Sie erscheint in vertikaler Richtung leicht geriffelt. In der Horizontalen markieren dünne Fugen die differierenden Formate der Paneele. Bis auf die große Öffnung im Bereich des Haupteingangs sind die Fenster und Türen mit Schiebeelementen versehen. Diese können gefaltet werden und lassen das Kulturzentrum entweder mit seiner Umgebung kommunizieren oder schützen es vor ungewollten Einblicken. Im Dunkeln wird es bei Beleuchtung im Inneren durch die Perforierung der Läden zum diffusen Leuchtmittel.
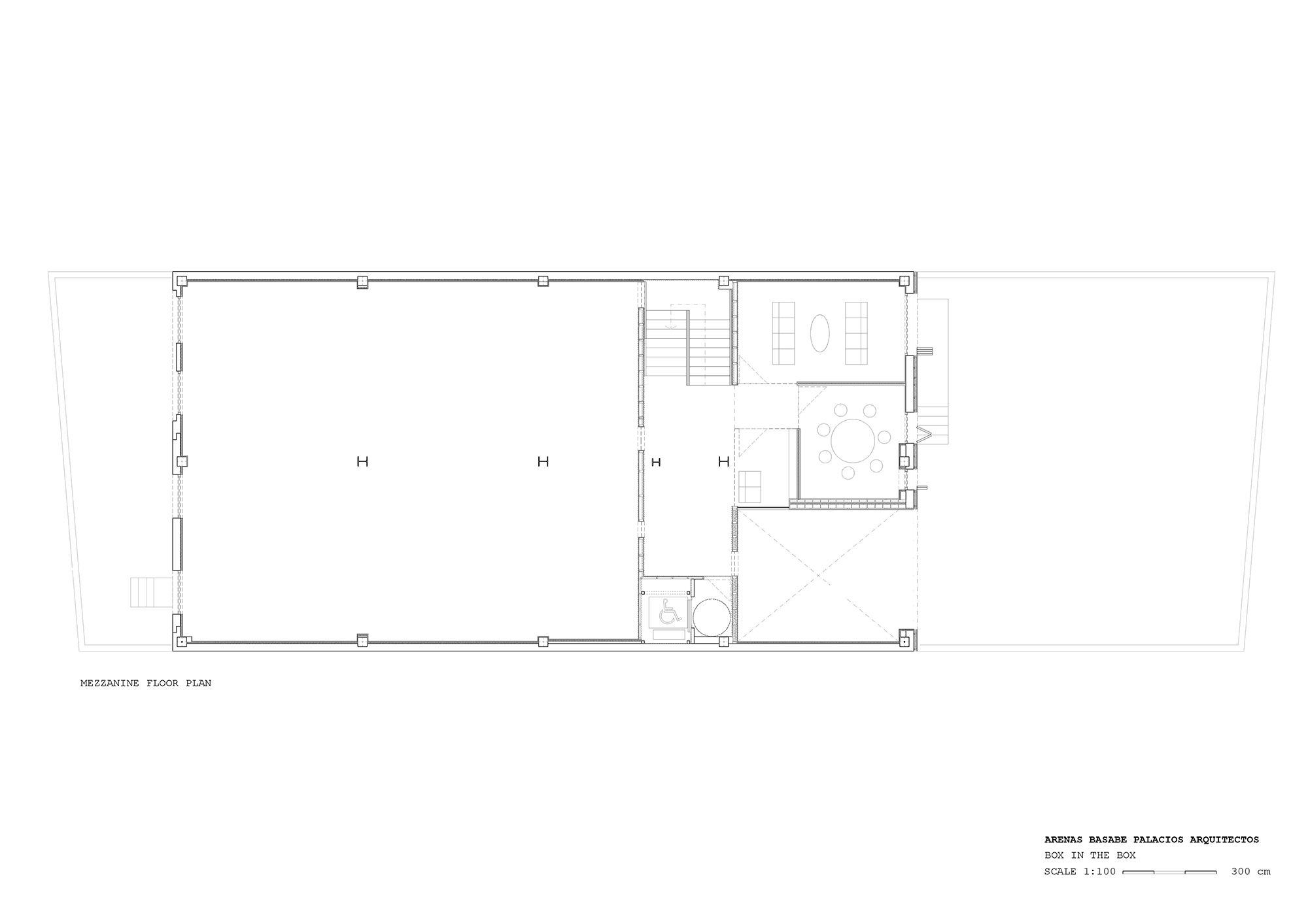
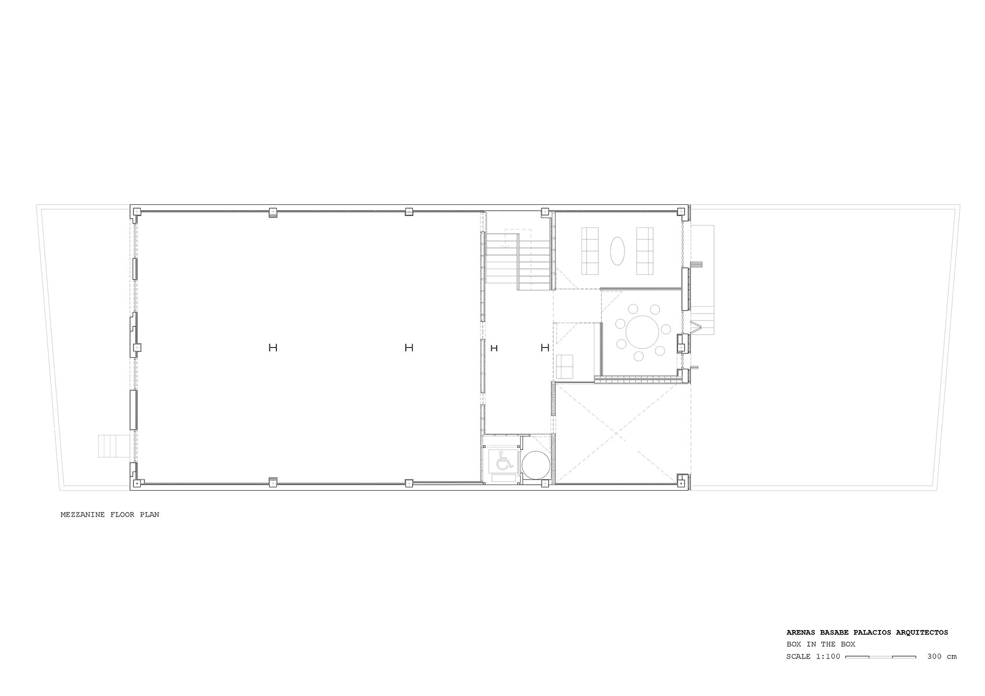
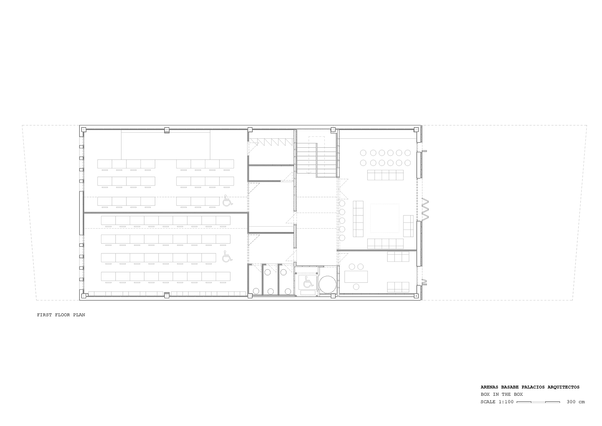
Das Herzstück des Kulturzentrums bildet eine Konstruktion aus OSB-Platten – die Box. Sie umfasst die gesamte Gebäudebreite und erstreckt sich über alle Geschosse. Damit teilt sie den Baukörper in einen kleineren vorderen und einen größeren Bereich im hinteren Teil. Die Box dient nicht nur als erschließender Kern, sondern nimmt außerdem jegliche administrativen Funktionen in sich auf. Neben Treppenhaus und Stauraum finden Toiletten und Gebäudetechnik hier ihren Platz. In den der Straße zugewandten Räumlichkeiten befinden sich ruhigere Funktionen wie Büros und Gemeinschaftszimmer. Ein großer Indoor-Spielplatz, der für sportliche Aktivitäten genutzt werden kann, belegt im hinteren Teil gleich zwei Geschosse. Eine Kapelle, Veranstaltungssaal und Klassenzimmer runden das Raumprogramm des kulturellen Versammlungsortes ab.
Die Box ist komplett in Vollholz gehalten und wird nur von weißen Details wie Treppengeländern ergänzt. In sämtlichen Räumen dominieren helle Oberflächen. Weiße Wände und Decken, kombiniert mit glatt polierten Betonböden und leichten Glasabtrennungen sorgen für ein freundliches Ambiente.


















