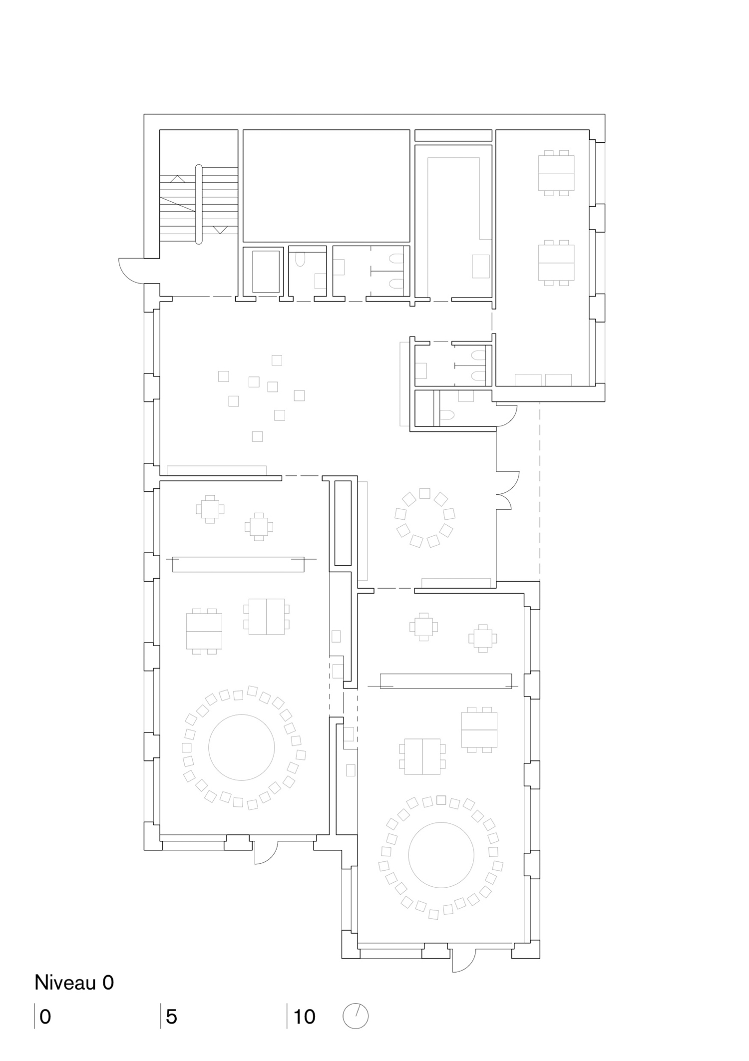
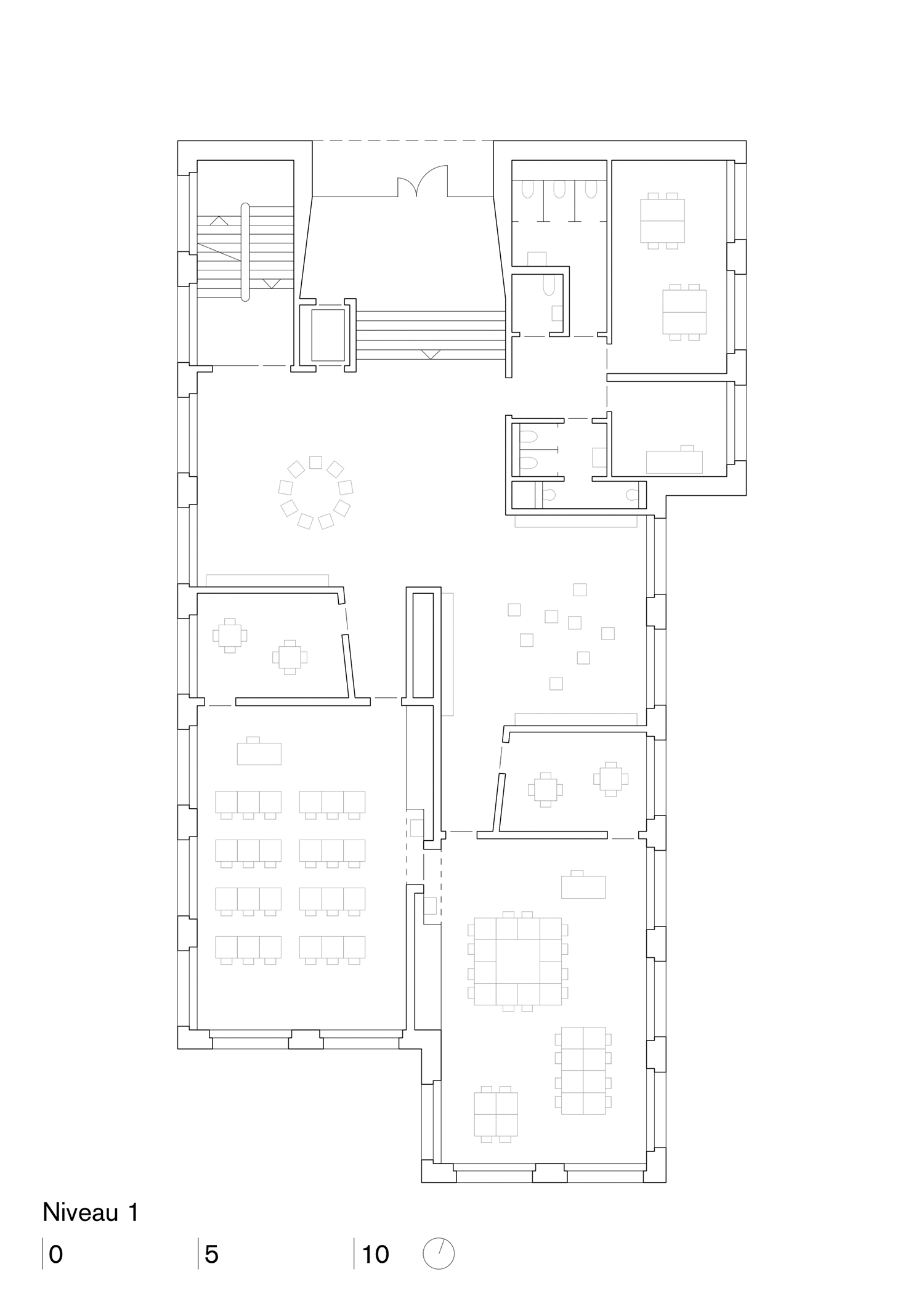
Kanon aus Holz und Beton: Primarschule und Kindergarten Täuffelen
Foto: Christoph Morlok / Hans Rinninger u. Sohn
Für den Bau einer Bäckerfiliale und eines Drogeriemarktes kombinierte der Architekt Marius Mager Thermowände von Syspro aus Beton mit Holz. Wichtig dabei war das Zusammenspiel von drei Statikern – einem Betonstatiker, einem Holzstatiker und einem Statiker für die Fertigteile. Die Thermowandelemente bestehen aus zwei Betonfertigteilplatten, die durch Thermopins auf Abstand miteinander verbunden sind. An der Innenseite der äußeren Schale ist eine Dämmschicht eingebaut. Der freie Raum zwischen den Schalen wurde nach dem Versetzen mit Ortbeton vergossen und bildet mit der Innenschale zusammen das statische Gerüst. Die Sichtseiten der Innen- und Außenschale bilden mit den jeweils glatt geschalten Betonflächen die Fassade beziehungsweise die fertige Wand-oberfläche im Innenraum.















