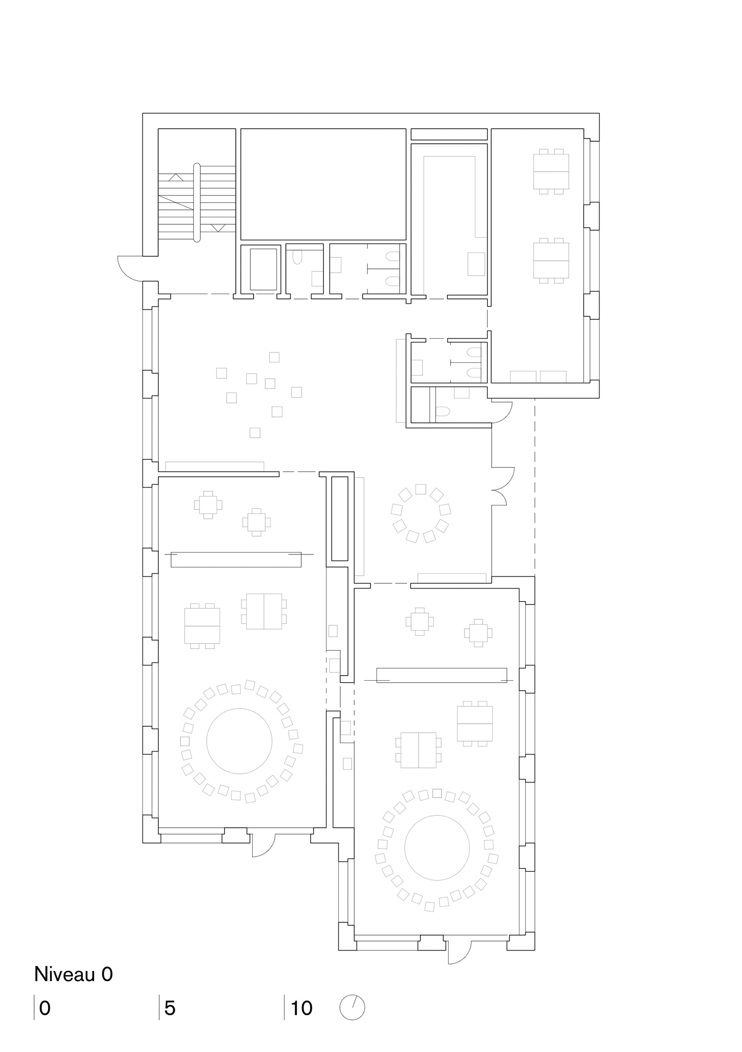
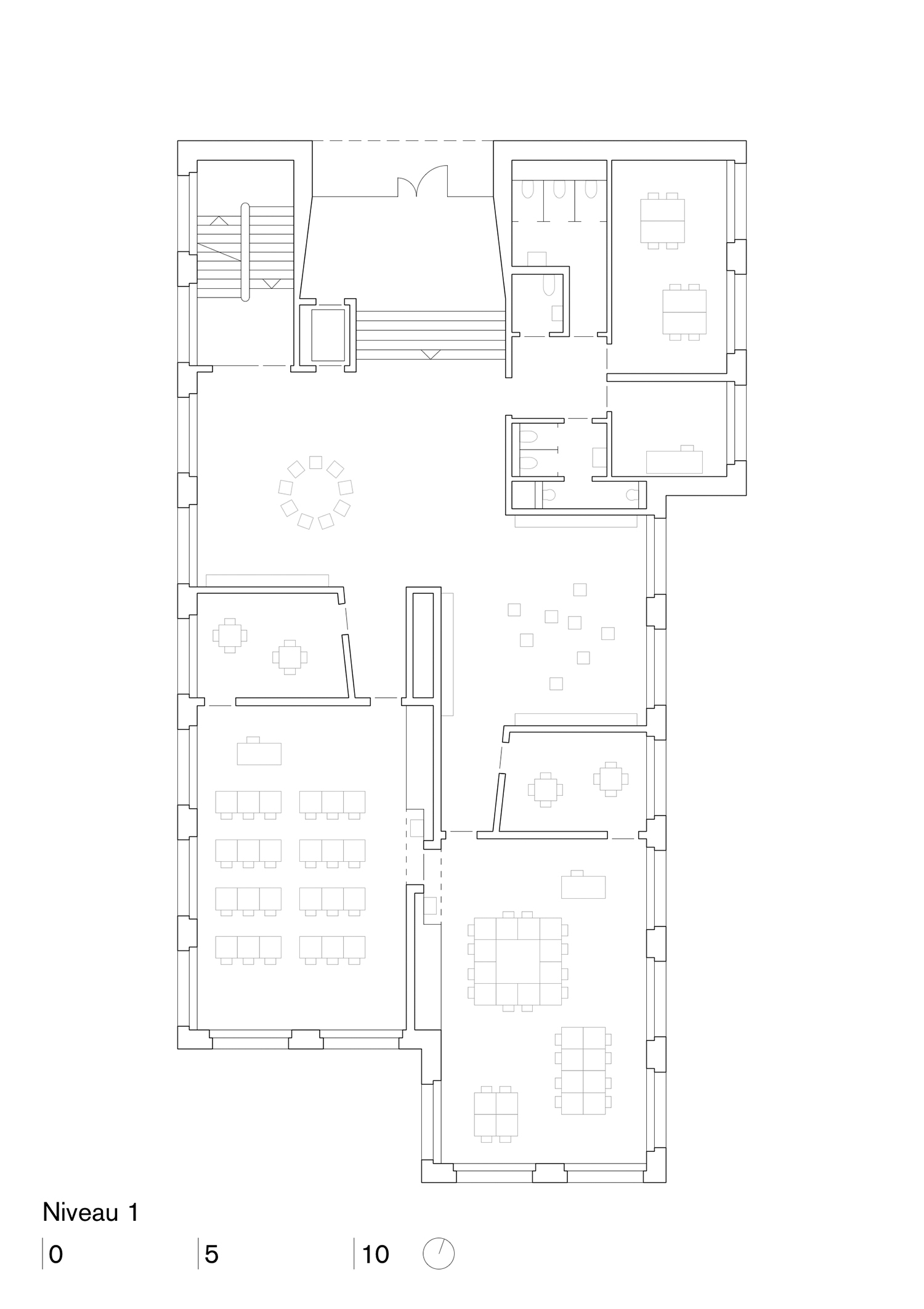
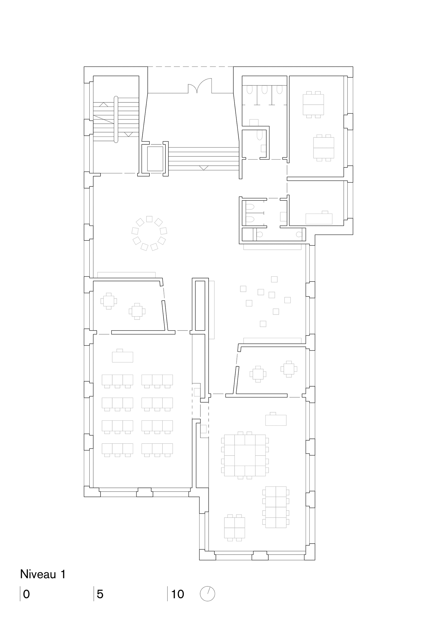
Wood and Concrete
Foto: Christoph Morlok / Hans Rinninger u. Sohn
For a new building containing a bakery and drugstore, architect Marius Mager combined Syspro concrete thermal walls with wood.
Of key importance here was the interaction between three structural engineers – a concrete structural engineer, a wood structural engineer, and a structural engineer for the prefabricated parts. The thermal wall elements consist of two spatially-separated prefabricated concrete slabs connected to each other using thermopins. An insulation layer is installed on the inside of the outer shell. After positioning, the free space between the shells was filled with in-situ concrete, and together with the inner shell forms the static framework. The visible sides of the inner and outer shell together with the smooth concrete surfaces form the facade and finished interior wall surface.















