Kartenhaus aus Beton: House A von Whispering Smith
Foto: Ben Hosking
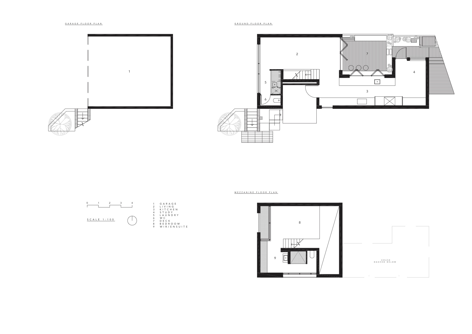
Das »House A« von Whispering Smith ist eine in vielerlei Hinsicht reduzierte und bescheidende Erscheinung, die aus der Schnittstelle zwischen Entwurfsplanung, Materialauswahl und Wohnkonzept entspringt.
Das CO2-neutrale Haus in Perth besteht aus recycelten Betonplatten und weißgekalktem Ziegelstein. Wie ein »gespenstischer Wachposten« über einem Kachelfeld aus Terrakotta besticht das dreistöckige Haus durch eine blassgraue Umhüllung, die von dunklen Nischen und getönten Fenstern unterbrochen wird. Die aufgerichteten Betonwände wurden vor Ort gegossen und zusammengesteckt, was den Beinamen »House of Cards« erklärt. Unter bestimmten Lichtverhältnissen verlieren sich die Umrisse der Betonwände im Wolkenhimmel, so die Architekten.
Helle Farbtöne und größtenteils unbehandelte Baumaterialien prägen das Innere des »House A«. Ein offener und fluid gestalteter Gebäudeplan verläuft, auf einer 175m2 umfassenden Gesamtfläche, spiralförmig von außen nach innen. Abseits des zentralen Hofraums liegen die zurückgezogenen Räumlichkeiten, die, anstatt mit Türen abgetrennt, durch einen Gang ums Eck zu erreichen sind.
Weitere Informationen:
Built By: Talo Construction
Landscaping: M&B Johnston Building and Landscapes
Furniture: Loose furniture was by Mass Productions from District and stools Guy Eddington (local WA designer/maker), Whispering Smith custom designed sofa and timber storage boxes
Kitchen/Laundry Cabinetry: Raw Edge Furniture, Steel Mesh laundry by Wilding Welding, Concrete Benchtops by M&B Johnston building and Landscapes
Tapwear: Kitchen/laundry - Astrawalker, Ensuite - Brodware
Windows: Custom steel designed by Whispering Smith made by Wilding Welding
Art: James Turrell, Meghan Plowman, Ben Hosking, Steven Christie
Appliances: Miele washer/dryer, oven, Bora downdraft cooktop/rangehood
Lighting: Lumen8 adjustable spotlights supplied by Alti lighting
Roofing: Lysaght Hi Strength Kliplok, SIPS industries panels
Polycarbonate screens: Ampelite Easy Click
Concrete: Hanson






























