Card house made of concrete: House A by Whispering Smith
Foto: Ben Hosking
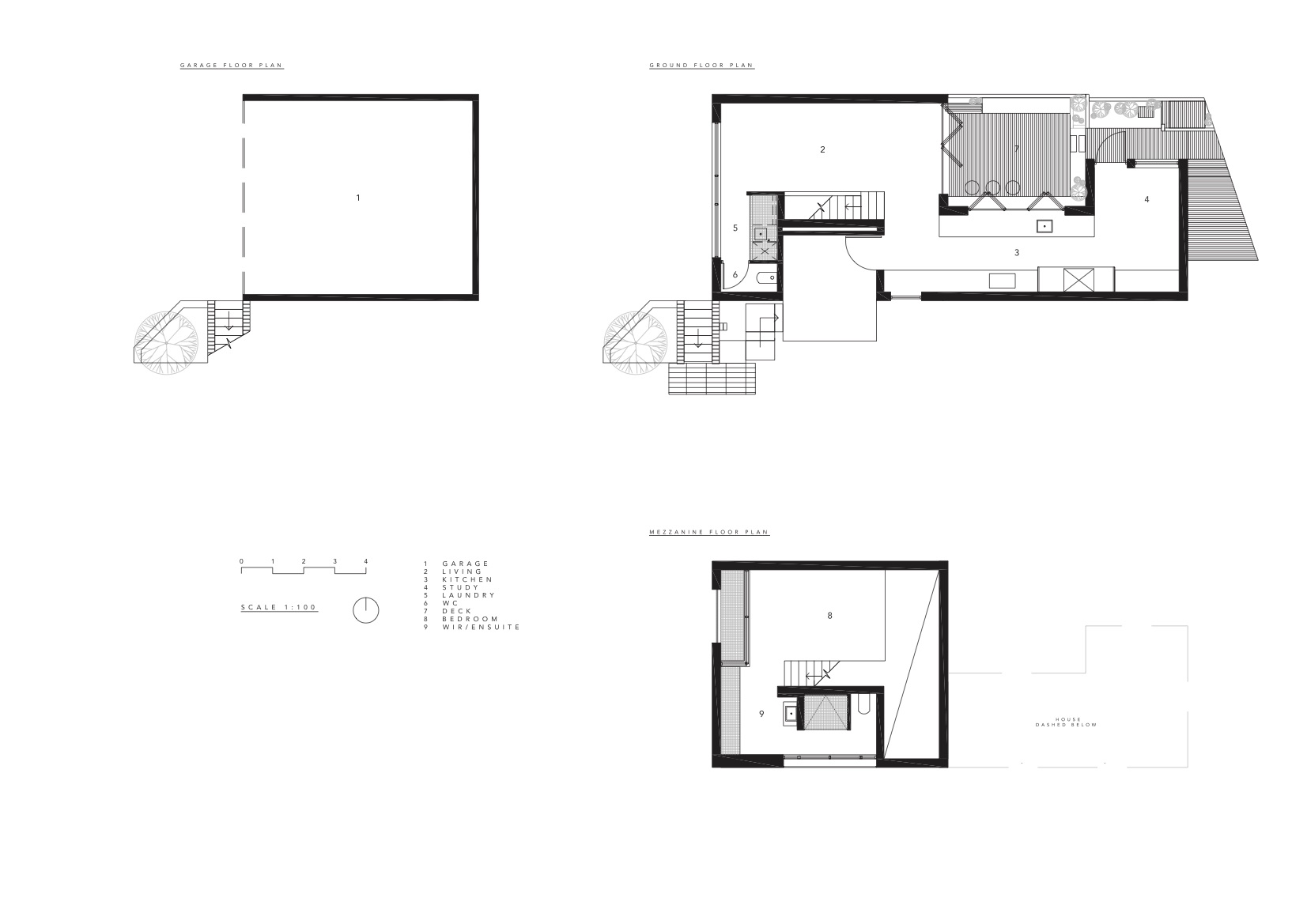
House A by Whispering Smith is a pared-back and frugal building in many respects, one that came about at the interface of draft planning, material selections and residential concept.
The CO2-neutral house in Perth is constructed out of recycled concrete panels and whitewashed brick. Like a "ghostly sentinel" stood above an array of terracotta tiles, the three-storey building is determined by a pale-grey appearance interrupted by dark niches and tinted windows. The tilt-up concrete walls were poured on site, raised into place and fastened together, explaining the building's byname of 'card house'. In certain light conditions, the outlines of the concrete walls almost disappear against the cloudy sky, state the architects.
Pale hues and building materials mainly left untreated determine the interior of House A. Over a total floor space of 175 square metres, the open and fluid floor plan describes a spiral leading inwards from the outer walls. Sections requiring seclusion are located away from the central courtyard, and instead of being closed off by a door are reached by turning a corner along an open passage.
Further information:
Built By: Talo Construction
Landscaping: M&B Johnston Building and Landscapes
Furniture: Loose furniture was by Mass Productions from District and stools Guy Eddington (local WA designer/maker), Whispering Smith custom designed sofa and timber storage boxes
Kitchen/Laundry Cabinetry: Raw Edge Furniture, Steel Mesh laundry by Wilding Welding, Concrete Benchtops by M&B Johnston building and Landscapes
Tapwear: Kitchen/laundry - Astrawalker, Ensuite - Brodware
Windows: Custom steel designed by Whispering Smith made by Wilding Welding
Art: James Turrell, Meghan Plowman, Ben Hosking, Steven Christie
Appliances: Miele washer/dryer, oven, Bora downdraft cooktop/rangehood
Lighting: Lumen8 adjustable spotlights supplied by Alti lighting
Roofing: Lysaght Hi Strength Kliplok, SIPS industries panels
Polycarbonate screens: Ampelite Easy Click
Concrete: Hanson






























