Nachkriegs-Kulturbau saniert
Kathrin-Türks-Halle in Dinslaken von Blocher Partners
© Joachim Grothus
Lorem Ipsum: Zwischenüberschrift
Technisch und gestalterisch runderneuert präsentiert sich der zentrale Kulturbau im niederrheinischen Dinslaken nach seiner Sanierung. Nur hier und da ist die Originalsubstanz aus den 70er-Jahren noch sichtbar.


© Joachim Grothus
Lorem Ipsum: Zwischenüberschrift
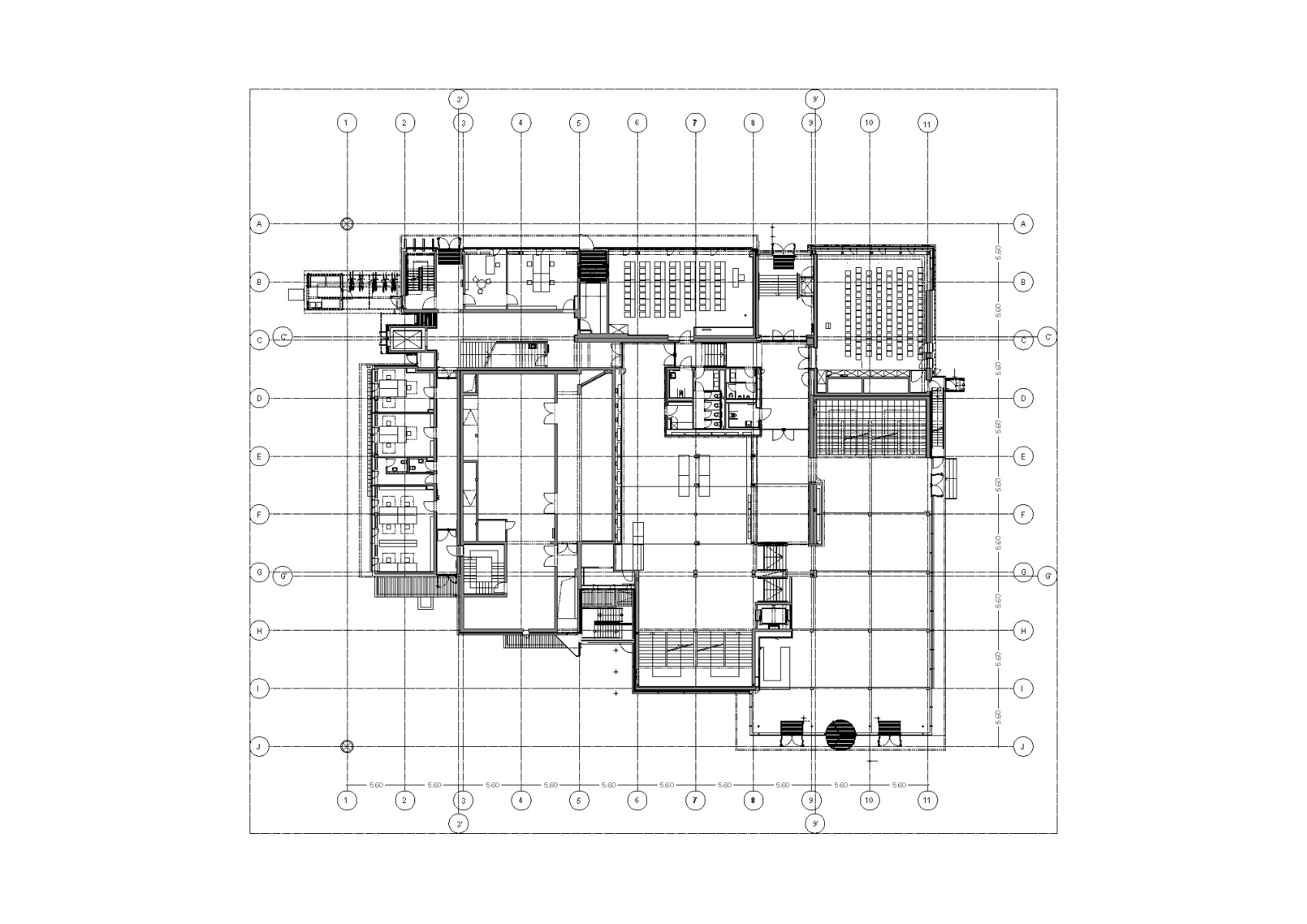
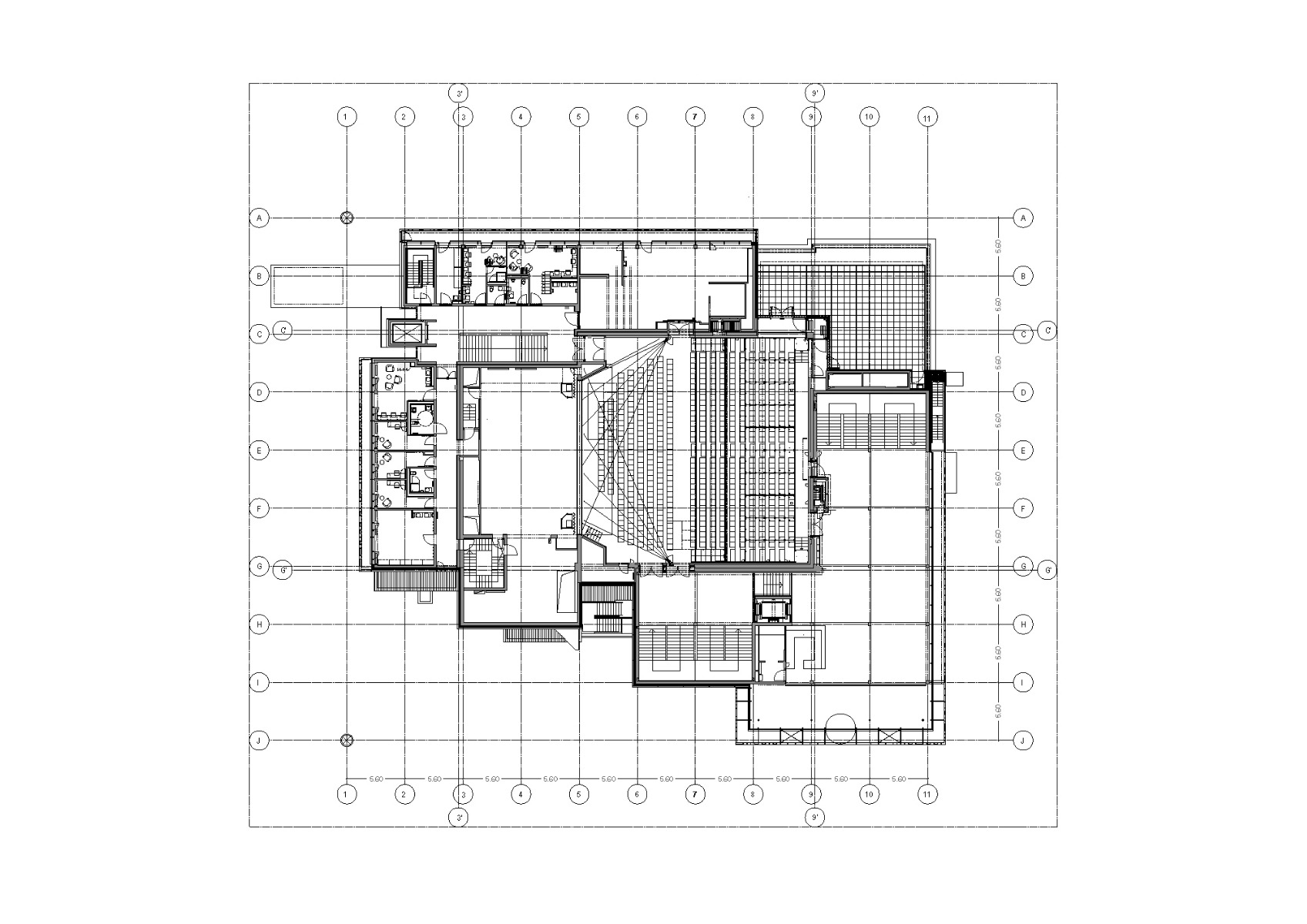
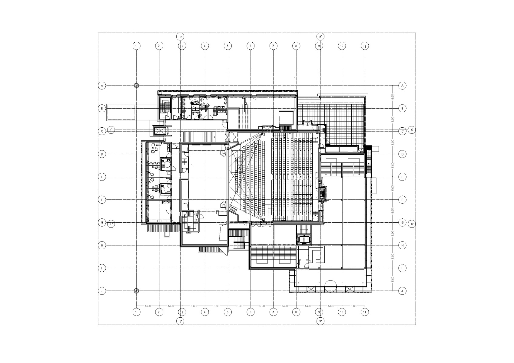
Errichtet wurde die Veranstaltungshalle gegenüber dem Dinslakener Rathaus 1973 nach Plänen des Architekten Heido Stumpf. Auf ihn geht auch die Gliederung des Gebäudekomplexes zurück: Einen zentralen, außen mit Metallblech verkleideten Saal - dessentwegen das Bauwerk im Volksmund auch „Kupferhütte“ genannt wurde – rahmten zwei einander gegenüberliegende, im Grundriss L-förmige Flachbauten.
Lorem Ipsum: Zwischenüberschrift
Vor allem die Form des Saalbaus ist einzigartig: Unter der treppenartig ansteigenden, im Grundriss L-förmigen Dachsilhouette verbirgt sich nicht nur der Bühnenturm, sondern auch ein Großteil der Lüftungs- und Beleuchtungstechnik für den Saal. Der über den Zuschauerrängen gelegene Teil des Dachraums bildet für diese eine Art zusätzlichen Resonanzkörper.


© Joachim Grothus
Lorem Ipsum: Zwischenüberschrift
Bei ihrer Sanierung nach gewonnenem VDV-Verfahren 2015 haben Blocher Partners diese Grunddisposition beibehalten. Mit der Maßnahme sollte die Kathrin-Türks-Halle nicht nur gebäude- und brandschutztechnisch auf den neuesten Stand gebracht, sondern auch barrierefrei erschlossen und mit weiteren Mehrzweckräumen auf eine Gesamtkapazität von mehr als 600 Personen erweitert werden. Bis zu drei Veranstaltungen können nun zeitgleich im Gebäude stattfinden.


© Joachim Grothus


© Joachim Grothus
Lorem Ipsum: Zwischenüberschrift
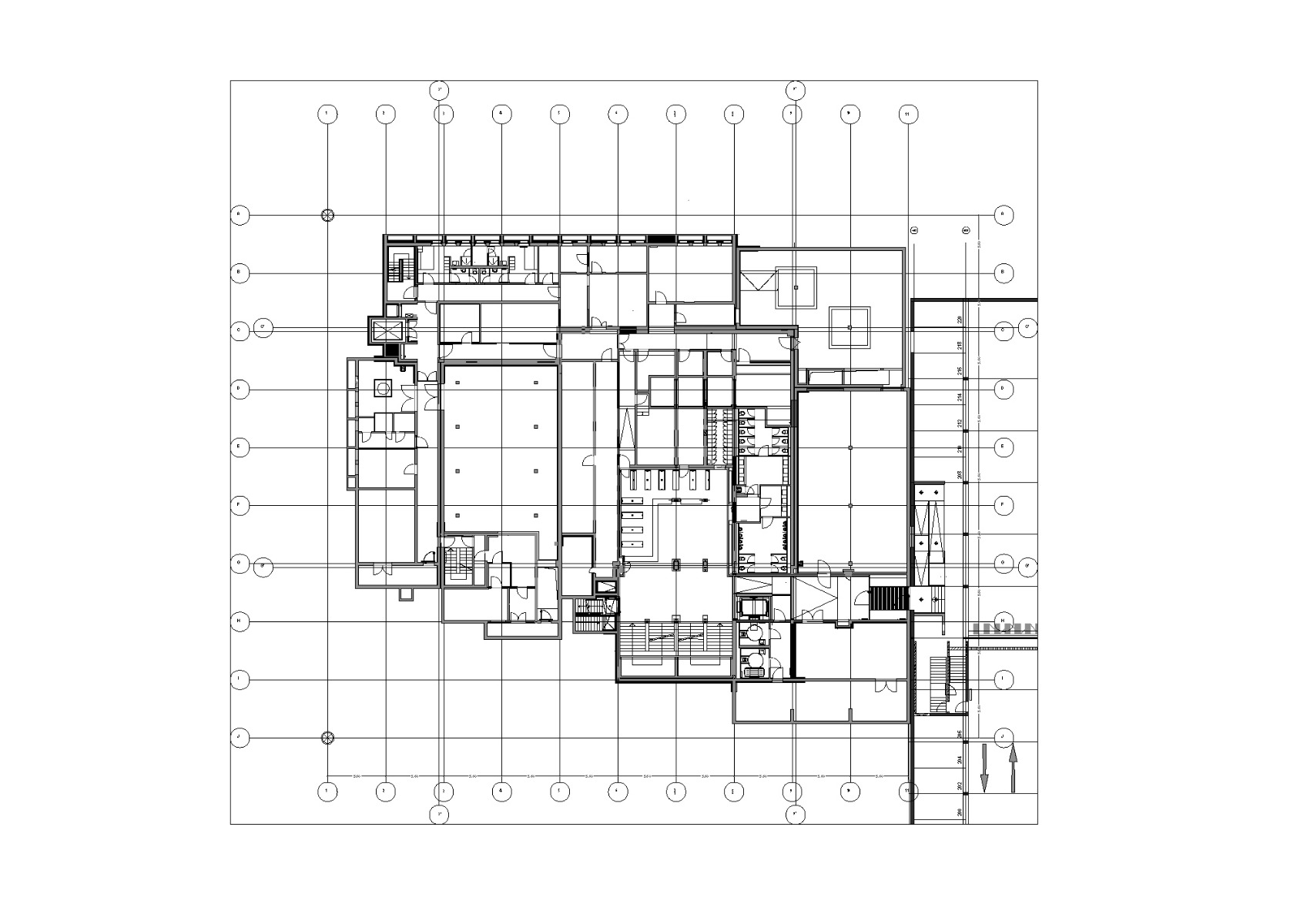
Den zentralen Saalbau hüllten die Architekten in silberfarbige Metallpaneele. Die vormals getrennten, zweigeschossigen Seitenflügel ergänzten sie auf der Rathausseite um einen Verbindungstrakt zu einer durchlaufenden Klammer. An die Stelle der Sichtbetonbrüstungen und horizontal durchlaufenden Bandfenster sind dort nun vollflächige Verglasungen getreten, teils geschützt durch ein außen liegendes Brise-soleil aus rötlichem Metallblech. Die früher im nördlichen Seitenflügel untergebrachten Besuchergarderoben und -toiletten verlegten Blocher Partners ins Untergeschoss neben die Tiefgarage und schufen so eine großzügigere Eingangssituation.


© Joachim Grothus
Lorem Ipsum: Zwischenüberschrift
Großes Augenmerk legten die Architekten auf die Materialwahl für die Innenräume. Drei „Materialwelten“ sollen hier Orientierung schaffen: Der Saal erhielt Wandverkleidungen und Bodenbeläge aus hellem Eichenholz. Decke und Theaterbühne sind dagegen ganz in Schwarz gehalten. Die gleiche Holzlamellenverkleidung der Wände macht die Umgrenzung des zentralen Saal- und Bühnenbaus auch eine Etage tiefer im Foyer ablesbar. Die Sichtbetonoberflächen des Bestandsbaus ließen die Architekten dagegen größtenteils unverändert. Lediglich die Treppenstufen erhielten einen neuen Belag.
Architektur: Blocher Partners
Bauherr: Stadt Dinslaken/ProZent GmbH
Standort: Platz d’Agen 4, 46535 Dinslaken (DE)


















