Kein altes Eisen: Wohnhaus aus ausrangierten Schiffscontainern
Foto: Adrià Goula
Schiffscontainer haben eine relativ kurze Nutzungszeit von durchschnittlich zehn Jahren.
Die Architekten von Straddle3 in Kooperation mit Jon Begiristain und Yaiza Terré haben bewiesen, dass die robusten Module kein altes Eisen sein müssen: Für das Programm Aprop der Stadtverwaltung von Barcelona haben sie ein Bausystem entwickelt, das kurzfristig auf den Bedarf von Unterkünften für wohnungslos gewordene Menschen reagieren kann. Dazu ist es schnell zu montieren und kann auch in neuen Konstellationen an anderer Stelle wiederaufgebaut werden. Im gotischen Viertel der katalanischen Hauptstadt haben sie nun das erste Gebäude des Programms errichtet.
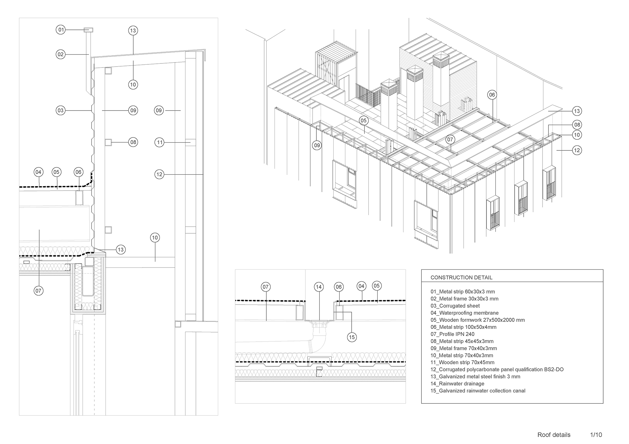
Schwierige Bodenverhältnisse und schmale, belebte Gassen im historischen Kern von Barcelona waren für den Bauablauf eine Herausforderung. Ein sumpfiger Baugrund, wie er in vielen Teilen der Stadt zu finden ist, erforderte eine tiefe Gründung, die wegen der engen Nachbarbebauung lärm- und erschütterungsarm erfolgen musste. Die Gründung mit Mikropfählen war auch mit relativ kleinen und leichten Bohrgeräten gut auszuführen. Verkehrsbehinderungen in den viel befahrenen Gassen vermieden die Planer durch Vorfertigung der Elemente in einer Werkhalle. Direkt nach Abschluss der Gründungsarbeiten im August 2019 konnte die Tragstruktur aus Stahl montiert werden. Auf ihr lagern – wie auf einem Tisch – zwölf Schiffscontainer über vier Ebenen. Die zu 85% ausgebauten Container lieferte ein Transporter mit mobilem Kran auf die Baustelle. Twistlock-Verriegelungen, die sonst auf Schiffen, der Bahn oder auf Lastwagen Verwendung finden, verbinden die Module miteinander und mit der Tragstruktur.
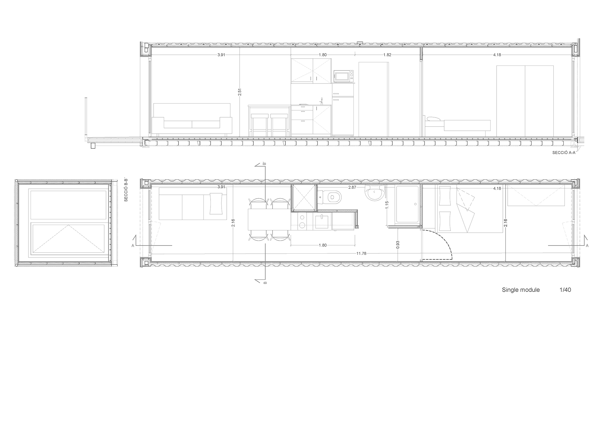
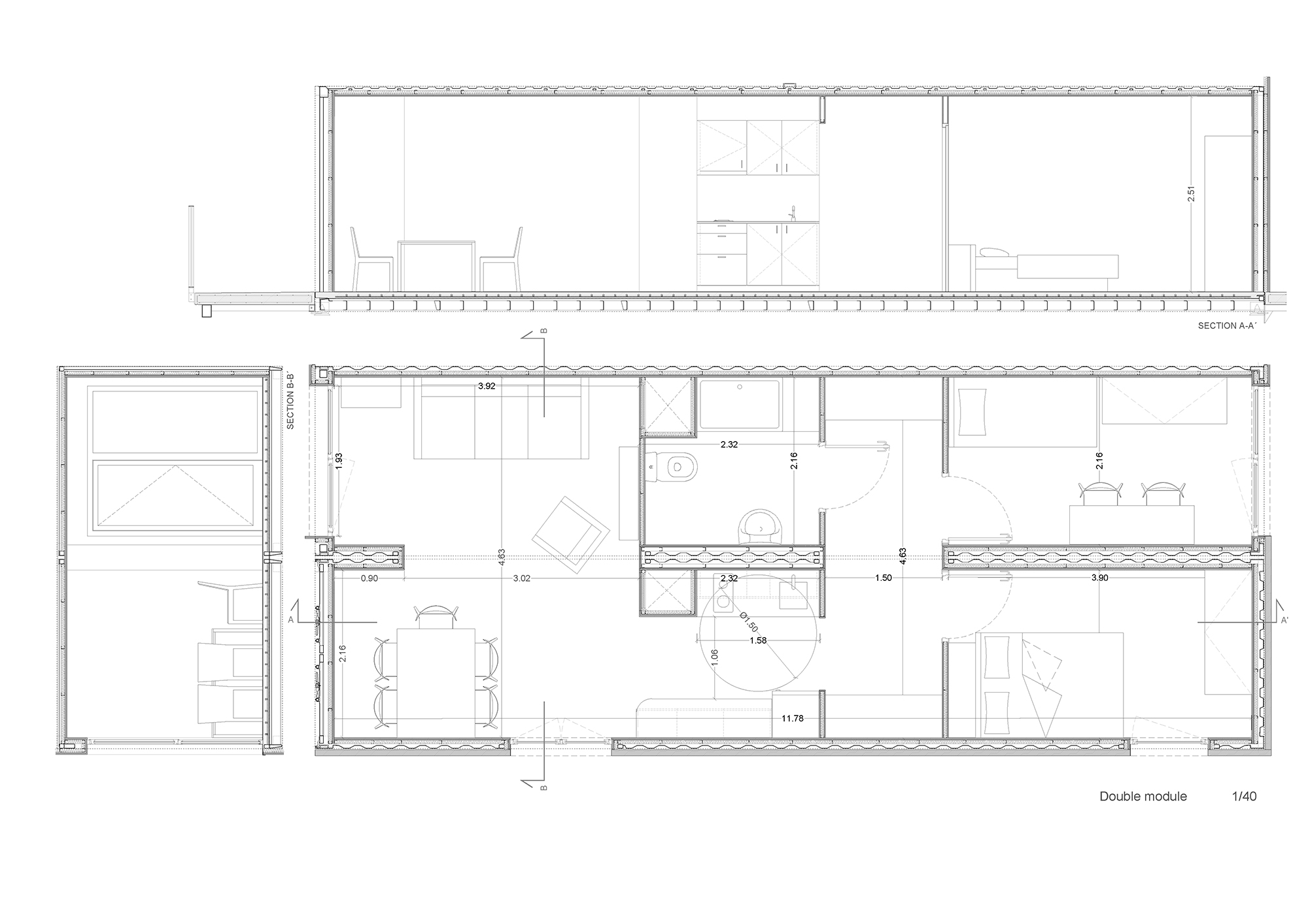
Im Erdgeschoss erlauben die Stützen und Träger des Traggerüsts einen offenen Grundriss. Ab dem ersten Obergeschoss gibt es auf jeder Ebene zwei Einzimmer- und eine Zweizimmerwohnung. Ein einzelner 40 Fuß-Container bildet dabei eine 30 m2 große Wohneinheit für Singles und Paare. Für die 60 m2 großen Zweizimmerwohnungen für kleine Familien haben die Planer je zwei Container miteinander verbunden.
Den Containern ist eine zweischichtige Fassade vorgelagert: Wetterfeste Gipskartonplatten oder Metall-Sandwichplatten verbergen den Container; Polycarbonatplatten bilden die äußere Schicht. Über einen Treppenturm oder einen Aufzug und Laubengänge aus Stahlbeton an der Südostseite erreichen die Bewohner ihre Wohnungen. An der Nordwestseite liegen schmale Loggien zwischen beiden Fassadenschichten und bieten den Bewohnern einen Austritt mit Blick auf einen kleinen Platz.

























