Schutzhülle aus Stampfbeton
Kindergarten Espalion in Südwestfrankreich
Die eingeschossige Kindertagesstätte liegt zu Füßen des Burgbergs von Calmont d’Olt. © Matthieu Noël
Die 5000-Einwohner-Gemeinde Espalion liegt im Niemandsland zwischen Bordeaux, Lyon und Toulouse am Südrand des Massif Central in Frankreich. Die Gegend ist dünn besiedelt, die Einwohnerzahl stagniert, und doch hatten Espalion und seine Nachbargemeinden Bedarf nach zusätzlichen Kitaplätzen. Der Gemeindeverband hatte dafür ein Grundstück am Westrand des Orts zu Füßen des Château de Calmont d'Olt zur Verfügung gestellt. Den Auftrag zur Realisierung des Neubaus für vier Gruppen sicherte sich das ortsansässige Büro Atelier Orra und seine Partnerarchitekten WIP Architecture.


35 cm dicke Stampfbetonwände umgeben die Innenräume und die umliegenden Freibereiche. © Matthieu Noël
Flachdach und massive Betonmauern
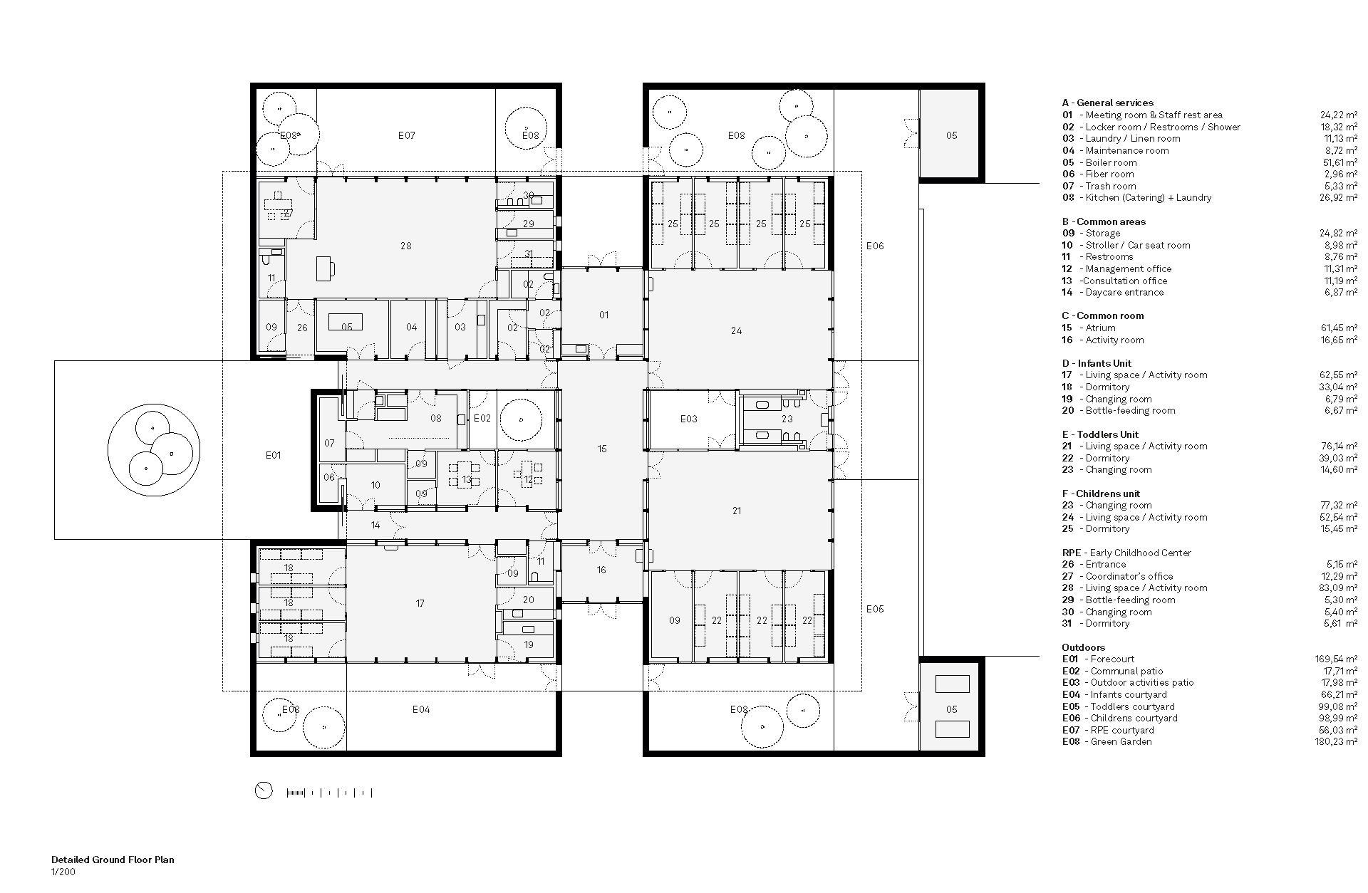
Nach außen hin schützt sich der Kindergarten mit massiven, fensterlosen Außenwänden aus Stampfbeton. In symmetrischer Konfiguration umgeben sie das Gebäude und die angrenzenden Freibereiche gleichermaßen. Ein weit auskragendes Flachdach aus Holz schützt die Fassaden vor direkter Sonne. Der Grundriss ist nahezu achsensymmetrisch: Je zwei Kitagruppen mit eigenem Freibereich umgeben einen Mitteltrakt mit Küche, Lagerräumen und den Büros der Betreuerinnen. Zwei Innenhöfe bringen zusätzliches Tageslicht in die Gruppenräume und in das zentrale Atrium.


Das zentrale Atrium öffnet sich auf beiden Seiten zu kleinen Innenhöfen. © Matthieu Noël
Materialexperimente im Dienst der CO2-Bilanz
So abweisend das Gebäude auf den ersten Blick erscheinen mag – sein Bau war ein Experiment, das Bauarbeiter und Angestellte der Gemeinde gleichermaßen einschloss. „Für dieses Gemeinschaftsprojekt haben wir uns zum Ziel gesetzt, den CO2-Fußabdruck zu reduzieren, das Gebäude im Einklang mit seiner Umgebung zu konzipieren und auf lokales Handwerk und lokales Know-how zu setzen“, schreibt Gemeindepräsident Nicolas Bessières. Ungewöhnlich sind insbesondere die Wände, die das Dach tragen und die Freibereiche rahmen. Sie bestehen aus lageweise verdichtetem Beton ohne Bewehrung – bis auf das Fundament, das auf herkömmliche Weise aus Stahlbeton hergestellt wurde. Wo sie als thermische Trennung zwischen Innen und Außen dienen, wurden die Wände von innen gedämmt.


Jedem Gruppenraum ist ein individueller Außenbereich zugeordnet. © Matthieu Noël
Beigefarbener Beton mit Bindemittel aus Kalk
Die 35 cm dicken Wände wurden aus 12,5 cm hohen Betonlagen hergestellt, die hydraulisch auf 10 cm verdichtet wurden. Dabei kam eine Gleitschalung zum Einsatz, um die vertikale Ausrichtung der Wandoberflächen sicherzustellen. Für eine ausreichende Tragfähigkeit der Wände war es essenziell, dass deren Trockendichte über 2150 kg/m³ lag. Der beigefarbene Ton der Betonmasse war das Ergebnis mehrerer Materialexperimente der Architekten. Ihr Ziel lautete, den Farbton der Trockenmauern der landwirtschaftlichen Gebäude der Region nachzuempfinden. Anstelle von zementgebundenem Beton nutzten Atelier Orra und WIP Architecture eine Mixtur aus Zuschlagsstoffen aus der Region, hydraulischem Kalk und Wasser. Das Bindemittel ist das gleiche, das bei der Sanierung der Burg von Calmont d’Olt verwendet wurde. Mit seiner breit gelagerten, abstrakten Form wirkt der Kindergarten wie ein Fremdkörper in der Landschaft. Seine Außenmauern aber scheinen mit dem Erdboden zu verschmelzen.
Architektur: Atelier Orra, WIP Architects
Bauherr: Communauté de communes Comtal, Lot and Tuyères
Standort: Avenue de Saint-Pierre, 12500 Espalion (FR)
Tragwerksplanung: Batiserf Consultant
TGA-Planung: Groupe OCD


































