Protective shell made of stamped concrete
Espalion Nursery School in South-West France
The single-storey daycare centre is located at the foot of the Calmont d'Olt castle hill. © Matthieu Noël
Espalion, a municipality of 5,000 people, is located in the no man's land between Bordeaux, Lyon and Toulouse, on the southern edge of the Massif Central in France. The area is sparsely populated and the population is stagnating, yet Espalion and its neighbouring municipalities required additional nursery places. The municipal association provided a plot of land on the western edge of the village, at the foot of Château de Calmont d'Olt. The contract to build the new facility for four groups was awarded to local architects Atelier Orra and their partners at WIP Architecture.


35 cm thick stamped concrete walls surround the interior rooms and the surrounding outdoor areas. © Matthieu Noël
Flat roof and solid concrete walls
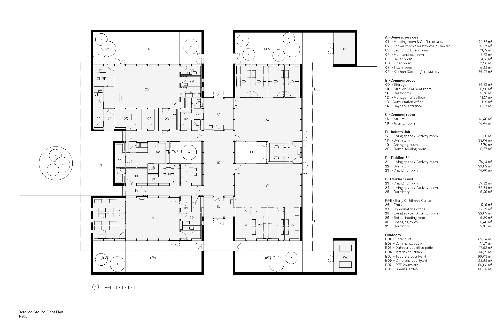
The nursery is protected from the outside by solid, windowless exterior walls made of stamped concrete. In a symmetrical configuration, these walls surround both the building and the adjacent outdoor areas. A wide, cantilevered wooden flat roof protects the facades from direct sunlight. The floor plan is almost axially symmetrical, with two nursery groups, each with their own outdoor area, surrounding a central wing containing a kitchen, storage rooms, and carers' offices. Two inner courtyards bring additional daylight into the group rooms and the central atrium.


The central atrium opens onto small courtyards on both sides. © Matthieu Noël
Material experiments
Although the building may appear uninviting at first, its construction involved both construction workers and municipal employees in an experiment. “For this joint project, we set ourselves three goals: to reduce the CO₂ footprint; to design the building in harmony with its surroundings; and to rely on local craftsmanship and expertise,” writes municipal president Nicolas Bessières. The walls that support the roof and frame the open areas are particularly unusual. They consist of compacted, layered concrete without reinforcement, except for the foundation, which was constructed using the conventional method of reinforced concrete. Where the walls serve as thermal separation between the interior and exterior, they are insulated from the inside.


Each group room has its own individual outdoor area. © Matthieu Noël
Beige-coloured concrete with lime binder
The 35 cm-thick walls were constructed from 12.5 cm high layers of concrete, hydraulically compacted to 10 cm. A slipform technique was employed to ensure the vertical alignment of the wall surfaces. To ensure the walls had sufficient load-bearing capacity, it was essential that their dry density exceeded 2,150 kg/m³. The architects conducted several material experiments to achieve the beige colour of the concrete. They aimed to replicate the colour of the dry stone walls of the agricultural buildings in the region. Rather than using cement-bound concrete, Atelier Orra and WIP Architecture opted for a mixture of regional aggregates, hydraulic lime and water. This binder was also used in the renovation of Calmont d'Olt Castle. With its broad, abstract form, the nursery school appears as an alien presence in the landscape. However, its outer walls appear to merge with the ground.
Architecture: Atelier Orra, WIP Architects
Client: Communauté de communes Comtal, Lot and Tuyères
Location: Avenue de Saint-Pierre, 12500 Espalion (FR)
Structural engineering: Batiserf Consultant
Building services engineering: Groupe OCD


































