Farbenfrohe Architektur
Kindergarten in Horn von Lukas Imhof Architektur
Zwölf Flachdachfenster mit kreisrunden Deckenausschnitten bringen Licht in die zentrale Halle. © Hannes Heinzer Photography
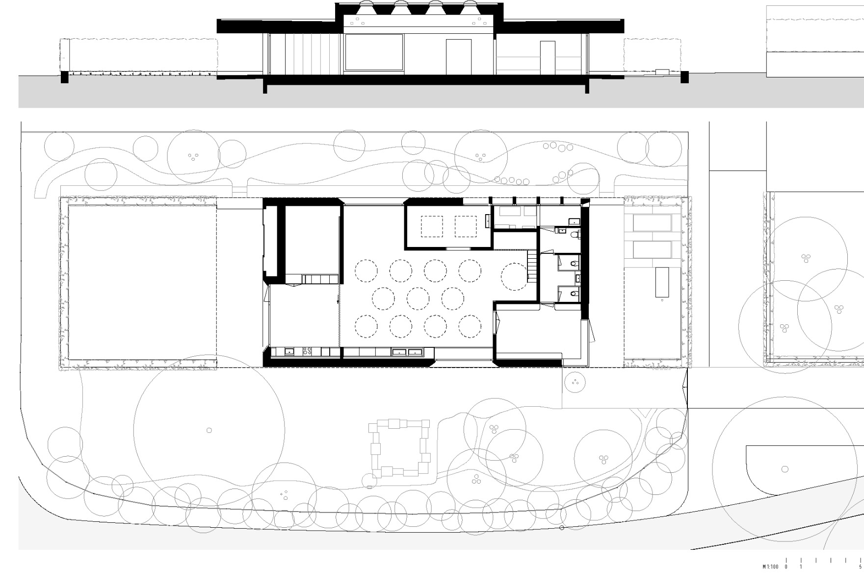
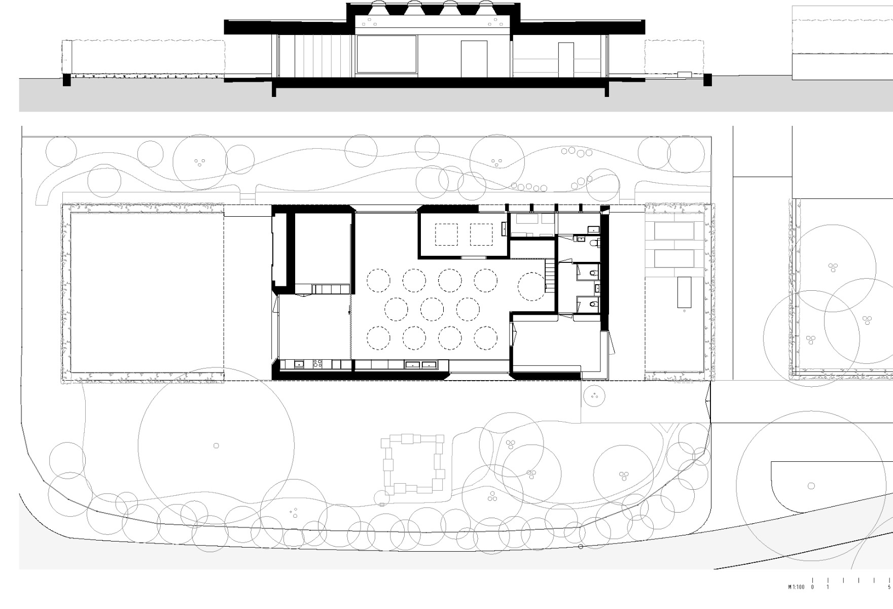
In seiner Architektur nimmt Lukas Imhof gern Bezug auf historische Vorbilder. Für das Raumkonzept des Kindergartens in Horn standen die Bauten der englischen Arts- and Crafts-Bewegung und der deutschen Reformarchitektur mit ihren hohen Hallenräumen und farbigen Nischen Pate. Die Volumetrie des Gebäudes lehnt sich hingegen an das umliegende Bauensemble aus Mehrzweckhalle und Hauswartsbungalow aus den späten 1960er-Jahren an. Der Kindergarten als kleinster und jüngster Baustein sollte sich in dieses Gesamtbild einordnen – und führt es mit verputzen Backsteinwänden und einem Sichtbetondach auch konstruktiv fort.


Der Kindergarten führt die Formensprache der benachbarten Mehrzweckhalle aus den 1960er-Jahren fort. © Hannes Heinzer Photography
Großer Gruppenraum mit Rückzugsnischen
Im Inneren des Kindergartens entstand ein zenital belichteter, hoher Raum als zentrales Klassenzimmer. Umgeben ist er von niedrigeren, geschlossenen Nebenräumen und Nischen. Die Nebenräume dienen als Malatelier, Lagerraum und Garderobe, in den offenen Nischen können die Kinder basteln, lesen oder kochen. Der ruhige Wechsel geschlossener und großer, verglaster Flächen bestimmt das Fassadenbild. Noch wesentlicher für die Raumwirkung sind die zwölf Dachöffnungen, die Licht in die Tiefe des Gebäudes bringen. Um unter den quadratischen Flachdachfenstern, kreisrunde Oberlichter anbringen zu können, war handwerkliches Können erforderlich. Flüssiger Gips wurde über eine CNC-gefräste Form gegossen und mit Netzen armiert. Aus den so entstandenen, viertelkreisförmigen Elementen wurden auf der Baustelle die Oberlichter zusammengesetzt.


In einer der farbig gefassten Nischen führt eine kleine Treppe hinauf zu einer Spielnische für die Kinder. © Hannes Heinzer Photography
Farben, Materialien und Licht gliedern Architektur
Mit dem Projekt gewannen Lukas Imhof und sein Büro den zweiten Preis im diesjährigen Velux Architektur-Wettbewerb. Die Jury urteilte: „Die ruhige Einfachheit, die der Kindergarten Horn ausstrahlt, zieht sich durch alle Facetten des Baus. Ein großzügiger Zentralbereich wird von niedrigeren, geschlossenen Baukörpern und Wandflächen umfasst. Unterschiedliche Höhen, Farben, Materialien und Lichtqualitäten gliedern den Raum und geben ihm Halt. Das Wechselspiel aus Großraum und Rückzugsnischen erzeugt eine Vielzahl von Nutzungsoptionen für unterschiedliche Bedürfnisse. Das Projekt besticht durch eine konsequente architektonischen Haltung und eine geschickte räumliche Organisation. Die klare Struktur, die Lichtführung und das prägnante Farbkonzept macht diesen Kindergarten zu einem würdigen Ort, wo Kinder die schönsten Stunden ihres Tages verbringen können.“
Mehr über die Siegerprojekte sowie ein Interview mit Lukas Imhof sind in der Wettbewerbsdokumentation zu finden.
Architektur: Lukas Imhof Architektur
Bauherr: VSG Horn
Standort: Feldstrasse 16, 9326 Horn (CH)






