Klar strukturiert und doch erweiterbar
Kindergarten in Lamone
Der Sichtbetonbau des Kindergartens grenzt direkt an den Friedhof der Gemeinde. © Francesca Iovene
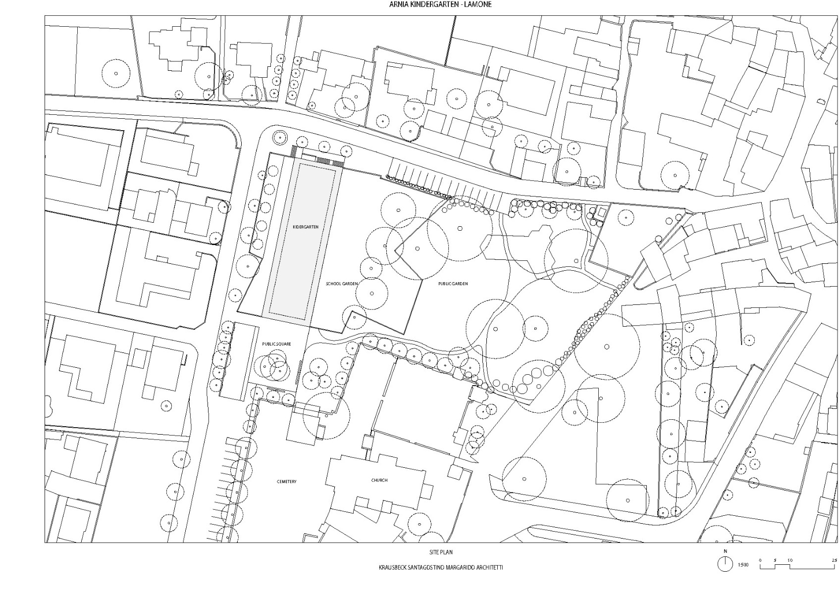
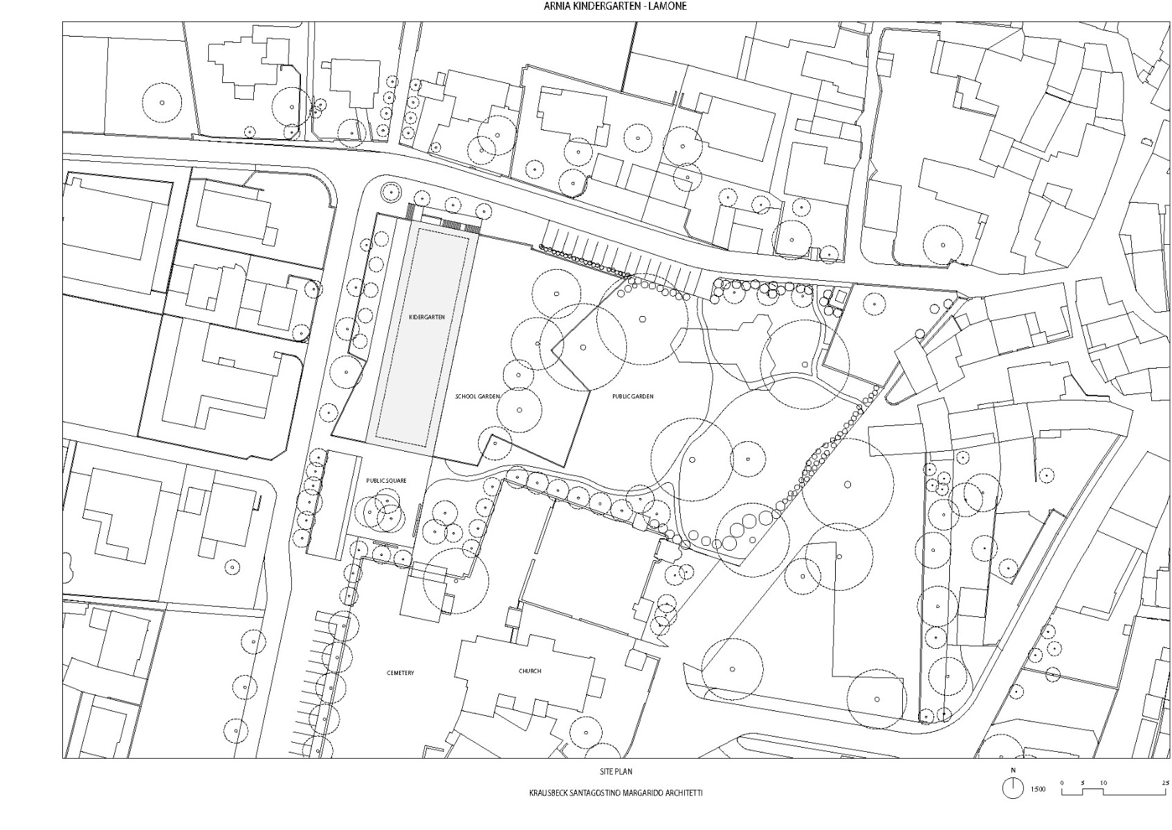
„Arnia“ heißt auf italienisch Bienenstock. Unter diesem selbst gewählten Motto gewannen Krausbeck Santagostino Margarido Architetti 2019 den Wettbewerb für den neuen Kindergarten in Lamone, einer Gemeinde von rund 2000 Einwohnern im nördlichen Umland von Lugano. Das Gebäude ersetzt eine ältere, deutlich kleinere Kindertagesstätte im benachbarten Stadtpark, deren vorgefertigtes Stahlskelett nun als offene Überdachung fortlebt. Das Baugrundstück mitten im Ort ist Teil einer Sequenz aus Friedhof, öffentlichem Park und Kirchvorplatz. Von seinen Nachbarn grenzt es sich durch halbhohe Umfassungsmauern ab, die teils aus Sichtbeton und teils aus durchbrochenen Betonfertigteilen gearbeitet sind. Das gleiche Motiv findet sich auch an den Längsfassaden des Kindergartens in Form von Brise-Soleils wieder.


Der Wechsel aus geschlossenen Betonflächen und durchbrochenen Brise-Soleils gliedert das Gebäude und die Umfassungsmauern des Grundstücks gleichermaßen. © Francesca Iovene
Gebäude mit Erweiterungsspielraum
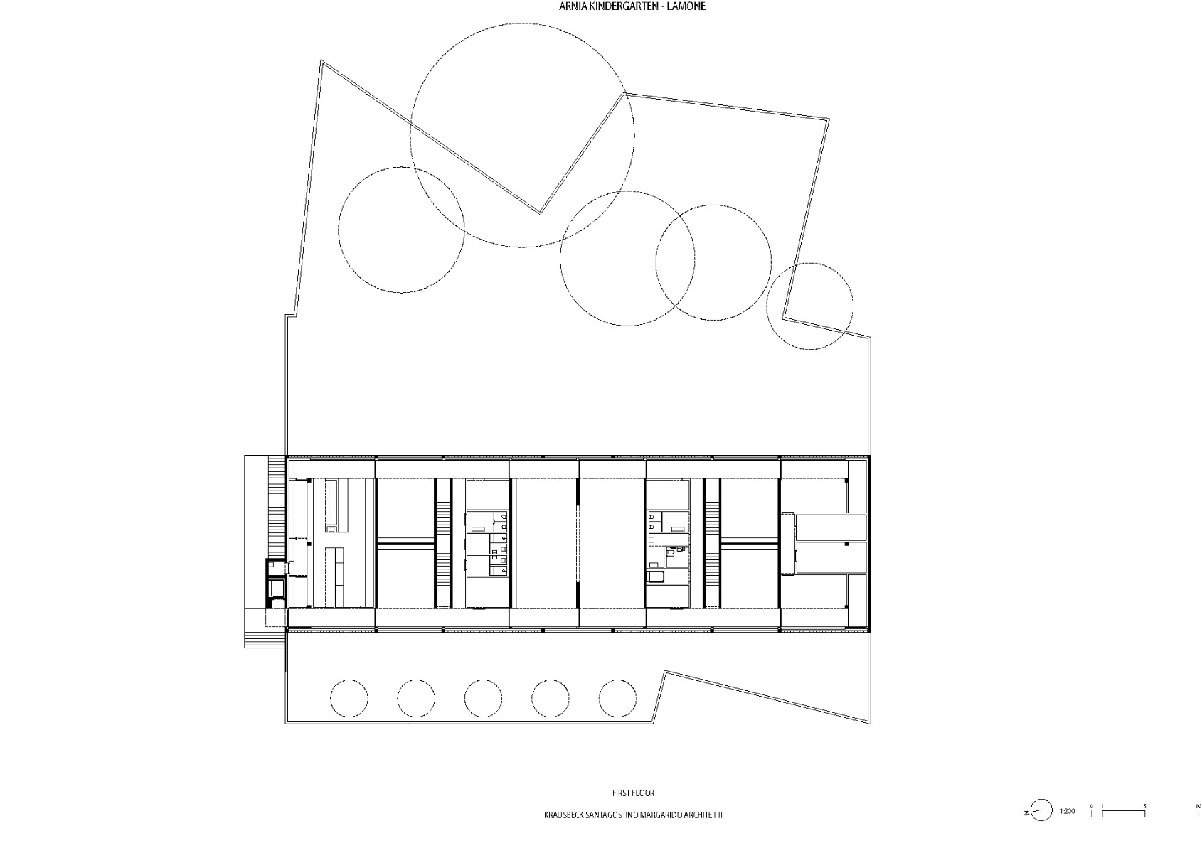
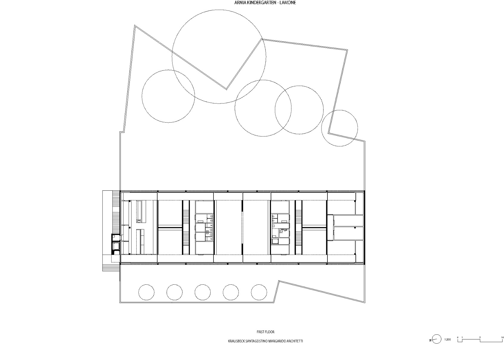
Im Inneren bietet der Neubau Platz für 75 Kinder in drei Kindergartengruppen – mit der Option, später eine vierte Gruppe zu ergänzen. Hierfür wurde der südliche Teil des Erdgeschosses freigehalten, wo nun eine überdachte Freifläche zum Spielen entstanden ist. Auch vor den zurückgesetzten Erdgeschossfassaden haben die Kinder reichlich Bewegungsspielraum. Bei gutem Wetter stehen ihnen ein Lehrgarten im Westen sowie eine weitläufige Spielfläche östlich der Kita zur Verfügung. Im separat zugänglichen Untergeschoss hat die Gemeinde eine neue Tiefgarage mit 24 Plätzen geschaffen.


Mithilfe breiter Türen lassen sich die Gruppenräume entlang der Fassaden zu einer langen Flucht verbinden. © Francesca Iovene
Regelmäßig gegliederte Sichtbetonstruktur
Der Sichtbetonbau ist überaus klar strukturiert: Regelmäßig angeordnete Querwände grenzen die Gruppenräume voneinander ab. Sie werden von Längskorridoren entlang der Fassaden erschlossen, lassen sich bei Bedarf aber auch mit breiten Türen verschließen. Hinter abgehängten Holzlamellendecken im Flurbereich sind auch die Lüftungsleitungen verborgen. Der Wechsel von großen Fensteröffnungen und Brise-Soleils aus faserbewehrten Betonfertigteilen macht die Gliederung des Gebäudes auch außen ablesbar.
Architektur: Krausbeck Santagostino Margarido Architetti
Bauherr: Comune di Lamone
Standort: Via Brüga/Via al Parco, 6814 Lamone (CH)
Tragwerksplanung, HLS-Planung: CSD Ingegneri
Elektroplanung: Piona Engineering
Bauherrenvertretung: Rupprecht Ingegneria



















