Spielerische Lernlandschaft
Kindertagesstätte in Yantai von 11-Design
Das maßgeschneiderte Zeltsystem besteht aus orangefarbenen Metallrahmen und hellen Stoffbespannungen. © Cao Rong
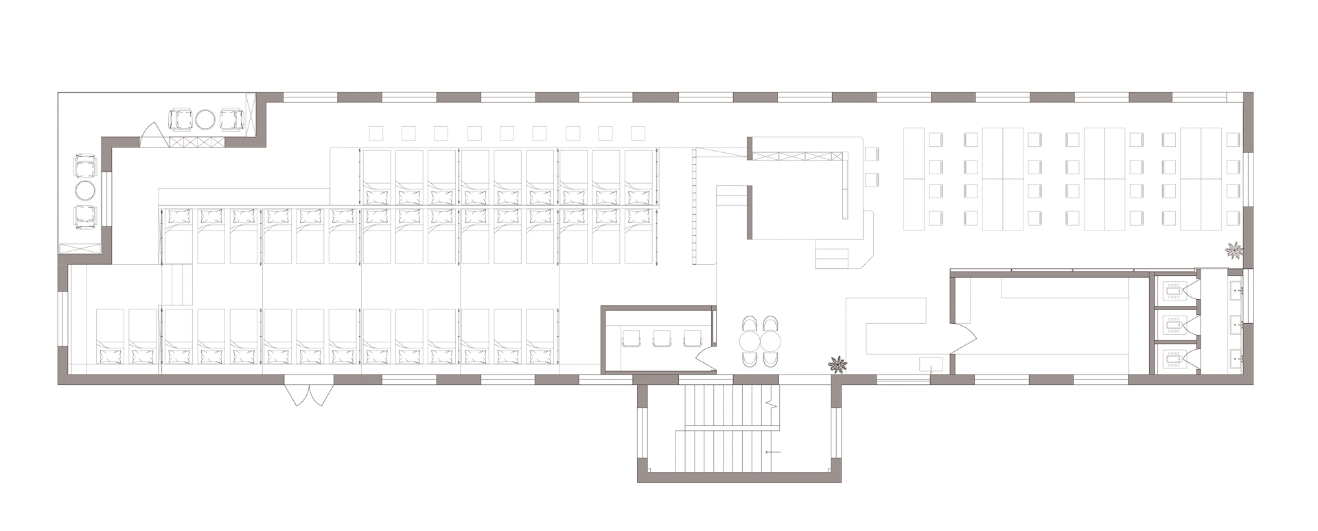
Das Deya Day Care Center von 11-Design ist ein 270 m² großes Betreuungszentrum für Kinder im Alter von sechs bis zwölf Jahren. Mit begrenztem Budget entstand eine räumlich klare und zugleich anregende Umgebung, die Lernen, Lesen und Erholen gleichermaßen unterstützt.


Ein zentral platzierter Holzbaukörper dient zugleich als Raumteiler und als Leseecke für wartende Eltern. © Cao Rong
Maßgeschneidertes Zeltsystem
Zentrales Gestaltungsmotiv ist das „Zelt“, das als elementare räumliche Einheit den gesamten Entwurf prägt. Anstelle konventioneller Raumteilungen entwickelte das Planungsteam ein maßgeschneidertes Zeltsystem, bestehend aus orangefarbenen Metallrahmen, hellen Stoffbespannungen, integrierter Beleuchtung und hölzernen Plattformen. Diese Elemente schaffen individuelle, überschaubare Rückzugsorte, die Geborgenheit vermitteln und zugleich Offenheit und Bewegungsfreiheit ermöglichen. Die unterschiedlich hohen Holzplattformen strukturieren den Raum in gestaffelter Form und reagieren auf vorhandene Höhenunterschiede. Gleichzeitig entstehen Wege, Stufen und Kletterrouten, die spielerische Erkundung fördern. Die Plattformkanten dienen als offene Bücherregale und werden tagsüber zu Liegeflächen für Ruhephasen umfunktioniert. Damit verbindet der Entwurf räumliche Organisation mit Mehrfachnutzung auf engem Raum.


Vielfältige Raumangebote fördern die spielerische Erkundung. © Cao Rong


Die Beleuchtung ist direkt in die Konstruktion integriert. © Cao Rong
Kostengünstig und lokal verfügbar
Das konstruktive System ist modular und klar lesbar. Die Stahlrahmen der Zelte bleiben sichtbar; ihre Tragstruktur ist auch für Kinder nachvollziehbar. Die Beleuchtung ist direkt in die Konstruktion integriert, sodass Struktur und Nutzung zusammenfallen. Diese bewusste Reduktion auf wesentliche Bauteile steht für einen Ansatz, den die Architektinnen und Architekten als „ehrliche Ästhetik“ beschreiben: Form und Funktion sollen unmittelbar verständlich sein, ohne dekorative Zusätze. Das Projekt beschränkt sich auf kostengünstige und lokal verfügbare Baustoffe wie Sperrholz, Stoffbahnen und Stahlrohre. In enger Zusammenarbeit mit regionalen Metallbetrieben wurden die Bauteile in mehreren Prototyping-Schritten entwickelt. Möbel, Tafeln, Halterungen, Becherablagen und Leuchten folgen derselben Konstruktionslogik und bilden ein konsistentes, wiedererkennbares System. Auch die Tische und Ablagen sind bewusst einfach gehalten und interpretieren alltägliche Objekte neu, um Kindern alternative Nutzungen und Formen aufzuzeigen.


Unterschiedlich hohe Holzplattformen strukturieren den Raum in gestaffelter Form. © Cao Rong
Ehrliche Ästhetik
Der Standort im dritten Obergeschoss bietet Ausblicke auf eine baumgesäumte Straße. Die westseitigen Fenster lassen Tageslicht und Grün in die Innenräume, wobei Verschattung und Belüftung nur dort ergänzt wurden, wo es funktional erforderlich war. Das Büro und der Empfangsbereich der Betreuungskräfte liegen nahe dem Eingang und verfügen über runde Öffnungen zur leichten Übersicht. Ein zentral platzierter Holzbaukörper dient zugleich als Raumteiler und als Leseecke für wartende Eltern. Küche und Sanitärbereiche sind in fensterlosen Zonen untergebracht, um die Erschließung effizient zu organisieren. Insgesamt versteht sich das Projekt als Beispiel für eine wirkungsvolle Gestaltung unter einfachen Bedingungen. Durch modulare Strukturen, einfache Materialien und eine hohe Systemintegration entstand ein Raum, der funktional, übersichtlich und zugleich atmosphärisch ist. Der Entwurf zeigt, wie mit begrenzten Mitteln eine differenzierte Lern- und Aufenthaltslandschaft geschaffen werden kann, die auf die Bedürfnisse der Kinder eingeht und deren Eigenständigkeit, Neugier und Kreativität unterstützt.
Mehr zu partizipativer Architektur im Bildungsbau: Der Beitrag „Praxis: Partizipative Architektur: Form Follows Fiction“ zeigt, wie gemeinsames Erzählen und Mitgestalten neue Entwurfsprozesse anstoßen können – jetzt in unserer Datenbank DETAIL Inspiration entdecken.
Architektur: 11-Design
Bauherr: Deya Day Care Center
Standort: Yantai, Shandong (CN)
Design directors: Li Xiaosi, Cao Rong
Team: Chang Xiaoying, Li Jia, Qu Xiaotong, Yu Guangxin





















