Rückzugsort in Oslos Wildnis
Kleine Wohnhütte von Rever & Drage
Holz sorgt im hellen und offen gestalteten Innenraum für eine gemütliche Wohnatmosphäre. © Tom Auger
Inmitten des großen Waldgebietes der Nordmarka nördlich von Oslo liegt die 29 m² große Holzhütte von Rever & Drage. Gemeinsam mit einer älteren Hütte aus den 1930er-Jahren bietet sie einen ruhigen Rückzugsort in der Natur.


Die kleine Wohnhütte ist gen Sonnenuntergang ausgerichtet. © Tom Auger
Wünsche des Bauherrn
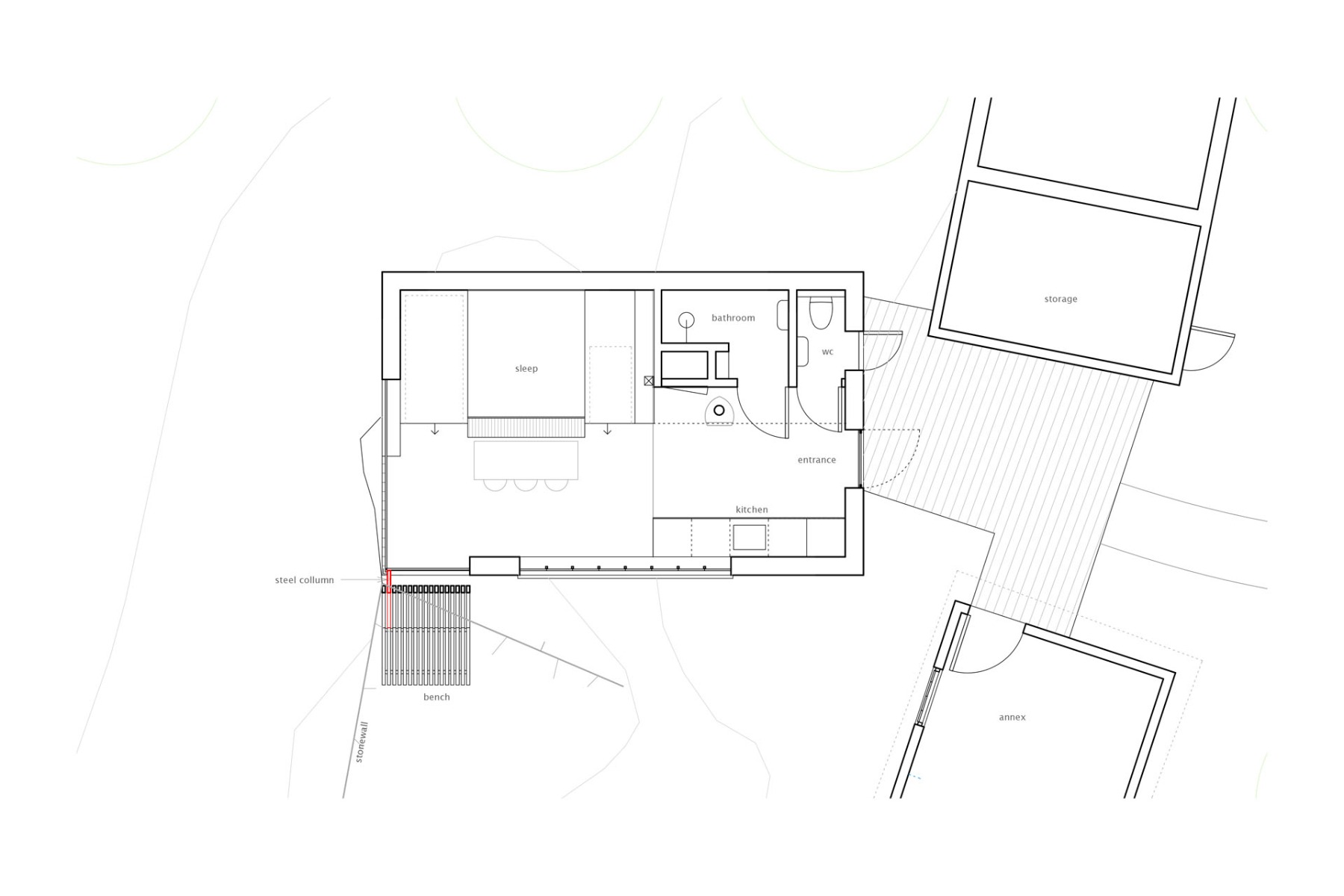
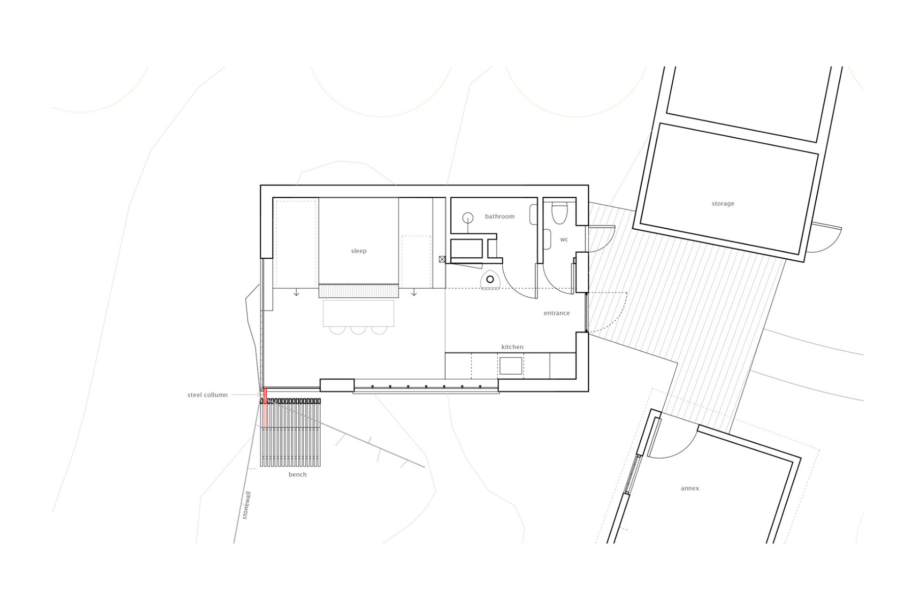
Die neue Hütte ist nach Wunsch des Bauherrn mit Blick Richtung Sonnenuntergang ausgerichtet. Ein großes, über Eck verlaufendes Fenster in der Fassade ermöglicht freie Sicht auf die umliegenden Wälder und Seen. Ein weiterer Wunsch des Bauherrn war es, den Charme der älteren Hütte beizubehalten. Aus diesem Grund nehmen die zum Innenhof ausgerichteten Fenster der neuen Hütte Bezug auf die Sprossenfenster des Bestandsbaus. Eine hölzerne Sitzbank im Außenbereich, deren Rückenlehne bis unter das Dach reicht, dient als Sichtschutz. Gleichzeitig trägt eine in die Lehne eingebaute Stahlstütze das Dach an dieser Ecke.
Nachhaltig bauen
Das Fundament der Hütte beschränkt sich auf sechs kleine Bohrlöcher. Stahlbolzen, die im Felsen sitzen, tragen die Konstruktion. So kann die Hütte bei Bedarf leicht entfernt und der Standort so gut wie vollständig in seinen ursprünglichen Zustand zurückversetzt werden.


Die kleine Wohnhütte bietet einen ruhigen Rückzugsort nördlich von Oslo. © Tom Auger
Wohnen auf kleiner Fläche
Im hellen und offen gestalteten Innenraum sorgt Holz für eine gemütliche Atmosphäre. Mehrere Ebenen unterteilen den Wohnraum. Direkt am Eingang befindet sich eine Küchenzeile mit kleinem Kamin sowie das Badezimmer mit separater Toilette. Eine einzelne Stufe führt in den Wohnbereich mit Esstisch.


Der offen gestaltete Wohnbereich ist in mehrere Ebenen unterteilt. © Tom Auger


Eine Sprossenleiter führt in den Spiel- und Schlafbereich der Kinder. © Tom Auger
Der Schlafbereich der Eltern liegt erneut etwas erhöht, grenzt jedoch direkt an den offenen Wohnbereich an. Über eine Sprossenleiter ist der Spiel- und Schlafbereich der Kinder zu erreichen. Die ältere Hütte dient bei Bedarf als zusätzlicher Raum zum Wohnen und Schlafen.
Architektur: Rever & Drage
Standort: Nordmarka, Oslo (NO)
Design Team: Tom Auger, Martin Beverfjord, Eirik Lilledrange
Bauleitung: Bjørn Vike and Jo Toftdahl





















