Umnutzung einer Textilfabrik
Kreatives Zentrum in Mexiko-Stadt von Productora
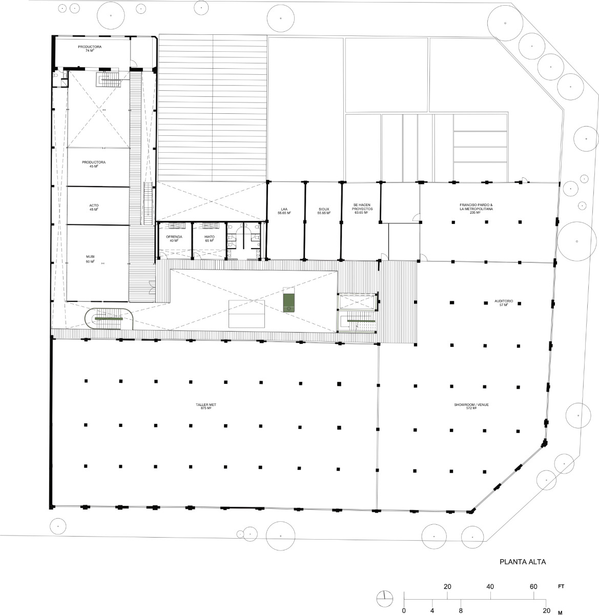
Die Innenhöfe fungieren als zentrale Treffpunkte des neuen kreativen Zentrums. © Camila Cossio
Das mexikanische Architekturbüro Productora hat eine ehemalige Textil- und Garnfabrik aus den 1920er-Jahren in ein kreatives Zentrum transformiert. Das Projekt Laguna befindet sich in Doctores, einem zentralen Stadtteil von Mexiko-Stadt, und beherbergt heute mehr als 25 Unternehmen aus den Bereichen Architektur, Kunst und Design.


Laguna beherbergt mehr als 25 kreative und handwerkliche Unternehmen. © Camila Cossio
Gemeinschaft schaffen
Nach dem schweren Erdbeben im Jahr 2017 bot der Eigentümer des Laguna-Komplexes betroffenen Unternehmen Räumlichkeiten zu attraktiven Mietpreisen an – unter der Bedingung, dass sich eine aktive Gemeinschaft im ehemaligen Fabrikgebäude entwickelt. Dem Ruf folgte auch das Architekturbüro Productora und übernahm fortan die Verantwortung für die Sanierung und den Umbau des Gebäudekomplexes.
Sensible architektonische Eingriffe
Der erste Schritt des Umbaus bestand darin, zwei zuvor überbaute Innenhöfe wieder freizulegen, die nun als zentrale Treffpunkte fungieren. Darüber hinaus fügte Productora einen Anbau und neue Erschließungskerne hinzu. Letztere sind Teil eines Stegsystems entlang der Gebäude, das die einzelnen Studios miteinander verbindet. Das markante Grün der addierten Elemente stammt von historischen Maschinen in der Fabrik und bildet so eine Verbindung zwischen Vergangenheit und Gegenwart.


Ein zeitgenössischer Anbau fügt sich mühelos in den bestehenden Komplex. © Arturo Arrieta
Kreatives Zentrum inmitten der Stadt
Die inhärente Konstruktion des Fabrikgebäudes mit schwer belastbaren Böden und großflächigen Räumen bietet eine erhebliche Flexibilität für den Umbau- und Weiterbau sowie die heutige Belegung. Dadurch lassen sich in Laguna eine Vielzahl kreativer und handwerklicher Unternehmen finden: Architekturbüros, Möbel- und Textilwerkstätten, Keramikstudios, Verkaufs- und Ausstellungsräume und seit neuestem Künstlerwohnungen. Das Zentrum stemmt sich aktiv gegen die im Viertel vorschreitende Gentrifizierung, indem es bewusst kommerzielle Vermietungen vermeidet und soziale Interaktionen fördert.


In Laguna verschmelzen historischer Charme und zeitgenössisches Design. © Camila Cossio
Ein kontinuierlicher Prozess
Productora betont, dass der Umbau ein kontinuierlicher Prozess ist, der laufend Planungsanpassungen erfährt. Als nächsten möglichen Schritt erwägt das Team eine Dachaufstockung mit Leichtmetallkonstruktionen, die als Künstlerateliers dienen könnten. Die Herausforderung, den ursprünglichen Charakter des modernistischen Fabrikgebäudes zu erhalten und gleichzeitig den zeitgenössischen Nutzungsanforderungen gerecht zu werden, meistert Productora mit bemerkenswertem Geschick.
Architektur: Productora (Carlos Bedoya, Víctor Jaime, Wonne Ickx, Abel Perles)
Bauherr: Marqcret
Standort: Calle Dr Erazo 172, Colonia Doctores, Ciudad de México (MX)
Mitarbeitende: Claudio Morales, Diana Jiménez, Nicolás Fueyo, Ruy Berumen, Rubén Flores, Carla Romano, Diego Velázquez, Fidel Fernandez, Pablo Manjarrez
Baukonstruktion: Colinas De Buen
Tragwerksplanung: T2M





















